
Everton Road, Potton, Sandy

- PROPERTY TYPE
Semi-Detached
- BEDROOMS
2
- SIZE
Ask agent
- TENUREDescribes how you own a property. There are different types of tenure - freehold, leasehold, and commonhold.Read more about tenure in our glossary page.
Freehold
Key features
- No upper chain
- Good size accommodation
- Two bedrooms
- Modern throughout
- Downstairs cloakroom
- Upstairs bathroom
- High Gloss kitchen
- Garage
- Garden
Description
For those that do not know Potton, it is a quaint market town nestled in the countryside and between the larger towns of Sandy and Biggleswade that offers direct rail network and the A1(M).
Potton offers an array of shops, restaurants, social clubs and public houses. Good schooling, dentist, doctors and many more along with beautiful countryside walks.
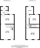
PARTICULARS Composite door leading to:
LOUNGE/DINING ROOM 12' 8" x 12' 0" (3.86m x 3.66m) Double glazed window to the front with shutters, radiator, stairs rising to the first floor.
KITCHEN 11' 9" x 7' 9" (3.58m x 2.36m) Range of base and wall mounted units in white gloss and work tops over, composite sink with drainer and mixer tap with splash guarding surround. Built in Lamona oven, gas hob and extractor. Double glazed window to the rear. Wall mounted Worcester gas boiler (serviced August), tiled flooring. Plumbing for washing machine, space for fridge/freezer.
INNER HALL Double glazed door to the rear garden. Flooring to match the kitchen, radiator.
CLOAKROOM Wash hand basin, low flush W.C. Radiator, tiled flooring, extractor. Obscure double glazed window to the rear.
LANDING Access to the loft space, radiator.
BEDROOM ONE 11' 9" x 9' 2" (3.58m x 2.79m) Two double glazed windows to the front. Radiator.
BEDROOM TWO 9' 7" x 7' 9" (2.92m x 2.36m) Double glazed window to the rear. Radiator.
BATHROOM Three piece suite comprising: Bath with shower over and screen, low flush W.C. wash hand basin. Fully tiled to all walls, extractor. Obscure double glazed window to the rear. Heated towel rail.
EXTERNALLY Lovely low maintenance garden with outside tap, gated access to the front.
Garage: single in size with up and over door, eve storage space and personal door into the garden.
Off road parking directly in front of the garage, access via Larkins Close.
Brochures
(S5) Brochure - L...- COUNCIL TAXA payment made to your local authority in order to pay for local services like schools, libraries, and refuse collection. The amount you pay depends on the value of the property.Read more about council Tax in our glossary page.
- Band: C
- PARKINGDetails of how and where vehicles can be parked, and any associated costs.Read more about parking in our glossary page.
- Garage
- GARDENA property has access to an outdoor space, which could be private or shared.
- Yes
- ACCESSIBILITYHow a property has been adapted to meet the needs of vulnerable or disabled individuals.Read more about accessibility in our glossary page.
- Ask agent
Everton Road, Potton, Sandy
Add an important place to see how long it'd take to get there from our property listings.
__mins driving to your place
Get an instant, personalised result:
- Show sellers you’re serious
- Secure viewings faster with agents
- No impact on your credit score



Your mortgage
Notes
Staying secure when looking for property
Ensure you're up to date with our latest advice on how to avoid fraud or scams when looking for property online.
Visit our security centre to find out moreDisclaimer - Property reference 103515003580. The information displayed about this property comprises a property advertisement. Rightmove.co.uk makes no warranty as to the accuracy or completeness of the advertisement or any linked or associated information, and Rightmove has no control over the content. This property advertisement does not constitute property particulars. The information is provided and maintained by Kennedy & Co Sales and Lettings, Potton. Please contact the selling agent or developer directly to obtain any information which may be available under the terms of The Energy Performance of Buildings (Certificates and Inspections) (England and Wales) Regulations 2007 or the Home Report if in relation to a residential property in Scotland.
*This is the average speed from the provider with the fastest broadband package available at this postcode. The average speed displayed is based on the download speeds of at least 50% of customers at peak time (8pm to 10pm). Fibre/cable services at the postcode are subject to availability and may differ between properties within a postcode. Speeds can be affected by a range of technical and environmental factors. The speed at the property may be lower than that listed above. You can check the estimated speed and confirm availability to a property prior to purchasing on the broadband provider's website. Providers may increase charges. The information is provided and maintained by Decision Technologies Limited. **This is indicative only and based on a 2-person household with multiple devices and simultaneous usage. Broadband performance is affected by multiple factors including number of occupants and devices, simultaneous usage, router range etc. For more information speak to your broadband provider.
Map data ©OpenStreetMap contributors.





