
3 bedroom apartment for sale
Gobbitts Yard, Woodbridge, Suffolk, IP12

- PROPERTY TYPE
Apartment
- BEDROOMS
3
- BATHROOMS
1
- SIZE
Ask agent
Key features
- No onward chain
- Allocated off road parking
- Rooftop views
- Town centre location
- Three bedrooms
Description
Located in a fantastic central position within the Thoroughfare is this three bedroom top floor apartment that benefits from parking and stunning views.
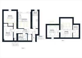
The property is approached by a secure entry system with stairs to all floors and a communal lobby where there are post boxes for all properties. The apartment is located on the second floor, and the front door opens into an entrance hallway. The kitchen has been refitted with a number of eye level and base units, a sink and drainer and a window to the rear. There is a fitted oven and electric hob with extractor fan over, along with space for a fridge freezer and plumbing for a washing machine. Both freestanding appliances are available to be included in the sale, as per negotiations.
The sitting room is a great space with double doors onto the balcony which offers far reaching views over Woodbridge and beyond. There is also a stair flight rising from the sitting area which leads to a mezzanine level from which an additional bedroom and a storeroom/study can be accessed.
Opposite the sitting room is the bathroom which has been fitted with a vanity unit and wash basin, a low-level w/c and a bath with a mixer shower tap. Two bedrooms on the ground floor have been fitted with integrated wardrobes and bedroom one has a window to the rear aspect.
Outside
There is a communal courtyard, which is accessed from the rear, near to the allocated parking.
Important Information
Council Tax Band - C
Services - We understand that mains water, drainage, and electricity are connected to the property.
Tenure - Leasehold
EPC rating - D
Lease length - 125 years from 2014
Annual ground rent - £250
Annual service charge - £1100 plus buildings insurance £720
Our ref - JED
Any intending viewers or purchasers are advised of the following: An EWS1 form ( External Wall Survey) may be recommended for certain apartment buildings dependant on issues such as the height of the structure. the positioning of balconies and composition of any external cladding. Fenn Wright have not undertaken any such assessment in respect of this particular property and this note has been added to all flats being offered for sale throughout our business as appropriate general guidance .We recommend that potential purchasers seek advice from their solicitor and an independent Chartered Surveyor before committing to a purchase.
Brochures
Particulars- COUNCIL TAXA payment made to your local authority in order to pay for local services like schools, libraries, and refuse collection. The amount you pay depends on the value of the property.Read more about council Tax in our glossary page.
- Ask agent
- PARKINGDetails of how and where vehicles can be parked, and any associated costs.Read more about parking in our glossary page.
- Yes
- GARDENA property has access to an outdoor space, which could be private or shared.
- Ask agent
- ACCESSIBILITYHow a property has been adapted to meet the needs of vulnerable or disabled individuals.Read more about accessibility in our glossary page.
- Ask agent
Energy performance certificate - ask agent
Gobbitts Yard, Woodbridge, Suffolk, IP12
Add an important place to see how long it'd take to get there from our property listings.
__mins driving to your place
Get an instant, personalised result:
- Show sellers you’re serious
- Secure viewings faster with agents
- No impact on your credit score
Your mortgage
Notes
Staying secure when looking for property
Ensure you're up to date with our latest advice on how to avoid fraud or scams when looking for property online.
Visit our security centre to find out moreDisclaimer - Property reference WOO250318. The information displayed about this property comprises a property advertisement. Rightmove.co.uk makes no warranty as to the accuracy or completeness of the advertisement or any linked or associated information, and Rightmove has no control over the content. This property advertisement does not constitute property particulars. The information is provided and maintained by Fenn Wright, Woodbridge. Please contact the selling agent or developer directly to obtain any information which may be available under the terms of The Energy Performance of Buildings (Certificates and Inspections) (England and Wales) Regulations 2007 or the Home Report if in relation to a residential property in Scotland.
*This is the average speed from the provider with the fastest broadband package available at this postcode. The average speed displayed is based on the download speeds of at least 50% of customers at peak time (8pm to 10pm). Fibre/cable services at the postcode are subject to availability and may differ between properties within a postcode. Speeds can be affected by a range of technical and environmental factors. The speed at the property may be lower than that listed above. You can check the estimated speed and confirm availability to a property prior to purchasing on the broadband provider's website. Providers may increase charges. The information is provided and maintained by Decision Technologies Limited. **This is indicative only and based on a 2-person household with multiple devices and simultaneous usage. Broadband performance is affected by multiple factors including number of occupants and devices, simultaneous usage, router range etc. For more information speak to your broadband provider.
Map data ©OpenStreetMap contributors.






