Plot 53 Hipswell Road, Catterick Garrison

- PROPERTY TYPE
Detached
- BEDROOMS
4
- BATHROOMS
2
- SIZE
1,259 sq ft
117 sq m
- TENUREDescribes how you own a property. There are different types of tenure - freehold, leasehold, and commonhold.Read more about tenure in our glossary page.
Freehold
Description
***EXCLUSIVE OFFER*** Flooring allowance up to £3,000 & Solicitor Fees on purchase up to £800
Free Washing Machine & Outside tap (select plots).
This DETACHED 4 BEDROOM, En-Suite Semi-Detached New Home with FULLY ENCLOSED REAR GARDEN.
IDEAL FAMILY HOME (VERY EFFICIENT 'B' Energy Rated) LIVING ROOM, superb equipped KITCHEN/DINING ROOM, UTILITY. Upstairs are 4 BEDROOMS, a large BATH/SHOWER ROOM & an EN SUITE. Good-sized Integral GARAGE, further parking & enclosed WEST Facing REAR GARDEN. Gas Central Heating & UPVC Double Glazing. ICW 10 Year Build Safe Structural Warranty.
CONVENIENCE, QUALITY, SCENERY & a NEW HOME LIFE-STYLE with LEISURE, SHOPPING, ENTERTAINMENT & SCHOOLING for all ages in the immediate area. Excellent access A1(M) & A66 at Scotch Corner, & mainline rail station at Darlington. The area is ideal for WALKING, CYCLING etc & the SPECTACULAR DALES SCENERY speaks for itself. Historic Richmond market town is under 3 miles away. All this on your doorstep: (please visit the link).
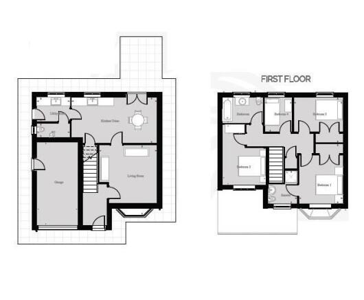
Hall -
Sitting Room - 4.20m x 4.18m max (13'9" x 13'8" max) -
Kitchen & Dining Room - 6.00m x 3.36m (19'8" x 11'0") - Stylish range of soft-close wall & floor units with integrated oven & gas hob with extractor over and fridge/freezer.
Utility - 2.39m x 1.75m (7'10" x 5'8") - Sink, plumbing for washing machine & space for a tumble drier.
Washroom/Wc - 2.00m x 1.04m (6'6" x 3'4") -
Good-Sized Integral Garage - 6.00m x 2.98m (19'8" x 9'9") - (See below).
First Floor Landing - Built-in cupboard.
Bedroom 1. - 3.53m x 3.17m plus robes (11'6" x 10'4" plus robes - PLUS built-in wardrobe.
En Suite - 2.10m x 1.43m plus shower cubicle (6'10" x 4'8" pl -
Bedroom 2. - 3.58m x 2.49m plus robes (11'8" x 8'2" plus robes) - PLUS built-in wardrobe.
Bedroom 3. - 4.34m max x 3.17m (14'2" max x 10'4") -
Bedroom 4/Study - 2.51m x 1.99m (8'2" x 6'6") - ADDED EXTRA: Fitted double wardrobe
Large 'House' Bath/Shower Room - 2.95m x 1.88m (9'8" x 6'2") -
Outside - Good-sized INTEGRAL GARAGE (6.00m x 2.98m/19'8" x 9'9") with strip-light & power. Front Garden turfed open plan with block-set driveway. Rear Garden top soiled with textured concrete paved patio & perimeter paving. 1.83m/6ft close board fencing between houses, 1.22m/4ft close board fencing between rear gardens. Enclosed Rear Garden.
Nb - 1.GREEN FEES covering the communal green areas of circa £120 per year will apply.
2.Council Tax Band: To be confirmed by Richmondshire District Council
3.The details outlined are an indication of the proposed specification. The developer reserves the right to alter any part of the development specification at any time. Where brands are specified, the developer reserves the right to replace the brand with another equal quality or better.
4.IMAGES ETC: Computer Generated Images (CGi’s), Photographs & Artists Impressions are for illustrative Purposes only. Floor plans are for illustration only.
5. ***SPECIAL DEAL***: Flooring allowance up to £3,000 & Solicitor Fees on purchase up to £800
Free Washing Machine & Outside tap (select plots).
Brochures
Plot 53 Hipswell Road, Catterick GarrisonBrochure- COUNCIL TAXA payment made to your local authority in order to pay for local services like schools, libraries, and refuse collection. The amount you pay depends on the value of the property.Read more about council Tax in our glossary page.
- Band: TBC
- PARKINGDetails of how and where vehicles can be parked, and any associated costs.Read more about parking in our glossary page.
- Garage
- GARDENA property has access to an outdoor space, which could be private or shared.
- Yes
- ACCESSIBILITYHow a property has been adapted to meet the needs of vulnerable or disabled individuals.Read more about accessibility in our glossary page.
- Ask agent
Energy performance certificate - ask agent
Plot 53 Hipswell Road, Catterick Garrison
Add an important place to see how long it'd take to get there from our property listings.
__mins driving to your place
Get an instant, personalised result:
- Show sellers you’re serious
- Secure viewings faster with agents
- No impact on your credit score



Affordability
Notes
Staying secure when looking for property
Ensure you're up to date with our latest advice on how to avoid fraud or scams when looking for property online.
Visit our security centre to find out moreDisclaimer - Property reference 34215442. The information displayed about this property comprises a property advertisement. Rightmove.co.uk makes no warranty as to the accuracy or completeness of the advertisement or any linked or associated information, and Rightmove has no control over the content. This property advertisement does not constitute property particulars. The information is provided and maintained by Alderson Estate Agents, Richmond. Please contact the selling agent or developer directly to obtain any information which may be available under the terms of The Energy Performance of Buildings (Certificates and Inspections) (England and Wales) Regulations 2007 or the Home Report if in relation to a residential property in Scotland.
*This is the average speed from the provider with the fastest broadband package available at this postcode. The average speed displayed is based on the download speeds of at least 50% of customers at peak time (8pm to 10pm). Fibre/cable services at the postcode are subject to availability and may differ between properties within a postcode. Speeds can be affected by a range of technical and environmental factors. The speed at the property may be lower than that listed above. You can check the estimated speed and confirm availability to a property prior to purchasing on the broadband provider's website. Providers may increase charges. The information is provided and maintained by Decision Technologies Limited. **This is indicative only and based on a 2-person household with multiple devices and simultaneous usage. Broadband performance is affected by multiple factors including number of occupants and devices, simultaneous usage, router range etc. For more information speak to your broadband provider.
Map data ©OpenStreetMap contributors.




