29 Willow Way, Wakefield

- PROPERTY TYPE
Semi-Detached
- BEDROOMS
3
- BATHROOMS
1
- SIZE
Ask agent
Key features
- Kitchen/diner
- Separate living room
- Downstairs cloakroom
- Parking
- Rear garden
- 990 year lease
Description
(Build due to be completed December 2025)
***SHARED OWNERSHIP***
Stonebridge Shaw is pleased to bring to the market in partnership with Karbon Homes, this three bedroom home available through the shared ownership scheme listed at £68,750 for a 25% share.
Rent payable on the remaining 75% share would be £472.66 per month.
Full market value £275,000
Total monthly payment EXCLUDING RENT - service charge £12.53 (tbc), buildings insurance £36.30 (tbc), admin charge £15.00 (tbc) - Total £63.83 (tbc)
Shares available between 25% and 75% dependent upon eligibility
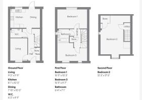
The Easton is a three bedroom home set over three floors and is ideal for families. The ground floor features a spacious living room to the front of the home and a modern kitchen/dining space with French doors to the rear. There is also a downstairs W.C. and handy storage cupboard. To the first floor, you will find two double bedrooms, a storage cupboard and the family bathroom. On the second floor, there is a further generous double bedroom with additional storage space. Externally, there is private parking and a rear garden.
GROUND FLOOR
Living - 9' 2" X 11' 11"
Kitchen -8' 1" X 10' 0"
Dining - 7' 10" x 10' 0"
W.C. -6' 3" x 4' 9"
FIRST FLOOR
Bedroom one - 15' 11" X 10' 3"
Bedroom three - 15' 11" x 9' 7"
Bathroom - ’6' 4" x 7' 1"
SECOND FLOOR
Bedroom two - 12' 3" x 17' 5"
Lease term - 990 years
***The photos are for illustrative purposes only and don’t necessarily relate to this property.***
Note from the team at Stonebridge Shaw
We always aim to ensure our properties are displayed accurately with the photos, floorplans and descriptions provided. However these are intended as a guide and purchasers must satisfy themselves by viewing the property in person
Brochures
Full DetailsKey Information Document- COUNCIL TAXA payment made to your local authority in order to pay for local services like schools, libraries, and refuse collection. The amount you pay depends on the value of the property.Read more about council Tax in our glossary page.
- Ask agent
- PARKINGDetails of how and where vehicles can be parked, and any associated costs.Read more about parking in our glossary page.
- Yes
- GARDENA property has access to an outdoor space, which could be private or shared.
- Yes
- ACCESSIBILITYHow a property has been adapted to meet the needs of vulnerable or disabled individuals.Read more about accessibility in our glossary page.
- Ask agent
Energy performance certificate - ask agent
29 Willow Way, Wakefield
Add an important place to see how long it'd take to get there from our property listings.
__mins driving to your place
Get an instant, personalised result:
- Show sellers you’re serious
- Secure viewings faster with agents
- No impact on your credit score
Your mortgage
Notes
Staying secure when looking for property
Ensure you're up to date with our latest advice on how to avoid fraud or scams when looking for property online.
Visit our security centre to find out moreDisclaimer - Property reference 12766020. The information displayed about this property comprises a property advertisement. Rightmove.co.uk makes no warranty as to the accuracy or completeness of the advertisement or any linked or associated information, and Rightmove has no control over the content. This property advertisement does not constitute property particulars. The information is provided and maintained by Stonebridge Shaw, Portishead. Please contact the selling agent or developer directly to obtain any information which may be available under the terms of The Energy Performance of Buildings (Certificates and Inspections) (England and Wales) Regulations 2007 or the Home Report if in relation to a residential property in Scotland.
*This is the average speed from the provider with the fastest broadband package available at this postcode. The average speed displayed is based on the download speeds of at least 50% of customers at peak time (8pm to 10pm). Fibre/cable services at the postcode are subject to availability and may differ between properties within a postcode. Speeds can be affected by a range of technical and environmental factors. The speed at the property may be lower than that listed above. You can check the estimated speed and confirm availability to a property prior to purchasing on the broadband provider's website. Providers may increase charges. The information is provided and maintained by Decision Technologies Limited. **This is indicative only and based on a 2-person household with multiple devices and simultaneous usage. Broadband performance is affected by multiple factors including number of occupants and devices, simultaneous usage, router range etc. For more information speak to your broadband provider.
Map data ©OpenStreetMap contributors.




