
The Stables, Coach House, Kinnerton Lane, Chester

- PROPERTY TYPE
Barn Conversion
- BEDROOMS
4
- BATHROOMS
3
- SIZE
Ask agent
- TENUREDescribes how you own a property. There are different types of tenure - freehold, leasehold, and commonhold.Read more about tenure in our glossary page.
Freehold
Description
TO BE SOLD BY ONLINE AUCTION ON 22nd OCTOBER 2025 UNLESS SOLD PRIOR UNDER AUCTION TERMS.
The Stables, Coach House, Kinnerton Lane, Higher Kinnerton Chester, CH4 9BE
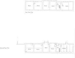
A rare and exciting opportunity to acquire a stone built stable block, set in approximately 0.3 acres of land and approached via a private drive. Planning permission was previously granted for conversion to double storey residential dwelling. Planning reference 053005. Consisting of three reception rooms, kitchen and four bedrooms one with en-suite and dressing room.
Set within a stunning rural location on the prestigious Kinnerton Lodge Estate, the Stables offers a rare opportunity to acquire a characterful period building with excellent development potential Formerly part of a grand Grade II Listed Coach House complex, The Stables enjoy a picturesque and tranquil setting, surrounded by beautiful woodland, open paddocks, and landscaped grounds, nestled within the estate grounds, the property offers superb scope for conversion. Retaining original architectural features and rustic charm, The Stables would lend themselves well to a sympathetic restoration and repurposing.
Located just minutes from the A55, the site combines idyllic countryside living with exceptional transport links. Chester is only 7 miles away, with Liverpool, Wrexham, and Manchester all easily accessible by road. The nearby village of Higher Kinnerton offers day-to-day amenities, a well-regarded primary school, and welcoming local pubs.
This is an exceptional chance to secure a unique building in an exclusive setting, with generous outdoor space and a wealth of potential.
- COUNCIL TAXA payment made to your local authority in order to pay for local services like schools, libraries, and refuse collection. The amount you pay depends on the value of the property.Read more about council Tax in our glossary page.
- Ask agent
- PARKINGDetails of how and where vehicles can be parked, and any associated costs.Read more about parking in our glossary page.
- Gated,Private
- GARDENA property has access to an outdoor space, which could be private or shared.
- Yes
- ACCESSIBILITYHow a property has been adapted to meet the needs of vulnerable or disabled individuals.Read more about accessibility in our glossary page.
- Ask agent
Energy performance certificate - ask agent
The Stables, Coach House, Kinnerton Lane, Chester
Add an important place to see how long it'd take to get there from our property listings.
__mins driving to your place
Get an instant, personalised result:
- Show sellers you’re serious
- Secure viewings faster with agents
- No impact on your credit score
Your mortgage
Notes
Staying secure when looking for property
Ensure you're up to date with our latest advice on how to avoid fraud or scams when looking for property online.
Visit our security centre to find out moreDisclaimer - Property reference EM-164595. The information displayed about this property comprises a property advertisement. Rightmove.co.uk makes no warranty as to the accuracy or completeness of the advertisement or any linked or associated information, and Rightmove has no control over the content. This property advertisement does not constitute property particulars. The information is provided and maintained by Meller Braggins, Knutsford. Please contact the selling agent or developer directly to obtain any information which may be available under the terms of The Energy Performance of Buildings (Certificates and Inspections) (England and Wales) Regulations 2007 or the Home Report if in relation to a residential property in Scotland.
Auction Fees: The purchase of this property may include associated fees not listed here, as it is to be sold via auction. To find out more about the fees associated with this property please call Meller Braggins, Knutsford on 01625 704012.
*Guide Price: An indication of a seller's minimum expectation at auction and given as a Guide Price or a range of Guide Prices. This is not necessarily the figure a property will sell for and is subject to change prior to the auction.
Reserve Price: Each auction property will be subject to a Reserve Price below which the property cannot be sold at auction. Normally the Reserve Price will be set within the range of Guide Prices or no more than 10% above a single Guide Price.
*This is the average speed from the provider with the fastest broadband package available at this postcode. The average speed displayed is based on the download speeds of at least 50% of customers at peak time (8pm to 10pm). Fibre/cable services at the postcode are subject to availability and may differ between properties within a postcode. Speeds can be affected by a range of technical and environmental factors. The speed at the property may be lower than that listed above. You can check the estimated speed and confirm availability to a property prior to purchasing on the broadband provider's website. Providers may increase charges. The information is provided and maintained by Decision Technologies Limited. **This is indicative only and based on a 2-person household with multiple devices and simultaneous usage. Broadband performance is affected by multiple factors including number of occupants and devices, simultaneous usage, router range etc. For more information speak to your broadband provider.
Map data ©OpenStreetMap contributors.








