
Tannery Lane, Embsay, Skipton, North Yorkshire, BD23

- PROPERTY TYPE
Town House
- BEDROOMS
4
- BATHROOMS
3
- SIZE
1,676 sq ft
156 sq m
- TENUREDescribes how you own a property. There are different types of tenure - freehold, leasehold, and commonhold.Read more about tenure in our glossary page.
Freehold
Key features
- Four bedroom modern property
- Amazing accommodation over three floors
- Two bathrooms and a master ensuite
- Open view over woodland
- Quiet cul de sac location
- Enclosed garden to the rear
- Open plan kitchen diner
- Two parking spaces and garage
Description
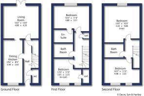
Entrance into the hallway with tiled floor, staircase to the first floor with understairs storage cupboard. Also off the hall is access to a two piece suite with close coupled w.c., and pedestal wash hand basin,
Into the living room with French doors leading out the rear garden and a feature sliding glass door into kitchen dining area. The kitchen diner has tiled flooring throughout and offers a selection of wall, drawer and base units with contrasting granite worktop surfaces over, sunken one and half stainless steel sink with mixer tap, integrated oven, grill oven, fridge/freezer, washing machine, dishwasher and a window with views out to the front.
To the first floor landing with a storage cupboard and access to the master bedroom with views out to the rear garden and woodland area and an en-suite comprising of an oversized shower cubicle with rain hood, concealed cistern w.c., wash hand basin, part tiled walls and tiled flooring. Next, the family bathroom with three piece suite comprising of a bath, concealed cistern w.c., wash hand basin, heated towel rail, part tiled walls and tiled flooring. The second bedroom has two windows to the front and boiler cupboard also housing the tank.
To the second floor with a spacious bedroom looking out over the woodland and a bathroom comprising of bath, concealed cistern w.c., wash hand basin, heated towel rail, part tiled walls and tiled flooring. The fourth bedroom is to the front
Externally, to the front is a gravelled driveway parking area with a flagged pathway. To the rear is an Indian stone patio, lawn, raised beds and new fencing to the boundary with an external gate leading to visitor parking. The garage is located up the road and has a remote door, power, light and a boarded loft. In front of the garage gives additional parking for a small car.
• North Yorkshire Council,
• Council Tax Band E
Tenure, Services & Parking
• Freehold
• Mains electricity, water, drainage and gas are installed. Domestic heating is from a gas fired boiler.
• Two parking spaces are on site along with an off site garage
• The property is located in a conservation area and the Yorkshire Dales National Park
• There is an estate charge of £410.32 PA
• Electric feed for and EV charging point
Internet & Mobile Coverage
The Ofcom website shows internet available from at least 1 provider. Outdoor mobile coverage (excl 5G) likely from at least 1 of the UK’s 4 main providers. Results are predictions not a guarantee & may differ subject to circumstances, exact location & network outages
The village has an excellent array of everyday facilities including a shop, two local pubs, primary school, churches etc and is only a short distance from the bustling market town of Skipton. From here a wider range of amenities can be found including highly regarded primary and secondary schooling(Ermysteds Grammar and Skipton Girls), supermarkets, numerous restaurants and pubs as well as excellent links by road and rail to the centres of West Yorkshire and East Lancashire and a regular train service to both Leeds and Bradford.
When leaving Skipton on the Harrogate Road with the castle on the left hand side proceed towards Harrogate taking the first left hand turn approx. 1/4 mile from the town centre, which is signposted Embsay. Follow the road into Embsay and immediately past The Cavendish Arms, turn left up West Lane taking the first left at our Dacre, Son & Hartley 'For Sale' board onto Tannery Lane. Follow the road round where the property is in the first cul de sac, marked by our Dacre, Son & Hartley 'For Sale' board.
Brochures
Particulars- COUNCIL TAXA payment made to your local authority in order to pay for local services like schools, libraries, and refuse collection. The amount you pay depends on the value of the property.Read more about council Tax in our glossary page.
- Band: E
- PARKINGDetails of how and where vehicles can be parked, and any associated costs.Read more about parking in our glossary page.
- Garage,Driveway
- GARDENA property has access to an outdoor space, which could be private or shared.
- Yes
- ACCESSIBILITYHow a property has been adapted to meet the needs of vulnerable or disabled individuals.Read more about accessibility in our glossary page.
- Ask agent
Tannery Lane, Embsay, Skipton, North Yorkshire, BD23
Add an important place to see how long it'd take to get there from our property listings.
__mins driving to your place
Get an instant, personalised result:
- Show sellers you’re serious
- Secure viewings faster with agents
- No impact on your credit score
Your mortgage
Notes
Staying secure when looking for property
Ensure you're up to date with our latest advice on how to avoid fraud or scams when looking for property online.
Visit our security centre to find out moreDisclaimer - Property reference SKI240294. The information displayed about this property comprises a property advertisement. Rightmove.co.uk makes no warranty as to the accuracy or completeness of the advertisement or any linked or associated information, and Rightmove has no control over the content. This property advertisement does not constitute property particulars. The information is provided and maintained by Dacre Son & Hartley, Skipton. Please contact the selling agent or developer directly to obtain any information which may be available under the terms of The Energy Performance of Buildings (Certificates and Inspections) (England and Wales) Regulations 2007 or the Home Report if in relation to a residential property in Scotland.
*This is the average speed from the provider with the fastest broadband package available at this postcode. The average speed displayed is based on the download speeds of at least 50% of customers at peak time (8pm to 10pm). Fibre/cable services at the postcode are subject to availability and may differ between properties within a postcode. Speeds can be affected by a range of technical and environmental factors. The speed at the property may be lower than that listed above. You can check the estimated speed and confirm availability to a property prior to purchasing on the broadband provider's website. Providers may increase charges. The information is provided and maintained by Decision Technologies Limited. **This is indicative only and based on a 2-person household with multiple devices and simultaneous usage. Broadband performance is affected by multiple factors including number of occupants and devices, simultaneous usage, router range etc. For more information speak to your broadband provider.
Map data ©OpenStreetMap contributors.






