3 bedroom barn conversion for sale
Brokes, Hudswell, Richmond

- PROPERTY TYPE
Barn Conversion
- BEDROOMS
3
- BATHROOMS
2
- SIZE
Ask agent
- TENUREDescribes how you own a property. There are different types of tenure - freehold, leasehold, and commonhold.Read more about tenure in our glossary page.
Freehold
Description
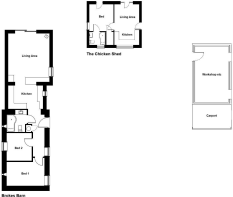
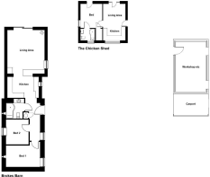
**BROKES BARN (Barn 1): Lovely Vaulted 8.39m x 4.14m max (27'6" x 13'6") KITCHEN, DINING & LIVING ROOM, 2 BEDROOMS & BATH/SHOWER ROOM.
**The CHICKEN SHED (Barn 2): LIVING-KITCHEN, Double BEDROOM with En-Suite BATH/SHOWER ROOM & En-Suite ROBE-STORE.
The Properties overlook open countryside & farmland, just 1.5 miles from historic RICHMOND, excellent access to the & the A1(M) & A66 Trans Pennine Route at Scotch Corner, about 6 miles. Mainline station at DARLINGTON about 15 miles - LONDON Kings Cross circa 2 hours 20 minutes. The unspoilt Yorkshire Dales National Park is on the doorstep.
Brokes Barn -
Hall - Built-in cupboard with hot-water cylinder. Truss beam ceiling & recessed double-glazed window to front.
Kitchen, Dining & Living Room - 8.39m x 4.14m max (27'6" x 13'6" max) - Part-vaulted with down-lighting & comprising:
Kitchen & Dining Area - Fitted with wall & floor units including rotary unit with worktops & inset twin bowl sink; integrated Bosch electric oven, ceramic hob with extractor over, microwave, fridge & freezer, dishwasher & washing machine. Drinks bar unit & breakfast bar. Recessed chamfered window to front & open to:
Living Area (Views) - Multi-fuel stove, recessed double-glazed windows to front & rear, & double-glazed patio doors to rear with great views.
Inner Hall -
Bedroom 1. - 3.84m x 2.29m min (12'7" x 7'6" min) - Vaulted truss beam ceiling & recessed double-glazed windows to front & rear.
Bedroom 2. - 2.79m x 2.77m (9'1" x 9'1") - Truss beam ceiling & recessed double-glazed window to rear.
Bath/Shower Room - 2.36m max (1.83m) x 2.15m max (7'8" max (6'0") x 7 - Panelled bath with bar shower over, recess & inset washbasin with drawers under & WC. Recessed chamfered double-glazed window to rear.
The Chicken Shed -
Living-Kitchen (Views) - 4.78m min x 3.25m (15'8" min x 10'7") - Wall & floor units with worktops, inset sink & electric oven with ceramic hob, integrated fridge & dishwasher. Part Oak flooring & open to Living Area with moulded ceiling relief & down-lighting, display shelving & contemporary electric fire. 2 recessed chamfered double-glazed windows to front & double-glazed door with side screens to rear with great views. Door to:
Double Bedroom (Views) - 3.32m x 3.20m (10'10" x 10'5") - Moulded ceiling relief, double-glazed chamfered side window & door to rear with great views. Doors to:
En-Suite Bath/Shower Room - 2.01m x 1.47m (6'7" x 4'9") - Panelled bath with Mira shower over, inset washbasin with cupboards & inset WC. Travertine style tiling & double-glazed chamfered front window.
En-Suite Wardrobe - 1.35m x 1.17m (4'5" x 3'10") - Walk-in wardrobe with light point.
Outside - Stone boundary wall to extensive courtyard parking area, rear & side sitting areas &:
Workshop Etc Building - 5.61m x 4.78m (18'4" x 15'8") - Cavity-wall built with double-glazed window to rear – Great views, & 2 openings to side.
Adjoining Carport - 4.81m x 2.81m (15'9" x 9'2") -
Notes - (1) Freehold
(2) Mains Water, Electricity & Septic Tank Drainage
(3) Council Tax Band: Brokes Barn: B & The Chicken Shed: TBC
(4) EPC: Brokes Barn: 51-E & The Chicken Shed: TBC
(5) Electric Heating & Double-glazing
Brochures
Brokes, Hudswell, RichmondBrochure- COUNCIL TAXA payment made to your local authority in order to pay for local services like schools, libraries, and refuse collection. The amount you pay depends on the value of the property.Read more about council Tax in our glossary page.
- Band: B
- PARKINGDetails of how and where vehicles can be parked, and any associated costs.Read more about parking in our glossary page.
- Yes
- GARDENA property has access to an outdoor space, which could be private or shared.
- Ask agent
- ACCESSIBILITYHow a property has been adapted to meet the needs of vulnerable or disabled individuals.Read more about accessibility in our glossary page.
- Ask agent
Brokes, Hudswell, Richmond
Add an important place to see how long it'd take to get there from our property listings.
__mins driving to your place
Get an instant, personalised result:
- Show sellers you’re serious
- Secure viewings faster with agents
- No impact on your credit score



Your mortgage
Notes
Staying secure when looking for property
Ensure you're up to date with our latest advice on how to avoid fraud or scams when looking for property online.
Visit our security centre to find out moreDisclaimer - Property reference 34218566. The information displayed about this property comprises a property advertisement. Rightmove.co.uk makes no warranty as to the accuracy or completeness of the advertisement or any linked or associated information, and Rightmove has no control over the content. This property advertisement does not constitute property particulars. The information is provided and maintained by Alderson Estate Agents, Richmond. Please contact the selling agent or developer directly to obtain any information which may be available under the terms of The Energy Performance of Buildings (Certificates and Inspections) (England and Wales) Regulations 2007 or the Home Report if in relation to a residential property in Scotland.
*This is the average speed from the provider with the fastest broadband package available at this postcode. The average speed displayed is based on the download speeds of at least 50% of customers at peak time (8pm to 10pm). Fibre/cable services at the postcode are subject to availability and may differ between properties within a postcode. Speeds can be affected by a range of technical and environmental factors. The speed at the property may be lower than that listed above. You can check the estimated speed and confirm availability to a property prior to purchasing on the broadband provider's website. Providers may increase charges. The information is provided and maintained by Decision Technologies Limited. **This is indicative only and based on a 2-person household with multiple devices and simultaneous usage. Broadband performance is affected by multiple factors including number of occupants and devices, simultaneous usage, router range etc. For more information speak to your broadband provider.
Map data ©OpenStreetMap contributors.





