
2 bedroom apartment for sale
18 St. Annes Road East, Lytham St. Annes, FY8

- PROPERTY TYPE
Apartment
- BEDROOMS
2
- BATHROOMS
1
- SIZE
Ask agent
Key features
- 2 DOUBLE BEDROOMS
- 1st FLOOR FLAT
- PARKING TO REAR
- MODERN KITCHEN DINER
- VERY LARGE ROOMS THROUGHOUT
- **NO CHAIN DELAY**
- CLOSE TO ST. ANNES SQUARE
Description
Welcome to St. Annes Road East, this large apartment is presented to a high standard throughout and offers a highly convenient location. There is also a parking space to the rear.
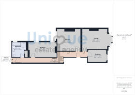
Communal front door opens on to entrance hallway, stairs lead to the first floor; door leads into the properties hallway. Central hallway within the property leads to the following accommodation - A large lounge with picture bay window to the front elevation, UPVc double glazed sash window, the focal point is this room is a modern electric fire with surround. The kitchen is an excellent size, large enough to house a good size dining table. There are a range of modern wall and base units along with complementary worktops.
There are 2 bedrooms, both of which are well proportioned. The family bathroom is stunning, a recently fitted 4 piece suite comprises - bath, separate shower, wash hand basin set on a vanity unit, toilet.
To the rear there is a single parking space.
Offered with no onward chain.
LOUNGE - 4.95 x 4.08 m (16′3″ x 13′5″ ft)
KITCHEN DINER - 4.68 x 4.41 m (15′4″ x 14′6″ ft)
BEDROOM - 5.35 x 2.99 m (17′7″ x 9′10″ ft)
BEDROOM - 3.74 x 2.41 m (12′3″ x 7′11″ ft)
BATHROOM - 2.97 x 2.29 m (9′9″ x 7′6″ ft)
- COUNCIL TAXA payment made to your local authority in order to pay for local services like schools, libraries, and refuse collection. The amount you pay depends on the value of the property.Read more about council Tax in our glossary page.
- Ask agent
- PARKINGDetails of how and where vehicles can be parked, and any associated costs.Read more about parking in our glossary page.
- Yes
- GARDENA property has access to an outdoor space, which could be private or shared.
- Ask agent
- ACCESSIBILITYHow a property has been adapted to meet the needs of vulnerable or disabled individuals.Read more about accessibility in our glossary page.
- Ask agent
18 St. Annes Road East, Lytham St. Annes, FY8
Add an important place to see how long it'd take to get there from our property listings.
__mins driving to your place
Get an instant, personalised result:
- Show sellers you’re serious
- Secure viewings faster with agents
- No impact on your credit score

Your mortgage
Notes
Staying secure when looking for property
Ensure you're up to date with our latest advice on how to avoid fraud or scams when looking for property online.
Visit our security centre to find out moreDisclaimer - Property reference 9607. The information displayed about this property comprises a property advertisement. Rightmove.co.uk makes no warranty as to the accuracy or completeness of the advertisement or any linked or associated information, and Rightmove has no control over the content. This property advertisement does not constitute property particulars. The information is provided and maintained by Unique Estate Agency Ltd, Lytham St Annes. Please contact the selling agent or developer directly to obtain any information which may be available under the terms of The Energy Performance of Buildings (Certificates and Inspections) (England and Wales) Regulations 2007 or the Home Report if in relation to a residential property in Scotland.
*This is the average speed from the provider with the fastest broadband package available at this postcode. The average speed displayed is based on the download speeds of at least 50% of customers at peak time (8pm to 10pm). Fibre/cable services at the postcode are subject to availability and may differ between properties within a postcode. Speeds can be affected by a range of technical and environmental factors. The speed at the property may be lower than that listed above. You can check the estimated speed and confirm availability to a property prior to purchasing on the broadband provider's website. Providers may increase charges. The information is provided and maintained by Decision Technologies Limited. **This is indicative only and based on a 2-person household with multiple devices and simultaneous usage. Broadband performance is affected by multiple factors including number of occupants and devices, simultaneous usage, router range etc. For more information speak to your broadband provider.
Map data ©OpenStreetMap contributors.





