Land at Meadowbrook, Off Durranhill Road, Carlisle, Cumbria CA1 2GU
- PROPERTY TYPE
Land
- SIZE
Ask agent
Key features
- Potential development site
- Approx 4.1 acres
- Off Rufus Road
- East side of City
Description
GUIDE PRICE £75,000 - £100,000 PLUS VAT
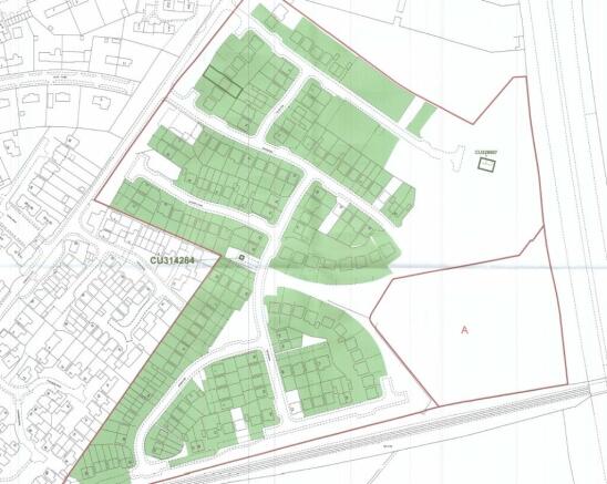
FOR SALE BY PUBLIC AUCTION ON THURSDAY 23RD OCTOBER 2025 AT THE HALSTON HOTEL, CARLISLE - For bidding registration, please visit auctionhousecumbria.co.uk - The site extends overall to approximately 4.1 acres and is situated off Rufus Road on the easterly outskirts of the City with easy access to the M6 at junction 43.
The site is allocated for residential development (U18) in the Cumberland Council local plan for 150 units, however Taylor Wimpey has already delivered 198 units on our Phase 1 scheme directly to the East which is part of the same allocation.
Taylor Wimpey previously submitted a planning application for 15 units on the site however this application was not determined and has now been finally disposed.
Interested parties should make their own enquiries to Cumberland Council regarding their proposed use.
Potential development land
The site extends overall to approximately 4.1 acres and is situated off Rufus Road on the easterly outskirts of the City with easy access to the M6 at junction 43. It is marked A on the plan.
The site is allocated for residential development (U18) in the Cumberland Council local plan for 150 units, however Taylor Wimpey has already delivered 198 units on their Phase 1 scheme directly to the East which is part of the same allocation.
Taylor Wimpey previously submitted a planning application for 15 units on the site however this application was not determined and has now been finally disposed.
Interested parties should make their own enquiries to Cumberland Council regarding their proposed use.
What3words location ///sample.punchy.hooked
Tenure: See Legal Pack
Administration Fee: 1.2% inc VAT of the purchase price, subject to a minimum of £1500 inc VAT, payable on exchange of contracts.
Disbursements: Please see the legal pack for any disbursements listed that may become payable by the purchaser on completion.
Land at Meadowbrook, Off Durranhill Road, Carlisle, Cumbria CA1 2GU
NEAREST STATIONS
Distances are straight line measurements from the centre of the postcode- Carlisle Station1.7 miles
- Wetheral Station2.4 miles
- Dalston Station5.0 miles
Notes
Disclaimer - Property reference 202404241107sq_i6n9. The information displayed about this property comprises a property advertisement. Rightmove.co.uk makes no warranty as to the accuracy or completeness of the advertisement or any linked or associated information, and Rightmove has no control over the content. This property advertisement does not constitute property particulars. The information is provided and maintained by Auction House Cumbria, Carlisle. Please contact the selling agent or developer directly to obtain any information which may be available under the terms of The Energy Performance of Buildings (Certificates and Inspections) (England and Wales) Regulations 2007 or the Home Report if in relation to a residential property in Scotland.
Auction Fees: The purchase of this property may include associated fees not listed here, as it is to be sold via auction. To find out more about the fees associated with this property please call Auction House Cumbria, Carlisle on 01228 937772.
*Guide Price: An indication of a seller's minimum expectation at auction and given as a Guide Price or a range of Guide Prices. This is not necessarily the figure a property will sell for and is subject to change prior to the auction.
Reserve Price: Each auction property will be subject to a Reserve Price below which the property cannot be sold at auction. Normally the Reserve Price will be set within the range of Guide Prices or no more than 10% above a single Guide Price.
Map data ©OpenStreetMap contributors.




