Crabtree Lane, Lancing

- PROPERTY TYPE
Maisonette
- BEDROOMS
4
- BATHROOMS
1
- SIZE
Ask agent
Description
PRODUCING IMMEDIATE INCOME OF £2,320 PCM.
Avards Estate Agents are pleased to present this charming four-bedroom maisonette located on the sought-after Crabtree Lane in Lancing. Currently operating as a House in Multiple Occupation (HMO), this property generates an impressive rental income of £2,320 per calendar month, making it an excellent investment opportunity.
The maisonette is well-situated, with a delightful array of shops nearby, and is conveniently within walking distance to the high street and Lancing train station. This location offers excellent transport links to Brighton, Gatwick Airport, and London, making it ideal for commuters and those who enjoy the vibrancy of city life.
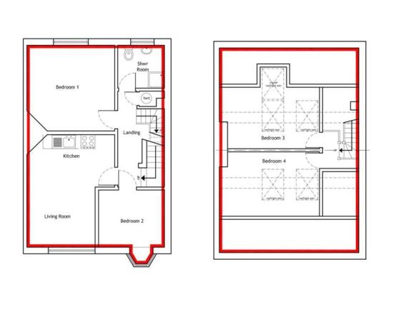
The accommodation is thoughtfully arranged over two floors. On the first floor, you will find a welcoming landing that leads to a spacious living area, which seamlessly integrates with a modern kitchen. This floor also features two comfortable bedrooms and a contemporary shower room. Ascending to the second floor, you will discover two additional bedrooms, providing ample space for family or guests.
Whether you are looking for a lucrative investment or a lovely family home, this maisonette offers versatility and convenience in a desirable location. Do not miss the chance to view this property, which is ready for immediate occupancy or continued rental.
First Floor -
Landing -
Living/Modern Kitchen Area -
Bedroom -
Bedroom -
Second Floor -
Bedroom -
Bedroom -
Disclaimer - Under the terms of the Estate Agency Act 1979 (section 21) please note that the Vendor of this property has an affiliation or connection with Avard Estate Agents.
All interested parties must verify accuracy with your solicitor, your solicitor also must verify lease and tenure information, where the property has been extended/converted, planning/building regulations consents and fixtures and fittings. All dimensions are approximate and quoted for guidance only as are floor plans which are not to scale and their accuracy cannot be confirmed. The information provided about this property does not constitute or form part of an offer or contract, nor maybe it be regarded as representations. Reference to appliances and/or services does not imply that they are necessarily in working order or fit for the purpose.
THESE PARTICULARS ARE BELIEVED TO BE CORRECT, BUT THEIR ACCURACY IS NOT GUARANTEED. THEY DO NOT FORM PART OF ANY CONTRACT.
Brochures
Crabtree Lane, LancingBrochure- COUNCIL TAXA payment made to your local authority in order to pay for local services like schools, libraries, and refuse collection. The amount you pay depends on the value of the property.Read more about council Tax in our glossary page.
- Ask agent
- PARKINGDetails of how and where vehicles can be parked, and any associated costs.Read more about parking in our glossary page.
- Ask agent
- GARDENA property has access to an outdoor space, which could be private or shared.
- Ask agent
- ACCESSIBILITYHow a property has been adapted to meet the needs of vulnerable or disabled individuals.Read more about accessibility in our glossary page.
- Ask agent
Crabtree Lane, Lancing
Add an important place to see how long it'd take to get there from our property listings.
__mins driving to your place
Get an instant, personalised result:
- Show sellers you’re serious
- Secure viewings faster with agents
- No impact on your credit score
Your mortgage
Notes
Staying secure when looking for property
Ensure you're up to date with our latest advice on how to avoid fraud or scams when looking for property online.
Visit our security centre to find out moreDisclaimer - Property reference 34219290. The information displayed about this property comprises a property advertisement. Rightmove.co.uk makes no warranty as to the accuracy or completeness of the advertisement or any linked or associated information, and Rightmove has no control over the content. This property advertisement does not constitute property particulars. The information is provided and maintained by Avard Estate Agents, Brighton. Please contact the selling agent or developer directly to obtain any information which may be available under the terms of The Energy Performance of Buildings (Certificates and Inspections) (England and Wales) Regulations 2007 or the Home Report if in relation to a residential property in Scotland.
*This is the average speed from the provider with the fastest broadband package available at this postcode. The average speed displayed is based on the download speeds of at least 50% of customers at peak time (8pm to 10pm). Fibre/cable services at the postcode are subject to availability and may differ between properties within a postcode. Speeds can be affected by a range of technical and environmental factors. The speed at the property may be lower than that listed above. You can check the estimated speed and confirm availability to a property prior to purchasing on the broadband provider's website. Providers may increase charges. The information is provided and maintained by Decision Technologies Limited. **This is indicative only and based on a 2-person household with multiple devices and simultaneous usage. Broadband performance is affected by multiple factors including number of occupants and devices, simultaneous usage, router range etc. For more information speak to your broadband provider.
Map data ©OpenStreetMap contributors.




