
Seymour Villas, Anerley, SE20

- PROPERTY TYPE
End of Terrace
- BEDROOMS
4
- BATHROOMS
1
- SIZE
Ask agent
- TENUREDescribes how you own a property. There are different types of tenure - freehold, leasehold, and commonhold.Read more about tenure in our glossary page.
Freehold
Key features
- Modern end terrace house
- Re-fitted bathroom
- Four bedrooms
- Gas central heating & double glazed
- Cloakroom
- Courtyard style rear garden
- Updated throughout
- Quiet location near to Betts Park
Description
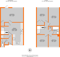
This deceptively spacious home has been updated over the years and now provides light and spacious, neutrally decorated great family accommodation. Off the hall is a cloakroom and utility cupboard which opens onto the fitted kitchen/dining room with integrated appliances, a door then leads to the full width living room which opens onto the private courtyard style garden with views towards Betts Park and the historic Croydon Canal. To the upstairs there is a feeling of space helped by the vaulted ceilings, to each of the four bedrooms and re-modelled bathroom. Benefits include, gas central radiator central heating with a fully serviced boiler, sealed unit double glazed replacement windows, laminated and carpeted floors as well as it being 'chain free'. Outside is a full width courtyard style rear garden and large garden store room as well as off road residents parking to the front on a first come first served basis
Situated within a small development in a convenient and quiet location backing onto the only remaining section of the historic Croydon Canal in existence we believe, with Betts Park beyond only 0.2 miles away. Anerley Station ( West Croydon to Highbury & Islington via many stations en-route including Canada Water and Surrey Quays) is the stop before Penge East where you can alight to get the overground underground line into London Bridge. There are local shops and bus services along the Anerley Road which leads upto Crystal Palace and the area is well served by schools for all ages including James Dixon Primary within 0.2 mile distance
Entrance
replaced semi-glazed entrance door to
Entrance Hall
tiled floor, built-in shelved storage cupboard, further larger walk-in utility cupboard with plumbing and space for washing machine, worktop over with shelves about, electric light, semi-glazed door to
Kitchen/Dining Room
5.34m x 5.25m (17' 6" x 17' 3") 'L' shaped, light and spacious, staircase to first floor with storage recess below, further built-in storage cupboard, laminated flooring, glazed door to sitting room
KITCHEN AREA: comprises white units of base cupboards and drawers, ample worktops, inset ceramic hob with oven below, cupboard with integrated fridge/freezer, inset stainless steel sink unit with mixer tap, windows to front
Cloakroom
toilet, wall mounted wash basin with mixer tap with cupboard below, window to front, part tiled walls
Living Room
5.34m x 3.27m (17' 6" x 10' 9") full width, laminated floor, large window and glazed door onto courtyard style rear garden, built-in storage cupboard
stairs to
Landing
vaulted ceiling, high level window, built-in shelved airing cupboard houses fully serviced gas fired Vaillant combination boiler
Bedroom 1
4.37m x 2.63m (14' 4" x 8' 8") vaulted ceiling, window to rear, views towards the park
Bedroom 2
4.08m x 2.61m (13' 5" x 8' 7") window to rear, views towards the park, range of wardrobes with lockers over, vaulted ceiling
Bedroom 3
2.81m x 2.61m (9' 3" x 8' 7") vaulted ceiling, window to front, range of free standing wardrobes
Bedroom 4
2.81m x 2.59m (9' 3" x 8' 6") window to front, vaulted ceiling, range of free standing wardrobes
Bathroom
vaulted ceiling, high level windows to rear, white suite of modern panel bath with mixer tap and hand spray, vanity surface with inset wash basin, cupboard under, toilet with concealed cistern, chrome ladder style heated towel rail, part tiled walls
To the front
off street resident parking on a first come first served basis
To the rear
artificial turfed courtyard style full width rear garden, views towards the park and canal, gate providing rear access to built-in storage cupboard
Additional Information
Council Tax
London Borough of Bromley - Band D
Please visit: bromley.gov.uk/council-tax/council-tax-guide
Utilities
MAINS - Gas, Electricity, Water and Sewerage
Broadband and Mobile
To check coverage please visit
checker.ofcom.org.uk/en-gb/broadband-coverage
checker.ofcom.org.uk/en-gb/mobile-coverage
Brochures
Brochure 1Brochure 2- COUNCIL TAXA payment made to your local authority in order to pay for local services like schools, libraries, and refuse collection. The amount you pay depends on the value of the property.Read more about council Tax in our glossary page.
- Band: D
- PARKINGDetails of how and where vehicles can be parked, and any associated costs.Read more about parking in our glossary page.
- Yes
- GARDENA property has access to an outdoor space, which could be private or shared.
- Yes
- ACCESSIBILITYHow a property has been adapted to meet the needs of vulnerable or disabled individuals.Read more about accessibility in our glossary page.
- Ask agent
Seymour Villas, Anerley, SE20
Add an important place to see how long it'd take to get there from our property listings.
__mins driving to your place
Get an instant, personalised result:
- Show sellers you’re serious
- Secure viewings faster with agents
- No impact on your credit score
Your mortgage
Notes
Staying secure when looking for property
Ensure you're up to date with our latest advice on how to avoid fraud or scams when looking for property online.
Visit our security centre to find out moreDisclaimer - Property reference 29531333. The information displayed about this property comprises a property advertisement. Rightmove.co.uk makes no warranty as to the accuracy or completeness of the advertisement or any linked or associated information, and Rightmove has no control over the content. This property advertisement does not constitute property particulars. The information is provided and maintained by Proctors, Beckenham. Please contact the selling agent or developer directly to obtain any information which may be available under the terms of The Energy Performance of Buildings (Certificates and Inspections) (England and Wales) Regulations 2007 or the Home Report if in relation to a residential property in Scotland.
*This is the average speed from the provider with the fastest broadband package available at this postcode. The average speed displayed is based on the download speeds of at least 50% of customers at peak time (8pm to 10pm). Fibre/cable services at the postcode are subject to availability and may differ between properties within a postcode. Speeds can be affected by a range of technical and environmental factors. The speed at the property may be lower than that listed above. You can check the estimated speed and confirm availability to a property prior to purchasing on the broadband provider's website. Providers may increase charges. The information is provided and maintained by Decision Technologies Limited. **This is indicative only and based on a 2-person household with multiple devices and simultaneous usage. Broadband performance is affected by multiple factors including number of occupants and devices, simultaneous usage, router range etc. For more information speak to your broadband provider.
Map data ©OpenStreetMap contributors.






