Limassol, Agios Tychonas, Cyprus
- PROPERTY TYPE
Detached
- BEDROOMS
3
- BATHROOMS
4
- SIZE
3,197 sq ft
297 sq m
Key features
- Entrance hall
- Bath
- Shower
- Easy access to main roads
- Easy access to highway
- Combined kitchen and dining area
- Municipal water/sewage
- Entrance gate
- Garden, large
- Internal stairs
Description
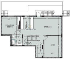
Luxury villa for sale in a prime location of Agios Tychonas, Limassol. The property consists of three levels. The ground floor consists of an open plan kitchen with living room and dining area, a guest W/C and an office. The upper floor consists of three bedrooms, three en – suite shower with W/C, while the master bedroom belongs a Walk – In Closet. On the basement there are a gym room, two storages, a Laundry room, a changing room and a main shower with W/C.
The property also has a private swimming pool and two parking spaces.
The villa has an internal covered area of 297sq.m into a plot of 600sq.m, an asset with offer a landscaped garden and a covered veranda of 31 sq.m.
Extra: Garden, Covered Parking, Swimming Pool, Gym area, Laundry Room
Limassol, Agios Tychonas, Cyprus
NEAREST AIRPORTS
Distances are straight line measurements- Larnaka(International)30.8 miles
- Pafos(International)36.3 miles
- Ercan(Local)36.5 miles
Advice on buying Cypriot property
Learn everything you need to know to successfully find and buy a property in Cyprus.
Notes
This is a property advertisement provided and maintained by K. Kalogirou Real Estate Ltd, Larnaca (reference 53277) and does not constitute property particulars. Whilst we require advertisers to act with best practice and provide accurate information, we can only publish advertisements in good faith and have not verified any claims or statements or inspected any of the properties, locations or opportunities promoted. Rightmove does not own or control and is not responsible for the properties, opportunities, website content, products or services provided or promoted by third parties and makes no warranties or representations as to the accuracy, completeness, legality, performance or suitability of any of the foregoing. We therefore accept no liability arising from any reliance made by any reader or person to whom this information is made available to. You must perform your own research and seek independent professional advice before making any decision to purchase or invest in overseas property.






