13-15 Millgate, Wigan, Greater Manchester WN1 1YB
- SIZE
Ask agent
- SECTOR
Commercial property for sale
Key features
- Substantial Bar/Restaurant/Retail Property
- Planning Submitted To Divide Into 2x Retail Units & 2x Flats
Description
Online Auction - 11th - 12th November 2025
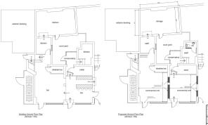
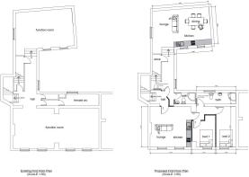
Substantial Bar/Restaurant/Retail Property – Planning Submitted To Convert to 2x Retail Units & 2x Flats
Vacant two storey double fronted bar/restaurant premises with attached two storey barn to the rear.
The building benefits from 2x separate entrance doors to the front from Millgate together with a side entrance and rear access.
We are informed that the property is located within a conservation area but not listed.
The seller has recently submitted plans to convert the property into 2x retail/commercial units with 2x flats to the first and second floors (1x 1 bed & 1 x 2 bed).
Located on Millgate close to the main entrance to The Grand Arcade and the junction of Market Place and Standishgate. The surrounding area has recently seen substantial investment including the recently refurbished Capital & Centric Civic Centre and Wigan Life Centre.
Tenure: Freehold
Title number: GM885490
Local Authority: Wigan
Finance is available on this lot. For a decision-in-principle visit togethermoney.com/amydip/
IMPORTANT INFORMATION Buying at auction is a contractual commitment, you are legally obliged to buy the lot on the terms of the sale memorandum at the price you bid. If you are the successful bidder, you are required to pay the deposit and auction fees immediately. As agent for the seller, we treat any failure to satisfy your obligations as your repudiation of the contract and the seller may then have a claim against you for breach of contract. You must not bid unless you wish to be bound by the common conditions of auction.
ANTI-MONEY LAUNDERING REGULATIONS In accordance with Anti-Money Laundering Regulations, two forms of identification and confirmation of the source of funding will be required from the successful purchaser. Every effort has been made to confirm the accuracy of the lot details including any defect in the title both with the vendor and their solicitor. Auction House will not be held responsible for any failure to disclose any such defects.
Any purchasers choosing to buy without viewing in person are doing so at their own risk and acknowledge that the auctioneer will not be held responsible for any issues that may arise due to them being unintentionally missed from the video or sales particulars.
Please refer to legal pack for additional fees and the Auction Information document for guidance prior to bidding.
Tenure: Freehold
EPC Rating: TBC
Administration Fee: 2.5% inc VAT of the purchase price, subject to a minimum of £2500 inc VAT, payable on exchange of contracts.
Disbursements: Please see the legal pack for any disbursements listed that may become payable by the purchaser on completion.
13-15 Millgate, Wigan, Greater Manchester WN1 1YB
NEAREST STATIONS
Distances are straight line measurements from the centre of the postcode- Wigan Wallgate Station0.2 miles
- Wigan North Western Station0.2 miles
- Ince Station0.9 miles
Notes
Disclaimer - Property reference 202510021130sq_axw5. The information displayed about this property comprises a property advertisement. Rightmove.co.uk makes no warranty as to the accuracy or completeness of the advertisement or any linked or associated information, and Rightmove has no control over the content. This property advertisement does not constitute property particulars. The information is provided and maintained by Auction House North West, Commercial. Please contact the selling agent or developer directly to obtain any information which may be available under the terms of The Energy Performance of Buildings (Certificates and Inspections) (England and Wales) Regulations 2007 or the Home Report if in relation to a residential property in Scotland.
Auction Fees: The purchase of this property may include associated fees not listed here, as it is to be sold via auction. To find out more about the fees associated with this property please call Auction House North West, Commercial on 0161 524 6307.
*Guide Price: An indication of a seller's minimum expectation at auction and given as a Guide Price or a range of Guide Prices. This is not necessarily the figure a property will sell for and is subject to change prior to the auction.
Reserve Price: Each auction property will be subject to a Reserve Price below which the property cannot be sold at auction. Normally the Reserve Price will be set within the range of Guide Prices or no more than 10% above a single Guide Price.
Map data ©OpenStreetMap contributors.






