
Bradford Road, Wakefield

- PROPERTY TYPE
Semi-Detached
- BEDROOMS
2
- BATHROOMS
1
- SIZE
Ask agent
- TENUREDescribes how you own a property. There are different types of tenure - freehold, leasehold, and commonhold.Read more about tenure in our glossary page.
Freehold
Key features
- Semi Detached Property
- Two Bedrooms & Loft Room
- Open Plan Kitchen Diner
- Spacious Accommodation Throughout
- Modern Fitted Bathroom
- Off Road Parking
- Enclosed Rear Garden
- EPC Rating D60
Description
Ideally located close to Wakefield city centre, this well presented and extended two bedroom semi detached property offers generous living accommodation and excellent convenience.
The accommodation comprises an entrance hall, a comfortable lounge, and an extended kitchen/dining room. To the first floor, there are two well proportioned bedrooms and a modern family bathroom with stairs up to the spacious loft room from bedroom two. The property benefits from a side driveway providing parking for up to three cars, as well as attractive gardens to the front and rear. The rear garden features a lawn, patio, and decked seating area, perfect for outdoor entertaining.
Situated within easy reach of local shops, schools, and amenities, the property is just a short drive from Wakefield city centre and offers excellent access to the motorway network for those commuting further afield.
Early viewing is highly recommended.
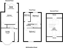
Accommodation -
Entrance Hall - Entrance door into the entrance hallway, central heating radiator, stairs to the first floor landing. Doors to the lounge and the kitchen/diner.
Lounge - 4.36m x 3.65m (14'3" x 11'11") - UPVC double glazed bay window to the front, central heating radiator, feature open fireplace with wooden surround.
Kitchen - 4.77m x 3.32m (15'7" x 10'10") - Wooden style kitchen with an array of base units for storage, space for a gas hob with tile splashback and cooker hood, island with further storage section, inset stainless steel sink with tap, integrated dishwasher, integrated washing machine. Door into a pantry room with room for a fridge/freezer.
Dining Room - 3.60m x 2.39m (11'9" x 7'10") - UPVC double glazed bi-folding doors to the rear, two Velux windows and space for a fridge freezer.
First Floor Landing - Doors to two bedrooms and the house bathroom.
Bedroom One - 4.78m x 3.63m (15'8" x 11'10") - UPVC double glazed window to the front, central heating radiator.
Bedroom Two - 2.34m x 2.40m (7'8" x 7'10") - UPVC double glazed window to the rear, central heating radiator and a door with stairs leading to the loft room.
Bathroom - 3.0m x 2.0m (9'10" x 6'6") - Frosted UPVC double glazed window to the rear, central heating radiator, spotlights, full tiling. Wall mounted shower over bath with glass shower screen, vanity wash basin with mixer tap, low flush W.C..
Loft Room - 5.12m x 4.33m (16'9" x 14'2") - Four UPVC double glazed Velux windows (two to the front, two to the rear), central heating radiator, access to the eaves.
Outside - To the rear of the property, there is a patio seating area leading up to the side where there is a corner decked seating area with pebble border, space for a storage shed, and a small low-maintenance lawn to the side. The property is updated with driveway parking offering ample space for up to three cars. Neighbours have shared access for bins to the side and access to their garden.
Council Tax Band - The council tax band for this property is C.
Floor Plans - These floor plans are intended as a rough guide only and are not to be intended as an exact representation and should not be scaled. We cannot confirm the accuracy of the measurements or details of these floor plans.
Epc Rating - To view the full Energy Performance Certificate please call into one of our local offices.
Viewing - To view please contact our Wakefield office and they will be pleased to arrange a suitable appointment.
Brochures
Brochure- COUNCIL TAXA payment made to your local authority in order to pay for local services like schools, libraries, and refuse collection. The amount you pay depends on the value of the property.Read more about council Tax in our glossary page.
- Band: C
- PARKINGDetails of how and where vehicles can be parked, and any associated costs.Read more about parking in our glossary page.
- Off street
- GARDENA property has access to an outdoor space, which could be private or shared.
- Yes
- ACCESSIBILITYHow a property has been adapted to meet the needs of vulnerable or disabled individuals.Read more about accessibility in our glossary page.
- Ask agent
Bradford Road, Wakefield
Add an important place to see how long it'd take to get there from our property listings.
__mins driving to your place
Get an instant, personalised result:
- Show sellers you’re serious
- Secure viewings faster with agents
- No impact on your credit score



Affordability
Notes
Staying secure when looking for property
Ensure you're up to date with our latest advice on how to avoid fraud or scams when looking for property online.
Visit our security centre to find out moreDisclaimer - Property reference 34219968. The information displayed about this property comprises a property advertisement. Rightmove.co.uk makes no warranty as to the accuracy or completeness of the advertisement or any linked or associated information, and Rightmove has no control over the content. This property advertisement does not constitute property particulars. The information is provided and maintained by Richard Kendall, Wakefield. Please contact the selling agent or developer directly to obtain any information which may be available under the terms of The Energy Performance of Buildings (Certificates and Inspections) (England and Wales) Regulations 2007 or the Home Report if in relation to a residential property in Scotland.
*This is the average speed from the provider with the fastest broadband package available at this postcode. The average speed displayed is based on the download speeds of at least 50% of customers at peak time (8pm to 10pm). Fibre/cable services at the postcode are subject to availability and may differ between properties within a postcode. Speeds can be affected by a range of technical and environmental factors. The speed at the property may be lower than that listed above. You can check the estimated speed and confirm availability to a property prior to purchasing on the broadband provider's website. Providers may increase charges. The information is provided and maintained by Decision Technologies Limited. **This is indicative only and based on a 2-person household with multiple devices and simultaneous usage. Broadband performance is affected by multiple factors including number of occupants and devices, simultaneous usage, router range etc. For more information speak to your broadband provider.
Map data ©OpenStreetMap contributors.






