
2 bedroom duplex for sale
Adriatic Apartments, 20 Western Gateway, London, E16

- PROPERTY TYPE
Duplex
- BEDROOMS
2
- BATHROOMS
2
- SIZE
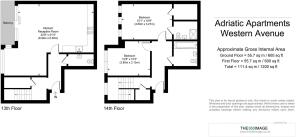
1,066 sq ft
99 sq m
Key features
- 2 BEDROOM DUPLEX
- NATURAL LIGHTING
- PRIVATE BALCONY
- GREAT TRANSPORT LINKS
- CONCIERGE
- PERFECT LOCAL AMENITIES
- SPACIOUS ROOMS
- GREAT FOR PROFESIONALS
Description
A rare opportunity to purchase this outstanding chain-free two-floor duplex apartment in the highly sought-after Adriatic Apartments, boasting striking glass façades and breathtaking views across the docks and London’s skyline.
Spread over two bright and spacious levels, this unique home offers a generous reception area with contemporary finishes throughout. Floor-to-ceiling windows flood the space with natural light, while the open-plan kitchen, dining and living area provides the perfect setting for both day-to-day living and entertaining. The kitchen is equipped with high-quality integrated appliances, adding to the modern feel of the property.
Step out onto the private balcony and take in the tranquil dockside setting, complemented by impressive views of London’s high rises.
Both bedrooms are well-proportioned and filled with natural light, creating a calm and luxurious atmosphere. The layout and finish make this apartment an ideal choice for those seeking a stylish and low-maintenance home.
Located in the vibrant Royal Victoria Dock, you’re moments from the Excel Centre, a short cable-car ride to the O2 Arena, and within easy reach of Canary Wharf’s extensive shops, restaurants and leisure facilities. Excellent transport links place the rest of London at your convenience.
Offering modern city living in one of the area’s most prestigious developments, this chain-free home is not to be missed.
Contact us today to arrange your viewing.
EPC Rating: C
- COUNCIL TAXA payment made to your local authority in order to pay for local services like schools, libraries, and refuse collection. The amount you pay depends on the value of the property.Read more about council Tax in our glossary page.
- Ask agent
- PARKINGDetails of how and where vehicles can be parked, and any associated costs.Read more about parking in our glossary page.
- Ask agent
- GARDENA property has access to an outdoor space, which could be private or shared.
- Ask agent
- ACCESSIBILITYHow a property has been adapted to meet the needs of vulnerable or disabled individuals.Read more about accessibility in our glossary page.
- Ask agent
Energy performance certificate - ask agent
Adriatic Apartments, 20 Western Gateway, London, E16
Add an important place to see how long it'd take to get there from our property listings.
__mins driving to your place
Get an instant, personalised result:
- Show sellers you’re serious
- Secure viewings faster with agents
- No impact on your credit score
Your mortgage
Notes
Staying secure when looking for property
Ensure you're up to date with our latest advice on how to avoid fraud or scams when looking for property online.
Visit our security centre to find out moreDisclaimer - Property reference 3f34f90d-a65b-43fc-a045-4eb3065b9f9d. The information displayed about this property comprises a property advertisement. Rightmove.co.uk makes no warranty as to the accuracy or completeness of the advertisement or any linked or associated information, and Rightmove has no control over the content. This property advertisement does not constitute property particulars. The information is provided and maintained by Livco Homes, London. Please contact the selling agent or developer directly to obtain any information which may be available under the terms of The Energy Performance of Buildings (Certificates and Inspections) (England and Wales) Regulations 2007 or the Home Report if in relation to a residential property in Scotland.
*This is the average speed from the provider with the fastest broadband package available at this postcode. The average speed displayed is based on the download speeds of at least 50% of customers at peak time (8pm to 10pm). Fibre/cable services at the postcode are subject to availability and may differ between properties within a postcode. Speeds can be affected by a range of technical and environmental factors. The speed at the property may be lower than that listed above. You can check the estimated speed and confirm availability to a property prior to purchasing on the broadband provider's website. Providers may increase charges. The information is provided and maintained by Decision Technologies Limited. **This is indicative only and based on a 2-person household with multiple devices and simultaneous usage. Broadband performance is affected by multiple factors including number of occupants and devices, simultaneous usage, router range etc. For more information speak to your broadband provider.
Map data ©OpenStreetMap contributors.








