Woodstock Road, Oxford, Oxfordshire, OX2

- PROPERTY TYPE
Semi-Detached
- BEDROOMS
4
- BATHROOMS
2
- SIZE
Ask agent
- TENUREDescribes how you own a property. There are different types of tenure - freehold, leasehold, and commonhold.Read more about tenure in our glossary page.
Freehold
Description
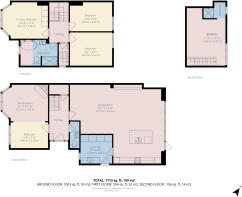
The hub of the property is the large family kitchen/diner with open-plan sitting room, offering an abundance of light via the stunning triple glazed roof lantern, with plenty of storage in the separate pantry and utility room. The kitchen is fitted out with high-end Bosch and Siemens appliances which are integrated. There is also a generous bay fronted reception room with wood burner. On the first floor, there are three double bedrooms and a family bathroom, with a fourth double bedroom and ensuite shower room on the second floor.
Outside, the property benefits from a mature 140ft rear garden which is predominantly laid to lawn, with two terraced areas perfect for family parties. The property is also sold with two substantial summer houses.
Directions
From John D Wood & Co Oxford Office proceed North along the Banbury Road and take the first left onto South Parade, at the T-junction turn Right on Woodstock Road where number 350 is found hundred feet along on the right-hand side clearly indicated by the for sale board.
Location
The property is situated in the popular North Oxford area of this historic University city. The local centre of Summertown is within a mile providing a fantastic selection of every day shops including a Marks and Spencer Food.
Woodstock Road is an incredibly desirable location, with great access to the wide range of excellent schooling that Oxford has to offer, including The Dragon, Summerfields, St Edwards and Oxford High School, to name but a few. The area also benefits from good access to nearby Port Meadow, an area of unspoilt grazing land which runs parallel to the River Thames. There are many attractive walks and a number of restaurants and gastro pubs are dotted along the pathways.
Woodstock Road provides convenient access by rail to London from either the Oxford Mainline station to Paddington or the new Oxford Parkway station to Marylebone. In addition, both the M40 and A34 are easily accessible.
Brochures
Particulars- COUNCIL TAXA payment made to your local authority in order to pay for local services like schools, libraries, and refuse collection. The amount you pay depends on the value of the property.Read more about council Tax in our glossary page.
- Band: G
- PARKINGDetails of how and where vehicles can be parked, and any associated costs.Read more about parking in our glossary page.
- Ask agent
- GARDENA property has access to an outdoor space, which could be private or shared.
- Yes
- ACCESSIBILITYHow a property has been adapted to meet the needs of vulnerable or disabled individuals.Read more about accessibility in our glossary page.
- Ask agent
Woodstock Road, Oxford, Oxfordshire, OX2
Add an important place to see how long it'd take to get there from our property listings.
__mins driving to your place
Get an instant, personalised result:
- Show sellers you’re serious
- Secure viewings faster with agents
- No impact on your credit score



Your mortgage
Notes
Staying secure when looking for property
Ensure you're up to date with our latest advice on how to avoid fraud or scams when looking for property online.
Visit our security centre to find out moreDisclaimer - Property reference OXF240272. The information displayed about this property comprises a property advertisement. Rightmove.co.uk makes no warranty as to the accuracy or completeness of the advertisement or any linked or associated information, and Rightmove has no control over the content. This property advertisement does not constitute property particulars. The information is provided and maintained by John D Wood & Co. Sales, Oxford. Please contact the selling agent or developer directly to obtain any information which may be available under the terms of The Energy Performance of Buildings (Certificates and Inspections) (England and Wales) Regulations 2007 or the Home Report if in relation to a residential property in Scotland.
*This is the average speed from the provider with the fastest broadband package available at this postcode. The average speed displayed is based on the download speeds of at least 50% of customers at peak time (8pm to 10pm). Fibre/cable services at the postcode are subject to availability and may differ between properties within a postcode. Speeds can be affected by a range of technical and environmental factors. The speed at the property may be lower than that listed above. You can check the estimated speed and confirm availability to a property prior to purchasing on the broadband provider's website. Providers may increase charges. The information is provided and maintained by Decision Technologies Limited. **This is indicative only and based on a 2-person household with multiple devices and simultaneous usage. Broadband performance is affected by multiple factors including number of occupants and devices, simultaneous usage, router range etc. For more information speak to your broadband provider.
Map data ©OpenStreetMap contributors.




