Upper Floors, 24-28 Piccadilly, Stoke-On-Trent, Staffordshire ST1 1EG
- SIZE
Ask agent
- SECTOR
Residential development for sale
Key features
- Auction: 29.10.2025 09:00
- City centre residential development opportunity
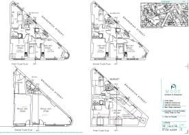
- Planning granted for five self-contained flats over first, second and third floors
- 4 x 1 Bedroom and 1 x Two Bedroom
- EPC Rating: E D
Description
This property remains available and open to offers following the auction on 29 October 2025.
Please contact the auctioneers on for further details.
A prominent and well known building of ornate design offered with vacant possession upon completion. The ground floor has been sold off separately and we are offering the upper floors which have detailed planning permission to create 4 x one-bedroom apartments and 1 x two-bedroom apartment with access off Brunswick Street.
Planning was granted by Stoke on Trent City Council on the 20th March 2023
under Application number 67757/FUL.
The site enjoys a prominent position on Piccadilly, a pedestrianised section of Hanley city centre within the Cultural Quarter where a plethora of independent bars, restaurants and
shops are located. The building is a well known landmark in the city with its clocktower, which is incorporated into the scheme. The buyer will obtain the freehold of the building whilst the seller will retain the long leasehold interest in the two ground
floor retail units.
LOCATION
The building is located towards the top of Piccadilly and just a 2 minute walk from The Potteries Shopping Centre. Hanley can be accessed from the A500 via the A52 and A53 and is around 6 miles from junction 15 of the M6
Draft Sales Details These sales details are awaiting vendor approval.
Tenure: See Legal Pack
EPC Rating: E D
Terms:
Auction Details:
The sale of this property will take place on the stated date by way of Auction Event and is being sold under an Unconditional sale type.
Binding contracts of sale will be exchanged at the point of sale.
All sales are subject to SDL Property Auctions Buyers Terms. Properties located in Scotland will be subject to applicable Scottish law.
Auction Deposit and Fees:
The following deposits and non- refundable auctioneers fees apply:
• 5% deposit (subject to a minimum of £5,000)
• Buyers Fee of 4.8% of the purchase price (subject to a minimum of £6,000 inc. VAT).
The Buyers Fee does not contribute to the purchase price, however it will be taken into account when calculating the Stamp Duty Land Tax for the property (known as Land and Buildings Transaction Tax for properties located in Scotland), because it forms part of the chargeable consideration for the property.
There may be additional fees listed in the Special Conditions of Sale, which will be available to view within the Legal Pack. You must read the Legal Pack carefully before bidding.
Additional Information:
For full details about all auction methods and sale types please refer to the Auction Conduct Guide which can be viewed on the SDL Property Auctions home page.
This guide includes details on the auction registration process, your payment obligations and how to view the Legal Pack (and any applicable Home Report for residential Scottish properties).
Guide Price & Reserve Price:
Each property sold is subject to a Reserve Price. The Reserve Price will be within + or - 10% of the Guide Price. The Guide Price is issued solely as a guide so that a buyer can consider whether or not to pursue their interest. A full definition can be found within the Buyers Terms.
Upper Floors, 24-28 Piccadilly, Stoke-On-Trent, Staffordshire ST1 1EG
NEAREST STATIONS
Distances are straight line measurements from the centre of the postcode- Stoke-on-Trent Station1.2 miles
- Longport Station2.0 miles
- Longton Station3.0 miles
Notes
Disclaimer - Property reference 202508081050sq_a5g3. The information displayed about this property comprises a property advertisement. Rightmove.co.uk makes no warranty as to the accuracy or completeness of the advertisement or any linked or associated information, and Rightmove has no control over the content. This property advertisement does not constitute property particulars. The information is provided and maintained by SDL Property Auctions - Commercial, Nationwide. Please contact the selling agent or developer directly to obtain any information which may be available under the terms of The Energy Performance of Buildings (Certificates and Inspections) (England and Wales) Regulations 2007 or the Home Report if in relation to a residential property in Scotland.
Auction Fees: The purchase of this property may include associated fees not listed here, as it is to be sold via auction. To find out more about the fees associated with this property please call SDL Property Auctions - Commercial, Nationwide on 08000 465454.
*Guide Price: An indication of a seller's minimum expectation at auction and given as a Guide Price or a range of Guide Prices. This is not necessarily the figure a property will sell for and is subject to change prior to the auction.
Reserve Price: Each auction property will be subject to a Reserve Price below which the property cannot be sold at auction. Normally the Reserve Price will be set within the range of Guide Prices or no more than 10% above a single Guide Price.
Map data ©OpenStreetMap contributors.





