
Grenville Road, Balby, Doncaster

- PROPERTY TYPE
Semi-Detached
- BEDROOMS
3
- BATHROOMS
1
- SIZE
Ask agent
- TENUREDescribes how you own a property. There are different types of tenure - freehold, leasehold, and commonhold.Read more about tenure in our glossary page.
Freehold
Description
3 BEDROOM SEMI DETACHED HOUSE / NOT OVERLOOKED FROM THE REAR / REAR GARDEN ROOM TYPE EXTENSION / OFF ROAD PARKING / GCH/ DG/ OWNED SOLARS/ 3 GOOD SIZED BEDROOMS / POPULAR ROADWAY / NO CHAIN/ VIEWING ESSENTIAL //
Enjoying a favourable position on this popular roadway, not overlooked from the rear a good sized 3 bedroom semi detached house with a garden room style extension to the rear. It has a gas central heating system, double glazing and owned solar panels. The accommodation briefly comprises: Entrance porch., into a larger entrance hall, open plan lounge and dining room, garden room, fitted breakfast kitchen, first floor landing, 3 bedrooms, bathroom and a separate wc. outside are good sized gardens, the rear feels very private as not overlooked, side driveway, and car port parking. Good access to Doncaster City centre the A1 and motorway networks. CHAIN FREE. EARLY VIEWING ESSENTIAL.
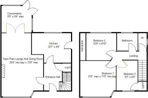
Accommodation - A pvc double glazed door leads into the entrance porch, this has pvc double glazing, a central heating radiator and a timber casement door which leads into the property's hall.
Entrance Hall - 2.67m x 2.57m (8'9" x 8'5") - This has a staircase to the first floor accommodation with a built in understairs storage cupboard, a central heating radiator, ceiling light and door to:
Large Open Plan Lounge & Dining Room - 6.15m max x 3.96m max (20'2" max x 13'0" max) - This has a timber casement double glazed bay window to the front, a feature stone fireplace with a gas fire inset, 2 central heating radiators, coving and 2 ceiling lights. A door from here leads into a garden room.
Garden Room - 2.97m x 2.84m (9'9" x 9'4") - This is pvc double glazed, it has modern laminate flooring, a wall mounted heater, 2 wall lights and pvc double glazed double opening doors which lead onto the property's rear garden.
Kitchen - 3.66m max x 2.69m max (12'0" max x 8'10" max ) - This is fitted with a range of high and low level units to include a 4 ring electric hob, integrated double oven, deep recess suitable for a tall fridge freezer, plumbing for an automatic washing machine, single drainer 1½ bowl stainless steel sink unit and a work surface with coordinating breakfast bar. There is a timber casement door, a double panelled central heating radiator, tiling to 4 walls and a ceiling light.
First Floor Landing - Pvc double glazed window to the side, an access point into the loft space, central ceiling light and doors to bedrooms and bathroom.
Bedroom 1 - 3.96m x 3.35m (13'0" x 11'0") - A large double room, it has a timber casement double glazed bay window to the front, fitted wardrobes concealing hanging rail and storage with ceiling to floor sliding doors, a central heating radiator and a ceiling light.
Bedroom 2 - 3.86m x 2.69m (12'8" x 8'10") - This is a good size second double room, it has a timber casement double glazed window to the rear, central heating radiator, coving, fitted wardrobes and matching bedroom furniture.
Bedroom 3 - 2.82m x 1.98m (9'3" x 6'6") - A comfortable sized single bedroom, it has timber casement double glazed window to the front, central heating radiator, coving, a deep built-in wardrobe style cupboard and a central heating radiator.
House Bathroom - This is fitted with a white suite comprising of panelled bath, wash basin set on a vanity top, single panel central heating radiator, laminate flooring, timber casement double glazed window.
Separate Wc - This has a low flush wc, pvc double glazed window, laminate floor and a central ceiling light.
Outside - To the front of the property there are attractive gardens, the front is well laid out and well stocked with a good variety of maturing shrubs and plants providing a good variety of colour during the Summer months. The side drive provides car standing and leads to a car port which continues along the side of the property and in turn leads to the rear garden.
Rear Garden - This has fencing to the perimeters, again well stocked with a good variety of maturing shrubs and plants. There is a large paved patio and sitting area to the centre of the garden, it should be noted the rear enjoys a more outlook over fields, and therefore feels very private.
Agents Notes: - TENURE - FREEHOLD.
SERVICES - All mains services are connected.
DOUBLE GLAZING - Timber casement & PVC double glazed windows. Age of units various.
HEATING - Gas radiator central heating. Age of boiler TBC.
SOLAR PANELS - Owned outright with ownership and feed in tariff passing to the buyer.
COUNCIL TAX - Band B
BROADBAND - Ultrafast broadband is available with download speeds of up to 1800 mbps and upload speeds of up to 1000 mbps.
MOBILE COVERAGE - Coverage is available with EE, Three, 02 and Vodafone.
VIEWING - By prior telephone appointment with horton knights estate agents.
MEASUREMENTS - Please note all measurements are approximate and for guidance purposes only, with a six inch tolerance. Therefore please do NOT rely upon them for carpet measurements, furniture and the like. Similarly, the floor plan is designed as a visual reference and is NOT a scale drawing.
PROPERTY PARTICULARS - We endeavour to make our property particulars accurate and reliable, however if there is a point that is especially important to you, please contact ourselves prior to exchange of contracts, so that we may further clarify that point. We DO NOT give any warranty to the suitability of any part, including fixtures and fittings of this property, prospective buyers are kindly asked to take specific advice from their professional advisors.
OPENING HOURS - Monday - Friday 9:00 - 5:30 Saturday 9:00 - 3:00 Sunday
INDEPENDENT MORTGAGE ADVICE - With so many mortgage options to choose from, how do you know your getting the best deal? Quite simply...YOU DON'T. Talk to an expert. We offer uncomplicated impartial advice. Call us today: .
FREE VALUATIONS - If you need to sell a house then please take advantage of our FREE VALUATION service, contact our Doncaster Office for a prompt and efficient service.
Brochures
Grenville Road, Balby, DoncasterBrochure- COUNCIL TAXA payment made to your local authority in order to pay for local services like schools, libraries, and refuse collection. The amount you pay depends on the value of the property.Read more about council Tax in our glossary page.
- Band: B
- PARKINGDetails of how and where vehicles can be parked, and any associated costs.Read more about parking in our glossary page.
- Driveway
- GARDENA property has access to an outdoor space, which could be private or shared.
- Yes
- ACCESSIBILITYHow a property has been adapted to meet the needs of vulnerable or disabled individuals.Read more about accessibility in our glossary page.
- Ask agent
Energy performance certificate - ask agent
Grenville Road, Balby, Doncaster
Add an important place to see how long it'd take to get there from our property listings.
__mins driving to your place
Get an instant, personalised result:
- Show sellers you’re serious
- Secure viewings faster with agents
- No impact on your credit score



Your mortgage
Notes
Staying secure when looking for property
Ensure you're up to date with our latest advice on how to avoid fraud or scams when looking for property online.
Visit our security centre to find out moreDisclaimer - Property reference 34220545. The information displayed about this property comprises a property advertisement. Rightmove.co.uk makes no warranty as to the accuracy or completeness of the advertisement or any linked or associated information, and Rightmove has no control over the content. This property advertisement does not constitute property particulars. The information is provided and maintained by Horton Knights, Doncaster. Please contact the selling agent or developer directly to obtain any information which may be available under the terms of The Energy Performance of Buildings (Certificates and Inspections) (England and Wales) Regulations 2007 or the Home Report if in relation to a residential property in Scotland.
*This is the average speed from the provider with the fastest broadband package available at this postcode. The average speed displayed is based on the download speeds of at least 50% of customers at peak time (8pm to 10pm). Fibre/cable services at the postcode are subject to availability and may differ between properties within a postcode. Speeds can be affected by a range of technical and environmental factors. The speed at the property may be lower than that listed above. You can check the estimated speed and confirm availability to a property prior to purchasing on the broadband provider's website. Providers may increase charges. The information is provided and maintained by Decision Technologies Limited. **This is indicative only and based on a 2-person household with multiple devices and simultaneous usage. Broadband performance is affected by multiple factors including number of occupants and devices, simultaneous usage, router range etc. For more information speak to your broadband provider.
Map data ©OpenStreetMap contributors.





