Lawrence Avenue, Heath Town, Wolverhampton, West Midlands, WV10

- PROPERTY TYPE
Terraced
- BEDROOMS
3
- BATHROOMS
1
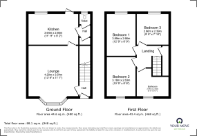
- SIZE
Ask agent
- TENUREDescribes how you own a property. There are different types of tenure - freehold, leasehold, and commonhold.Read more about tenure in our glossary page.
Freehold
Key features
- Well-maintained semi-detached house
- Bright airy reception room
- Large family-friendly kitchen
- Convenient downstairs WC
- Three spacious double bedrooms
- Modern family bathroom
- Substantial private garden
- Flexible living and work spaces
- Ready to move in
- Ideal for families or professionals
Description
Presenting for sale, this well-maintained semi-detached house, offering an excellent opportunity for families or professionals seeking a property in good condition. The home features a bright and airy reception room that provides a welcoming space for relaxing or entertaining guests.
The thoughtfully designed large kitchen is perfectly suited for family gatherings and keen cooks alike, allowing ample room for dining and meal preparation. A convenient downstairs WC adds further practicality to the ground floor layout.
Upstairs, you will find three generously proportioned double bedrooms, each benefitting from ample space and flexibility to suit your lifestyle needs—whether as comfortable sleeping accommodations, home office, or hobby areas. The family bathroom is also situated on the first floor, serving all bedrooms with ease.
One of the standout features of this property is its substantial garden, offering plenty of space for outdoor entertaining, children’s activities, or simply enjoying the tranquility of the outdoors. Whether hosting summer barbecues or creating a space for gardening, this garden is a valuable extension of the home’s living area.
The property is presented in good condition throughout, with a layout designed to maximise both comfort and functionality. With its spacious accommodation, practical features, and a large garden, this semi-detached house is a fantastic proposition for those looking for a ready-to-move-in family home.
Early viewing is highly recommended to appreciate all this superb property has to offer.
IMPORTANT NOTE TO POTENTIAL PURCHASERS & TENANTS:
We endeavour to make our particulars accurate and reliable, however, they do not constitute or form part of an offer or any contract and none is to be relied upon as statements of representation or fact. The services, systems and appliances listed in this specification have not been tested by us and no guarantee as to their operating ability or efficiency is given. All photographs and measurements have been taken as a guide only and are not precise. Floor plans where included are not to scale and accuracy is not guaranteed. If you require clarification or further information on any points, please contact us, especially if you are traveling some distance to view. POTENTIAL PURCHASERS: Fixtures and fittings other than those mentioned are to be agreed with the seller. POTENTIAL TENANTS: All properties are available for a minimum length of time, with the exception of short term accommodation. Please contact the branch for details. A security deposit of at least one month’s rent is required. Rent is to be paid one month in advance. It is the tenant’s responsibility to insure any personal possessions. Payment of all utilities including water rates or metered supply and Council Tax is the responsibility of the tenant in most cases.
WED250481/2
Brochures
Web Details- COUNCIL TAXA payment made to your local authority in order to pay for local services like schools, libraries, and refuse collection. The amount you pay depends on the value of the property.Read more about council Tax in our glossary page.
- Band: A
- PARKINGDetails of how and where vehicles can be parked, and any associated costs.Read more about parking in our glossary page.
- Ask agent
- GARDENA property has access to an outdoor space, which could be private or shared.
- Yes
- ACCESSIBILITYHow a property has been adapted to meet the needs of vulnerable or disabled individuals.Read more about accessibility in our glossary page.
- Ask agent
Lawrence Avenue, Heath Town, Wolverhampton, West Midlands, WV10
Add an important place to see how long it'd take to get there from our property listings.
__mins driving to your place
Get an instant, personalised result:
- Show sellers you’re serious
- Secure viewings faster with agents
- No impact on your credit score



Your mortgage
Notes
Staying secure when looking for property
Ensure you're up to date with our latest advice on how to avoid fraud or scams when looking for property online.
Visit our security centre to find out moreDisclaimer - Property reference WED250481. The information displayed about this property comprises a property advertisement. Rightmove.co.uk makes no warranty as to the accuracy or completeness of the advertisement or any linked or associated information, and Rightmove has no control over the content. This property advertisement does not constitute property particulars. The information is provided and maintained by Your Move, Wednesfield. Please contact the selling agent or developer directly to obtain any information which may be available under the terms of The Energy Performance of Buildings (Certificates and Inspections) (England and Wales) Regulations 2007 or the Home Report if in relation to a residential property in Scotland.
*This is the average speed from the provider with the fastest broadband package available at this postcode. The average speed displayed is based on the download speeds of at least 50% of customers at peak time (8pm to 10pm). Fibre/cable services at the postcode are subject to availability and may differ between properties within a postcode. Speeds can be affected by a range of technical and environmental factors. The speed at the property may be lower than that listed above. You can check the estimated speed and confirm availability to a property prior to purchasing on the broadband provider's website. Providers may increase charges. The information is provided and maintained by Decision Technologies Limited. **This is indicative only and based on a 2-person household with multiple devices and simultaneous usage. Broadband performance is affected by multiple factors including number of occupants and devices, simultaneous usage, router range etc. For more information speak to your broadband provider.
Map data ©OpenStreetMap contributors.




