
Woodmansey Mile, Beverley, HU17

- PROPERTY TYPE
Detached
- BEDROOMS
4
- SIZE
Ask developer
- TENUREDescribes how you own a property. There are different types of tenure - freehold, leasehold, and commonhold.Read more about tenure in our glossary page.
Ask developer
Key features
- Available with Part Exchange
- Single detached garage
- Open-plan kitchen & family area
- French door to south facing garden
- Utility room
- En suite to bedroom 1
- 4 double bedrooms
Description
The popular Bradgate's modern OPEN-PLAN LAYOUT is perfect for growing families.
Discover a light and spacious lounge with a bay window, a great space for all the family to relax.
Enjoy family meals in the open-plan kitchen with breakfast bar, dining and family areas.
A walk-in bay makes this room light and airy, whilst FRENCH DOORS OPEN TO THE GARDEN. There's also a separate study and a practical utility.
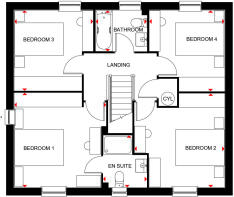
Upstairs, find FOUR DOUBLE BEDROOMS - including bedroom 1 with en suite shower room - and a family bathroom.
Room Dimensions
- Bathroom - 2124mm x 1700mm (6'11" x 5'6")
- Bedroom 1 - 3910mm x 3791mm (12'9" x 12'5")
- Bedroom 2 - 3720mm x 3885mm (12'2" x 12'8")
- Bedroom 3 - 3329mm x 3263mm (10'11" x 10'8")
- Bedroom 4 - 3353mm x 3112mm (11'0" x 10'2")
- Ensuite 1 - 2162mm x 1799mm (7'1" x 5'10")
- Kitchen / Family / Dining - 8677mm x 4807mm (28'5" x 15'9")
- Lounge - 4999mm x 3658mm (16'4" x 12'0")
- Study Downstairs - 2762mm x 2295mm (9'0" x 7'6")
- Utility - 1687mm x 1724mm (5'6" x 5'7")
- WC - 1614mm x 986mm (5'3" x 3'2")
- COUNCIL TAXA payment made to your local authority in order to pay for local services like schools, libraries, and refuse collection. The amount you pay depends on the value of the property.Read more about council Tax in our glossary page.
- Ask developer
- PARKINGDetails of how and where vehicles can be parked, and any associated costs.Read more about parking in our glossary page.
- Yes
- GARDENA property has access to an outdoor space, which could be private or shared.
- Yes
- ACCESSIBILITYHow a property has been adapted to meet the needs of vulnerable or disabled individuals.Read more about accessibility in our glossary page.
- Ask developer
Energy performance certificate - ask developer
- Luxury 3 and 4 bedroom homes
- Close to excellent schools
- High-specification interiors
- Enquire today!
Woodmansey Mile, Beverley, HU17
Add an important place to see how long it'd take to get there from our property listings.
__mins driving to your place
Get an instant, personalised result:
- Show sellers you’re serious
- Secure viewings faster with agents
- No impact on your credit score
About David Wilson Homes
Thoughtfully designed, beautifully built
Elegant, spacious and energy-efficient David Wilson homes are designed to help you enjoy life. So if you’re thinking of moving, discover what makes David Wilson stand out and choose a home you’ll be proud to call your own.
Quality at our heart
From the moment you enter a David Wilson home you can sense the quality and craftsmanship. Just one reason why we’ve been awarded 5 Stars by the Home Builders Federation every year since 2010, and over 95% of our homeowners would recommend us to their friends*.
Thoughtful design
From generous rooms filled with natural light to seamless spaces that let life flow naturally, David Wilson homes combine attractive design details to give you a real feeling of space and elegance.
Efficient, sustainable living
According to HBF data a brand-new home could be cheaper to run than an older home, meaning you could reduce your running costs†
Desirable communities
Our homes are built in attractive locations and on developments that blend in with the character of the local area. Enjoy a community with a distinct identity, elegant pedestrian-friendly streets and mature landscaping.
*We are the only major national housebuilder to be awarded this key industry award every year since 2010. “We” refers to the Barratt Developments PLC group brands including Barratt London, Barratt Homes and David Wilson Homes. Based on HBF star rating scheme from 2010 to 2025 derived from the NHBC national new homes survey at eight weeks, over 95% of Barratt Developments PLC group customer would recommend our brands to a friend.
†Based on Government and Ofgem data in the HBF “Watt a Save” reports which provide annual average usage figures for existing homes vs new-build homes in the UK.
Your mortgage
Notes
Staying secure when looking for property
Ensure you're up to date with our latest advice on how to avoid fraud or scams when looking for property online.
Visit our security centre to find out moreDisclaimer - Property reference 4_H8165302. The information displayed about this property comprises a property advertisement. Rightmove.co.uk makes no warranty as to the accuracy or completeness of the advertisement or any linked or associated information, and Rightmove has no control over the content. This property advertisement does not constitute property particulars. The information is provided and maintained by David Wilson Homes. Please contact the selling agent or developer directly to obtain any information which may be available under the terms of The Energy Performance of Buildings (Certificates and Inspections) (England and Wales) Regulations 2007 or the Home Report if in relation to a residential property in Scotland.
*This is the average speed from the provider with the fastest broadband package available at this postcode. The average speed displayed is based on the download speeds of at least 50% of customers at peak time (8pm to 10pm). Fibre/cable services at the postcode are subject to availability and may differ between properties within a postcode. Speeds can be affected by a range of technical and environmental factors. The speed at the property may be lower than that listed above. You can check the estimated speed and confirm availability to a property prior to purchasing on the broadband provider's website. Providers may increase charges. The information is provided and maintained by Decision Technologies Limited. **This is indicative only and based on a 2-person household with multiple devices and simultaneous usage. Broadband performance is affected by multiple factors including number of occupants and devices, simultaneous usage, router range etc. For more information speak to your broadband provider.
Map data ©OpenStreetMap contributors.






