Leys Hill, Walford, Ross-on-Wye, Herefordshire, HR9

- PROPERTY TYPE
Detached
- BEDROOMS
4
- BATHROOMS
2
- SIZE
2,702 sq ft
251 sq m
- TENUREDescribes how you own a property. There are different types of tenure - freehold, leasehold, and commonhold.Read more about tenure in our glossary page.
Freehold
Key features
- Four Bedrooms, Three Reception Room, Two Bathrooms.
- Detached One Bedroom Annexe providing supplementary Income.
- A Range of Outbuildings including a Studio & Garage/Workshop.
- 0.5 Acre Garden & Grounds
- Beautiful Views over the Surrounding Wye Valley
- EPC Ratings: Main House D & Annexe E
Description
Charming Hillside Cottage with Breathtaking Views Over the Wye Valley
Positioned on the highly sought after Leys Hill in Herefordshire, this extended cottage offers a desirable blend of charm, modern comfort, and some of the most spectacular views in the area. Overlooking the famous Wye Valley and across to the wild beauty of Coppet Hill, this is a home that captures the heart at first glance.
Tucked into the historic woodland landscape of Leys Hill with the renowned Wye Valley Walk literally on your doorstep, this peaceful cottage retreat invites you to immerse yourself in nature. Morning walks through the adjacent forest are a daily joy, revealing the everchanging colours of the seasons and the gentle soundtrack of birdsong for company along the way.
The outdoor space has been cleverly landscaped to create a meandering journey through lush, flourishing gardens, with hidden spots to pause, reflect, and soak in the tranquillity. The elevated position ensures visitors take a short, awe inspired breath upon arrival as they drink in the panoramic views that stretch across the valley below.
The main residence offers a characterful interior that makes the most of its incredible setting. The kitchen enjoys an amazing woodland outlook with extensive work space and storage cupboards in abundance. The flow continues into a cozy dining area, perfect for family get togethers or entertaining friends alike, a full width archway brings us into the light filled summer room, an irresistible spot to relax and unwind, curl up with a book or a magazine whilst sipping on a relaxing glass of wine, made all the more inviting by the stunning 270 degree outlook and a charming wood-burning stove for the winter months. This space shines throughout the seasons, flooded with sunlight in summer and wrapped in everchanging woodland serenity during winter.
Continuing through Rose Cottage brings us to the sizable sitting room which continues the theme of natural connection, offering far-reaching views over the Wye valley via the full width glazed patio doors which leads to the elevated al fresco dining area to the fore. A welcoming atmosphere for family gatherings or quiet evenings in.
Upstairs, the bedrooms are beautifully appointed, with views that make waking up an unforgettable experience. The master bedroom is a standout, with full-width patio doors opening onto a glazed balcony, perfectly framing the morning light and rolling countryside. Wildlife sightings of deer, badgers, and foxes are common companions to your morning coffee. A stylish family bathroom and a separate boutique-style shower room serve the upper floor, combining contemporary finishes with thoughtful design.
Outside, an expansive stone patio accessed from both the sitting room and summer room creates the perfect al fresco dining area. Bathed in sunlight from mid-morning to sunset, it’s ideal for morning coffee, evening wine, or simply watching the light shift over the Wye valley below. The professionally landscaped gardens are full of established shrubs and ground cover plants giving low maintenance and all year round colour. There are also thoughtfully designed safe, flat play areas for children.
Adding to the property’s appeal is a detached one-bedroom annexe with its own private garden. The carefully considered layout within is ideal for multigenerational living, guest accommodation, a teenager’s retreat, or as an Airbnb/long term rental for additional income.
For those seeking space to create or unwind, a contemporary home office, artist’s studio, or fitness room offers a versatile and inspiring setting, separate from the main house.
Practicality is not overlooked with a generous size garage/workshop, a dream for motor enthusiasts or hobbyists with ample off-road parking.
This is a home of rare tranquillity and location, perfectly positioned to enjoy one of Herefordshire’s most beautiful landscapes. Whether entertaining guests, finding creative inspiration, or simply seeking peace and quiet, this remarkable hillside haven offers it all.
Verified Material Information
Council tax band: F
Tenure: Freehold
Electricity supply: Mains electricity
Water supply: Mains water supply
Sewerage: Septic tank
Heating: Oil Central heating
Heating features: Double glazing, Underfloor heating, and Wood burners
Broadband: FTTC (Fibre to the Cabinet)
Mobile coverage: O2, Vodafone, Three, EE - All Good
Parking: Garage, Driveway, and Private.
What3words: ///lighten.traffic.tomato
Directions:
From the centre of Ross on Wye take the B4234 to Walford and continue on through the village of Walford past the Mill Race on the right hand side and continue on past the Inn on the Wye on the left hand side taking the next turning left signposted Leys Hill and proceed up the hill for approximately 500 yards, you will see a finger post on the left to Rose Cottage. Continue up the tarmacadam lane to the very top where the property can be found.
The property is entered via:
Side Canopied Front Entrance Porch:
Glazed windows to side aspect with woodland outlook. Quarry tiled floor. Solid oak door leads into:
Kitchen/Breakfast Room:
4.24m x 3.76m (13' 11" x 12' 4")
Beautifully fitted with a range of Shaker style base and wall mounted units with decorative handles. Wall mounted glazed display cabinets. Integrated eye level double oven. Electric hob with extractor over. Attractive worktops. Ceramic one and a half bowl sink. Double glazed windows to front and side enjoying beautiful views over surrounding area. Space for wine fridge. Breakfast bar. Recessed ceiling spotlights. Karndean wood effect flooring. Solid wood door to:
Fabulous Dining Space:
5.08m x 3.58m (16' 8" x 11' 9")
Attractive flooring. Coving to ceiling. Radiator. Fitted wall lights. Beautiful archway through to:
Garden Room:
6.2m x 2.36m (20' 4" x 7' 9")
Lovely outlook over the surrounding area. Woodburning stove on a raised hearth with tiled surround. Access to small loft space. Continuation of the attractive flooring.
Sitting Room:
6.86m x 4.5m (22' 6" x 14' 9")
Patio doors to front aspect with beautiful views to Goodrich Church and towards Coppett Hill. Recessed wood burning stove with decorative mantle over. Radiator.
Inner Lobby:
With steps leading up. Staircase to first floor landing with understairs storage.
Utility Room:
Plumbing for washing machine. Space for tumble dryer. Stainless steel sink.
Downstairs WC:
WC with concealed cistern. Ladder style radiator. Cupboard. Wash hand basin with vanity unit and fitted mirror with light.
First Floor Landing:
Generous sized area with double glazed window to rear aspect with lovely outlook over the gardens. Door to:
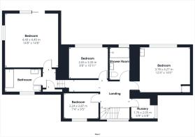
Bedroom 2:
4.3m x 3.84m (14' 1" x 12' 7")
Large double glazed window to front aspect with those beautiful views. Ornate wash hand basin with mixer tap and vanity unit beneath. Access to loft space. Airing cupboard. To the rear is door to:
Study/Nursery
1.96m x 1.75m (6' 5" x 5' 9")
An ideal cot room or could make an en-suite.
Bedroom 3:
3.3m x 2.64m (10' 10" x 8' 8")
A lovely outlook again over the surrounding countryside. Access to loft space. Wood flooring.
Bedroom 4:
2.92m x 2.2m (9' 7" x 7' 3")
Window to rear overlooking the gardens.
From the landing steps lead up to:
Lobby Area:
Cupboard. Door to:
Master Bedroom:
4.52m x 4.5m (14' 10" x 14' 9")
Fitted mirror fronted wardrobes. Double glazed window to side aspect. Patio door leading out to:
Balcony:
A stainless steel and glazed balcony with a beautiful view.
Bathroom:
Comprising a P shaped bath, mixer tap shower. WC Large wash hand basin with vanity unit beneath.
Shower Room:
Beautifully fitted and fully tiled. Walk in shower cubicle with dual heads. Underfloor tiled heating. Wash hand basin. WC with concealed cistern. Mirror fronted medicine cabinet. Chrome towel rail.
Annexe:
Double doors lead into:
Entrance Porch:
Quarry tiled flooring. Original door with glazed insets.
Hallway:
Original parquet flooring. Radiator. Cupboard. Stairs to first floor with understairs storage cupboards. Door to:
Lounge/Dining Room:
7.57m x 3.9m (24' 10" x 12' 10")
Crittall window to front aspect. Radiator. Recessed fireplace. Crittall double doors out to rear garden with matching glazed panels. Original parquet flooring.
Kitchen:
2.4m x 2.36m (7' 10" x 7' 9")
Oak block worktop with matching upstand. Bespoke wooden units with Indesit oven. Zanussi gas hob. Wall mounted glazed display cabinets. Door to:
Utility Room:
2.72m x 1.85m (8' 11" x 6' 1")
Step down. Quarry tiled flooring. Bespoke fitted units. Plumbing for washing machine. Crittall window to side. Storage cupboard. Glazed door to rear garden.
From the hallway, half turn stairs to:
First Floor:
Crittall window to side. Access to loft space. Space for desk ideal for a study area.
Bedroom 1:
3.84m x 3.35m (12' 7" x 11' 0")
Crittall window to front aspect with lovely views. Radaitor.
Bedroom 2:
3.63m x 3.6m (11' 11" x 11' 10")
Crittall window to rear aspect. Radiator.
Bedroom 3:
2.7m x 1.93m (8' 10" x 6' 4")
Crittall window to front aspect. Radiator.
Bathroom:
A good size with window to rear aspect. Bespoke bathroom suite with wood panelled bath and concertina sliding screen, shower with dual heads. Crittall window to side aspect. Heritage style sink, WC. Airing cupboard housing Worcester combination boiler supplying domestic hot water and central heating. Radiator.
Outside:
A driveway with a good size parking area. Leading to:
Garage:
4.17m x 3.07m (13' 8" x 10' 1")
An ideal home office or workshop. The front gardens are mainly laid to lawn with circular path. The rear is accessed via utility room or side entrance with courtyard and on around to a private seating area. Storage shed. Steps up to a good sized level garden with lawn.
Rose Cottage Outside:
The property is situated at the end of a quiet no through lane with concrete and tarmac driveway leading up to a hardstanding which provides parking for several large vehicles.
Large Detached Garage Workshop:
6m x 5m (19' 8" x 16' 5")
Window to front aspect. Electric roll up door, power and lighting. Wood store attached to garage. Stone retained walls leading to:
Studio:
6m x 4m (19' 8" x 13' 1")
Power and lighting. Indian stone step leading in with double doors. Double glazed full length windows to front aspect and additional window. Wood effect flooring. Well insulated. A perfect home office with lovely outlook over towards Coppett Hill. To the side of the studio is a point for electric car. Garden store. A level path to substantial wood store. The gardens are laid to numerous terraces of lawns, well stocked borders. Steps leading through to raised terrace with additional wood store. All with stock proof post and rail fence. The top terrace has a pathway leading around to rear . A gated entrance with pathway leading up to a raised terrace. Sun terrace with steps up from parking area. Quarry tiled steps lead to boiler room housing Worcester boiler with Megaflow pressurised hot water cylinder and window to rear aspect and space for freezer, power and lighting. Two terraced area with mature trees and shrubs. Picket fence with gate leads to the front with further (truncated)
The Annexe
Acessed via solid wood oak door with glazed inset leading into:
Open Plan Lounge/Kitchen/Dining Room:
5.77m x 3.89m (18' 11" x 12' 9")
The kitchen area has a range of bespoke fitted base mounted units with one and a half bowl sink. Electric hob and hob above. Tiled splashbacks. Stainless steel extractor hood over. Double glazed windows to side and rear aspects. Wall mounted heater, tiled flooring. Lobby space with staircase down to: Lower Ground Floor and to:
Sitting Area:
Double glazed windows to front and side aspects. Raised hearth with wood burning stove and tiled surround, exposed beams, recessed ceiling spotlights, wood flooring. Wall mounted electric heater. TV point. Staircase leads down to:
Lower Ground Lobby:
uPVC door to patio with attractive views over surrounding area. Door to:
Bedroom:
3.73m x 2.46m (12' 3" x 8' 1")
Useful understairs storage cupboard. Wall mounted heater. uPVC double glazed window to rear aspect with attractive outlook.
Shower Room:
Enclosed shower cubicle with electric Mira Sport shower. Wall mounted electric towel rail. WC with concealed cistern. Wash hand basin with vanity unit, mirror with light. Obscure window to rear aspect. Door to:
Utility Area:
Plumbing for washing machine. Wall mounted electric Ariston water heater. Extractor fan. Tiled floor.
Brochures
Particulars- COUNCIL TAXA payment made to your local authority in order to pay for local services like schools, libraries, and refuse collection. The amount you pay depends on the value of the property.Read more about council Tax in our glossary page.
- Band: F
- PARKINGDetails of how and where vehicles can be parked, and any associated costs.Read more about parking in our glossary page.
- Yes
- GARDENA property has access to an outdoor space, which could be private or shared.
- Yes
- ACCESSIBILITYHow a property has been adapted to meet the needs of vulnerable or disabled individuals.Read more about accessibility in our glossary page.
- Ask agent
Leys Hill, Walford, Ross-on-Wye, Herefordshire, HR9
Add an important place to see how long it'd take to get there from our property listings.
__mins driving to your place
Get an instant, personalised result:
- Show sellers you’re serious
- Secure viewings faster with agents
- No impact on your credit score



Your mortgage
Notes
Staying secure when looking for property
Ensure you're up to date with our latest advice on how to avoid fraud or scams when looking for property online.
Visit our security centre to find out moreDisclaimer - Property reference WRR220175. The information displayed about this property comprises a property advertisement. Rightmove.co.uk makes no warranty as to the accuracy or completeness of the advertisement or any linked or associated information, and Rightmove has no control over the content. This property advertisement does not constitute property particulars. The information is provided and maintained by Richard Butler & Associates, Ross-On-Wye. Please contact the selling agent or developer directly to obtain any information which may be available under the terms of The Energy Performance of Buildings (Certificates and Inspections) (England and Wales) Regulations 2007 or the Home Report if in relation to a residential property in Scotland.
*This is the average speed from the provider with the fastest broadband package available at this postcode. The average speed displayed is based on the download speeds of at least 50% of customers at peak time (8pm to 10pm). Fibre/cable services at the postcode are subject to availability and may differ between properties within a postcode. Speeds can be affected by a range of technical and environmental factors. The speed at the property may be lower than that listed above. You can check the estimated speed and confirm availability to a property prior to purchasing on the broadband provider's website. Providers may increase charges. The information is provided and maintained by Decision Technologies Limited. **This is indicative only and based on a 2-person household with multiple devices and simultaneous usage. Broadband performance is affected by multiple factors including number of occupants and devices, simultaneous usage, router range etc. For more information speak to your broadband provider.
Map data ©OpenStreetMap contributors.





