
Building Plot - Jubilee Road, Street
- PROPERTY TYPE
Land
- SIZE
Ask agent
Key features
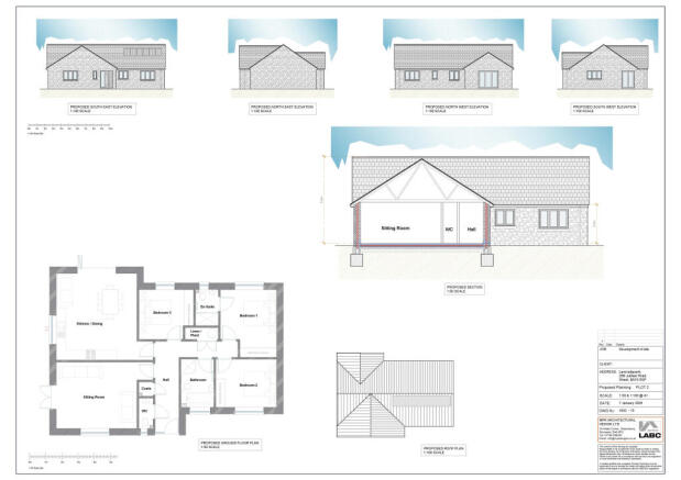
- A fantastic self build or development opportunity to construct a generously proportioned new bungalow to your specification, currently with plans approved for a 1287sqft (119.6m2) detached dwelling.
- Superb centre of town setting along the highly desirable Jubilee Road, within short level walk of all amenities and tucked away at the end of a private driveway.
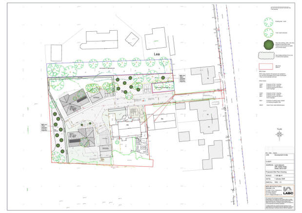
- Full planning permission is granted for the construction of two dwellings, each substantial stone fronted detached bungalows with double garages (Planning Reference: 2025/0078/FUL/02)
- With the current scheme approved, this consented site is free of any responsibility for Community Infrastructure Levy and Phosphate Mitigation requirements.
- A truly exceptional 'oven ready' opportunity to build your own home without many of the significant preliminary costs associated with most other building plots offered for sale.
Description
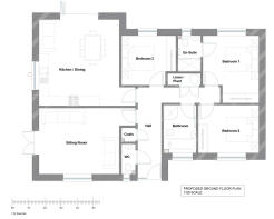
Accommodation
The finished property will be of comfortable proportions, spanning a generous 1287sqft (119.6m2) of useable single storey floorspace. It will enjoy a tasteful blend of modern architectural features and building methods with a contemporary finish if desired suited to 21st century living, all whilst complementing its surroundings. Location is key and this generous plot is situated in a prime position mid-way along the Jubilee Road, positioned privately at the end of the driveway alongside one other consented plot, and within level walking distance of the town centre amenities.
This is a fully consented site planning permission granted for the construction of two detached bungalows and associated detached double garages (Planning Reference: 2025/0078/FUL/02).
There is the opportunity to acquire this land independently from our client and appoint a highly regarded construction team whose wealth of experience and great eye for detail will deliver exceptional standards throughout and ensure that the process is a seamless one through to completed build and move in. Partnered construction teams in this instance come highly recommended and prequalified.
Thoughtfully designed, this beautiful home will enjoy a well-considered layout providing impressive living accommodation that is light, generously proportioned throughout and with direct access from its principle rooms onto its garden.
To be attractively constructed of natural blue lias and rendered elevations sat beneath a double roman clay tiled roof, combined with the pinnacle of energy efficiency with air source heatpump and underfloor heating if desired, or with the alternative option to connect to the mains gas supply.
Well positioned within its plot, this new home will enjoy a private situation set back from the road where an expansive driveway will provide ample parking leading up to the detached double garage. At the rear of the property, a considerable size garden is both private and takes in a particularly sunny aspect, to be attractively landscaped to your design and with the possibility of a full width terrace extending from the rear elevation, ideal for entertaining and accessed from the principle living areas of the home.
Location
Jubilee Road is a popular location on the southern side of Street. Street offers a good range of shopping facilities including Clarks Village complex of factory shopping outlets. Street also offers recreational facilities including theatre, tennis, bowls, and both indoor and open-air swimming pools. The historic town of Glastonbury is within 3 miles, the Cathedral City of Wells 9 miles and the nearest M5 motorway interchange at Dunball, Bridgwater is within 14 miles. Bristol, Bath, Taunton and Exeter are each within 33,33 and 26 miles distant respectively.
Directions
From the High Street (at the crossroads by the Library) turn into Leigh Road and at the top of Leigh Road (Tanyard on the right), turn right into Middle Leigh. Take the second left into Jubilee Road, follow the road navigating a small 's' bend and the land will be found after a short distance on the right hand side, up a shared driveway.
Services & Planning Information
Any interested parties should make their own enquiries with relevant authorities. There is mains electricity, gas and water available close to the plot. There is an active sewer connection adjacent to 28b Jubilee Road.
We are informed that this site will not be subject to typical CIL costs and has phosphorus credits in place and paid for by our client. This is not a transferrable additional cost to the purchaser as with many other consented sites.
Material Information
All available property information can be provided upon request from Holland & Odam. For confirmation of mobile phone and broadband coverage, please visit checker.ofcom.org.uk
Identity Verification
To ensure full compliance with current legal requirements, all buyers are required to verify their identity and risk status in line with anti-money laundering (AML) regulations before we can formally proceed with the sale. This process includes a series of checks covering identity verification, politically exposed person (PEP) screening, and AML risk assessment for each individual named as a purchaser. In addition, for best practice, we are required to obtain proof of funds and where necessary, to carry out checks on the source of funds being used for the purchase. These checks are mandatory and must be completed regardless of whether the purchase is mortgage-funded, cash, or part of a related transaction. A disbursement of £49 per individual (or £75 per director for limited company purchases) is payable to cover all aspects of this compliance process. This fee represents the full cost of conducting the required checks and verifications. You will receive a secure payment link and full instructions directly from our compliance partner, Guild365, who carry out these checks on our behalf.
Building Plot - Jubilee Road, Street
NEAREST STATIONS
Distances are straight line measurements from the centre of the postcode- Castle Cary Station9.6 miles
Notes
Disclaimer - Property reference SCJ-54161397. The information displayed about this property comprises a property advertisement. Rightmove.co.uk makes no warranty as to the accuracy or completeness of the advertisement or any linked or associated information, and Rightmove has no control over the content. This property advertisement does not constitute property particulars. The information is provided and maintained by holland & odam, Street. Please contact the selling agent or developer directly to obtain any information which may be available under the terms of The Energy Performance of Buildings (Certificates and Inspections) (England and Wales) Regulations 2007 or the Home Report if in relation to a residential property in Scotland.
Map data ©OpenStreetMap contributors.









