
Land Adjacent to 30 Panters, Hextable, Swanley, BR8 7RW
- PROPERTY TYPE
Land
- SIZE
Ask agent
Description
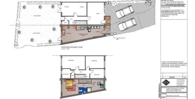
Freehold Land with Planning Permission Granted for an End of Terrace Dwelling
Situated in a cul-de-sac on Panters, close to the amenities available in Swanley Town Centre and travelling facilities including Swanley Train Station. Hextable Park is also nearby.
Freehold Land of approximately 940 sq ft.
Planning Consent has been granted by Sevenoaks District Council on 23rd April 2025 for a Two Storey Extension to form a One Bedroom Dwelling. Copies of the plans and consent are available for inspection. (Planning Reference: 25/00214/FUL).
Tenancy
Vacant Possession
Inspection:
On Site
*Guides are provided as an indication of each seller's minimum expectation. They are not necessarily figures which a property will sell for and may change at any time prior to the auction. Each property will be offered subject to a Reserve (a figure below which the Auctioneer cannot sell the property during the auction) which we expect will be set within the Guide Range or no more than 10% above a single figure Guide. Guide prices will be continually updated on our website up until the day of the auction.
There is a buyers fee payable to McHugh & Co of £1,200 incl. VAT for lots sold over £10,000. Lots sold for less than £10,000 a buyers fee of £300 incl. VAT is to be paid to McHugh & Co.
The seller may charge additional fees payable upon completion. If applicable, such fees are detailed within the special conditions of sale available in the legal documentation. Buyers are deemed to bid in full knowledge of this.
Brochures
Online BiddingLand Adjacent to 30 Panters, Hextable, Swanley, BR8 7RW
NEAREST STATIONS
Distances are straight line measurements from the centre of the postcode- Swanley Station1.3 miles
- Farningham Road Station2.3 miles
- Bexley Station2.6 miles
Notes
Disclaimer - Property reference 311245. The information displayed about this property comprises a property advertisement. Rightmove.co.uk makes no warranty as to the accuracy or completeness of the advertisement or any linked or associated information, and Rightmove has no control over the content. This property advertisement does not constitute property particulars. The information is provided and maintained by McHugh & Co, London. Please contact the selling agent or developer directly to obtain any information which may be available under the terms of The Energy Performance of Buildings (Certificates and Inspections) (England and Wales) Regulations 2007 or the Home Report if in relation to a residential property in Scotland.
Auction Fees: The purchase of this property may include associated fees not listed here, as it is to be sold via auction. To find out more about the fees associated with this property please call McHugh & Co, London on 020 3907 9877.
*Guide Price: An indication of a seller's minimum expectation at auction and given as a Guide Price or a range of Guide Prices. This is not necessarily the figure a property will sell for and is subject to change prior to the auction.
Reserve Price: Each auction property will be subject to a Reserve Price below which the property cannot be sold at auction. Normally the Reserve Price will be set within the range of Guide Prices or no more than 10% above a single Guide Price.
Map data ©OpenStreetMap contributors.