
Munnings Drive, Clacton-on-Sea

- PROPERTY TYPE
Detached
- BEDROOMS
4
- BATHROOMS
1
- SIZE
Ask agent
- TENUREDescribes how you own a property. There are different types of tenure - freehold, leasehold, and commonhold.Read more about tenure in our glossary page.
Freehold
Key features
- No Onward Chain
- Sole Agents
- Four Bedrooms
- 20'3 Lounge
- 20'11 Kitchen
- Gas Heating via Radiators
- Double Glazing
- South Facing Rear Garden
- Off Road Parking & Garage
- Viewing Recommended
Description
Blake & Thickbroom are pleased to present this well-maintained four-bedroom detached family home, ideally located on the highly regarded Cann Hall development. This spacious property boasts a desirable southerly-facing rear garden and offers generous living accommodation throughout.
Positioned within walking distance of local schools and just a five-minute drive to major shopping facilities, the home offers convenience as well as comfort - perfect for families.
Early viewing is highly recommended to avoid disappointment. Contact our office today to arrange your appointment.
Agent Notes:
Material information for this property
Tenure is Freehold. Council Tax Band: C. EPC :D
Services connected:
Electricity: Yes
Gas: Yes
Water: Yes
Sewerage type: Mains
Telephone and broadband coverage: Yes
Any additional property charges: No
Non standard property features to note: None
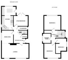
FIRST FLOOR: BEDROOM ONE
3.84m x 3.33m (12'7 x 10'11)
Radiator, fitted wardrobe, replacement double glazed window to rear.
BEDROOM TWO
3.84m x 2.29m (12'7 x 7'6)
Radiator, replacement double glazed window to front.
BEDROOM THREE
3.68m x 2.31m (12'1 x 7'7)
Radiator, replacement double glazed window to side.
SHOWER ROOM
Fitted with low level WC, pedestal hand wash basin, shower unit with shower attachment above. Heated towel rail, fully tiled walls, tiled flooring. Replacement double glazed window to side.
FIRST FLOOR LANDING
Storage cupboard housing wall mounted gas boiler and hot water tank. Access to loft, radiator, doors to all rooms. Stairs to ground floor.
ENTRANCE HALL
Replacement double glazed entrance door to entrance hall. Stairs to first floor with understairs storage cupboard, radiator, doors to all rooms.
LOUNGE
6.17m x 3.3m (20'3 x 10'10)
Two radiators, two replacement double glazed windows to front.
DINING ROOM
2.87m x 2.67m (9'5 x 8'9)
Radiator, replacement double glazed window to side.
GROUND FLOOR CLOAKROOM
Fitted with low level WC, vanity hand wash basin, fully tiled walls, radiator, replacement double glazed window to side.
BEDROOM FOUR/STUDY
3.35m x 2.31m (11'0 x 7'7)
Radiator, replacement double glazed french style doors to garden.
KITCHEN
6.12m x 3.35m (20'1 x 11'0)
Fitted with wooden work surfaces with inset twin drainer sink unit. Cupboards, drawers and storage space under. Range of eye level cupboards. Inset four ring electric hob with extractor hood above. Integrated oven with grill and cupboards above and below. Integrated fridge freezer and washing machine. Two radiators, replacement double glazed window to rear, replacement double glazed single door to rear garden.
OUTSIDE
Block paved driveway to the front providing off road parking with further access to garage with up and over door, power and light connected (Currently divided with stud work wall providing access to utility room space by remainder of garage).
Gate and pathway to the right hand side of the property. The remainder is laid to lawn with hedge borders.
The rear garden enjoys a southerly facing aspect being low maintenance paved garden retained by a variety of mature plants and shrubs. The garden is retained by wooden panel fencing.
.
Brochures
Agent Brochure- COUNCIL TAXA payment made to your local authority in order to pay for local services like schools, libraries, and refuse collection. The amount you pay depends on the value of the property.Read more about council Tax in our glossary page.
- Ask agent
- PARKINGDetails of how and where vehicles can be parked, and any associated costs.Read more about parking in our glossary page.
- Off street
- GARDENA property has access to an outdoor space, which could be private or shared.
- Yes
- ACCESSIBILITYHow a property has been adapted to meet the needs of vulnerable or disabled individuals.Read more about accessibility in our glossary page.
- Ask agent
Energy performance certificate - ask agent
Munnings Drive, Clacton-on-Sea
Add an important place to see how long it'd take to get there from our property listings.
__mins driving to your place
Get an instant, personalised result:
- Show sellers you’re serious
- Secure viewings faster with agents
- No impact on your credit score
Your mortgage
Notes
Staying secure when looking for property
Ensure you're up to date with our latest advice on how to avoid fraud or scams when looking for property online.
Visit our security centre to find out moreDisclaimer - Property reference 11730. The information displayed about this property comprises a property advertisement. Rightmove.co.uk makes no warranty as to the accuracy or completeness of the advertisement or any linked or associated information, and Rightmove has no control over the content. This property advertisement does not constitute property particulars. The information is provided and maintained by Blake & Thickbroom, Clacton on sea. Please contact the selling agent or developer directly to obtain any information which may be available under the terms of The Energy Performance of Buildings (Certificates and Inspections) (England and Wales) Regulations 2007 or the Home Report if in relation to a residential property in Scotland.
*This is the average speed from the provider with the fastest broadband package available at this postcode. The average speed displayed is based on the download speeds of at least 50% of customers at peak time (8pm to 10pm). Fibre/cable services at the postcode are subject to availability and may differ between properties within a postcode. Speeds can be affected by a range of technical and environmental factors. The speed at the property may be lower than that listed above. You can check the estimated speed and confirm availability to a property prior to purchasing on the broadband provider's website. Providers may increase charges. The information is provided and maintained by Decision Technologies Limited. **This is indicative only and based on a 2-person household with multiple devices and simultaneous usage. Broadband performance is affected by multiple factors including number of occupants and devices, simultaneous usage, router range etc. For more information speak to your broadband provider.
Map data ©OpenStreetMap contributors.





