
Market Street, Hambleton, FY6

- PROPERTY TYPE
Detached
- BEDROOMS
4
- BATHROOMS
3
- SIZE
2,282 sq ft
212 sq m
- TENUREDescribes how you own a property. There are different types of tenure - freehold, leasehold, and commonhold.Read more about tenure in our glossary page.
Freehold
Key features
- **NO CHAIN DELAY**
- Spacious And Beautifully Presented Lounge
- Four Double Bedrooms, Two With En-Suite Shower Facilities
- Beautiful Orangery
- Open Plan Kitchen, Family And Dining Room
- Well Established Gardens To The Front And Rear Elevations
- Impressive Second Floor Utility Room
- Off Road Parking For Many Vehicles,
- **Secure Gated Entrance**
Description
This beautifully maintained and presented detached residence offers extremely spacious and versatile living accommodation! The property benefits from much updating under the present owners and as a result is ready to walk into!
Briefly comprising entrance hallway with stairs to the first floor landing and doors leading off to the open plan kitchen and family dining room with orangery adjacent, spacious lounge and ground floor wash / cloakroom. There are three double bedrooms, two with en suite facilities and a modern family bathroom to the first floor landing. There is a great size second floor landing which is well utilised as office space for remote working with door to a fourth double bedroom and a great size utility room. This area boasts potential to be reconfigured and developed into an impressive principal bedroom with en-suite and walk in dressing room, extensive storage is avaiable into the eaves.
Externally this property boasts mature gardens to the front and rear aspects. Secure, off road parking is available for several cars with additional parking directly to the front of the property.
A One Of A Kind Family Home! Internal Viewing Is Considered Essential To Appreciate Space And Attention To Detail!
Call Unique ThorntonOn To Secure Your Viewing Today!
EPC: D
Council Tax: F
Internal Living Space: 212sqm
Tenure: Freehold, to be confirmed by your legal representative.
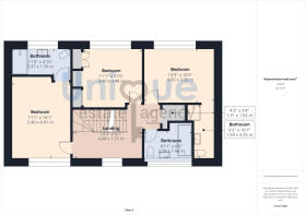
Entrance Hallway - 4.01 x 2.06 - at max m (13′2″ x 6′9″ ft)
Light, bright and welcoming entrance hallway with stairs to the first floor landing and doors that lead to the beautifully presented lounge, open plan kitchen and family dining room with orangery adjacent.
Open Plan Kitchen And Family Dining Area - 7.53 x 3.50 - at max m (24′8″ x 11′6″ ft)
Installed in 2019, this stunning open plan kitchen and family dining area offers a stylish and comprehensively fitted kitchen boasting a vast range of wall mounted, full length and base units with extensive work surface area that includes a breakfast island with 5 ring induction hob and storage under. Integrated appliances include a Miele conventional oven, a Miele steam oven with warming drawer, dishwasher, fridge and freezer and wine cooler. Well proportioned dining area with ample room for a large family dining table and chairs. French doors open to the rear garden area. French doors open to the front garden and there is an opening to the orangery creating a large fluid family living space, definitely the heart of this family home, perfect for entertaining family and friends.
Spacious Lounge - 6.54 x 4.06 - at max m (21′5″ x 13′4″ ft)
A beautifully presented family living room with limestone fire surround and feature cast iron log burner (installed 2021). UPVC French doors open to the front garden, window to the rear aspect.
Orangery - 4.76 x 3.85 - at max m (15′7″ x 12′8″ ft)
Extended and reconfigured in 2022, with log burner, slate backing and lantern skit light with feature spotlights surrounding. Views of the garden to the front elevation.
Ground Floor Wash / Cloakroom - 2.24 x 0.83 - at max m (7′4″ x 2′9″ ft)
Comprises low flush w.c and vanity sink unit with storage under. Wall mounted coat hooks create the perfect cloak room.
First Floor Landing - 4.04 x 1.71 - at max m (13′3″ x 5′7″ ft)
Light, bright landing area with stairs to the second floor landing / office space and doors to three extremely spacious bedrooms and the family bathroom.
Principal Bedroom - 4.91 x 3.40 - at max m (16′1″ x 11′2″ ft)
FANTASTIC size principal bedroom with full wall of fitted wardrobes, front garden views and door to the en-suite shower room.
Principal En-Suite - 3.37 x 1.50 - at max m (11′1″ x 4′11″ ft)
Large en-suite shower room briefly comprising mains rain shower with hand held attachment, wall mounted vanity sink unit with storage under and corner low flush toilet. Two tone tiling with spot lights down.
Bedroom Two - 4.05 x 3.20 - at max m (13′3″ x 10′6″ ft)
Spacious bedroom with ample floor space for free standing furniture, rear elevation views.
Bedroom Two En-Suite - 3.25 x 1.59 - at max m (10′8″ x 5′3″ ft)
Stylish en-suite shower room comprising shower cubicle, wall mounted vanity sink unit with storage under and low flush toilet. Chrome wall mounted, 'ladder style' radiator.
Bedroom Three - 3.48 x 3.40 - at max m (11′5″ x 11′2″ ft)
Well proportioned double bedroom with fitted wardrobes and rear aspect views.
Family Bathroom (2019) - 2.74 x 1.46 - at max m (8′12″ x 4′9″ ft)
STUNNING three piece family bathroom, briefly comprising bath with wall inset taps and hand held shower attachment. Pedestal hand wash basin and low flush toilet. Walls and floor are attractively tiled inclusively. Spotlights.
Second Floor Landing / Office Space - 4.05 x 3.42 - at max m (13′3″ x 11′3″ ft)
Versatile space with Velux skylight, utilised well as office / study area for remote working.
Bedroom Four - 4.04 x 3.85 - at max m (13′3″ x 12′8″ ft)
Spacious room with Velux skylight and extensive storage into the eaves.
Utility Room
A FANTASTIC, ideally placed, utility room with built in wardrobes, boiler and plumbing for washing machine, space for tumble dryer. Potential to develop into an en-suite facility to the fourth bedroom.
External Areas
Block paved driveway, space for several vehicles in front of the private, electric gate entrance with additional parking beyond if required. The front garden is beautifully established with a well stocked selection of mature trees, shrubs and planted borders. Extremely private, elevated paved patio and seating area. A composited decked seating area and garden space can be found to the rear elevation with access either side of the property and via the kitchen.
Brochures
Property Brochure- COUNCIL TAXA payment made to your local authority in order to pay for local services like schools, libraries, and refuse collection. The amount you pay depends on the value of the property.Read more about council Tax in our glossary page.
- Band: F
- PARKINGDetails of how and where vehicles can be parked, and any associated costs.Read more about parking in our glossary page.
- Yes
- GARDENA property has access to an outdoor space, which could be private or shared.
- Yes
- ACCESSIBILITYHow a property has been adapted to meet the needs of vulnerable or disabled individuals.Read more about accessibility in our glossary page.
- Ask agent
Market Street, Hambleton, FY6
Add an important place to see how long it'd take to get there from our property listings.
__mins driving to your place
Get an instant, personalised result:
- Show sellers you’re serious
- Secure viewings faster with agents
- No impact on your credit score
Your mortgage
Notes
Staying secure when looking for property
Ensure you're up to date with our latest advice on how to avoid fraud or scams when looking for property online.
Visit our security centre to find out moreDisclaimer - Property reference 9546. The information displayed about this property comprises a property advertisement. Rightmove.co.uk makes no warranty as to the accuracy or completeness of the advertisement or any linked or associated information, and Rightmove has no control over the content. This property advertisement does not constitute property particulars. The information is provided and maintained by Unique Estate Agency Ltd, Thornton Cleveleys. Please contact the selling agent or developer directly to obtain any information which may be available under the terms of The Energy Performance of Buildings (Certificates and Inspections) (England and Wales) Regulations 2007 or the Home Report if in relation to a residential property in Scotland.
*This is the average speed from the provider with the fastest broadband package available at this postcode. The average speed displayed is based on the download speeds of at least 50% of customers at peak time (8pm to 10pm). Fibre/cable services at the postcode are subject to availability and may differ between properties within a postcode. Speeds can be affected by a range of technical and environmental factors. The speed at the property may be lower than that listed above. You can check the estimated speed and confirm availability to a property prior to purchasing on the broadband provider's website. Providers may increase charges. The information is provided and maintained by Decision Technologies Limited. **This is indicative only and based on a 2-person household with multiple devices and simultaneous usage. Broadband performance is affected by multiple factors including number of occupants and devices, simultaneous usage, router range etc. For more information speak to your broadband provider.
Map data ©OpenStreetMap contributors.






