Commercial development for sale
Land South East Of, Ermine Way, Shirehampton, Bristol, South West, BS11
- SIZE AVAILABLE
122,839 sq ft
11,412 sq m
- SECTOR
Commercial development for sale
Key features
- The land is offered For Sale by Informal Tender. Tenders are to be submitted in the prescribed tender format by Noon on Thursday 20th November 2025.
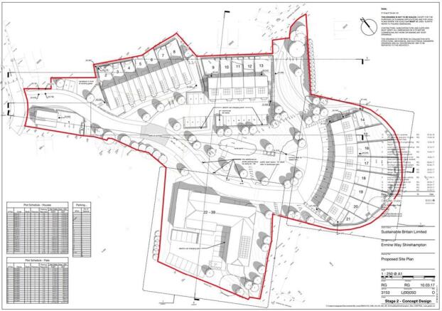
- Implemented Scheme for 39 Dwellings
- Strategic Employment Location
- On behalf of joint Fixed Charge Receivers
Description
The property currently comprises an overgrown area of unused land but is also an implemented residential development scheme extending to approximately 1.14 ha (2.82 acres). The site was historically a clay pit and then used as a compound in conjunction with the construction of the M5 Motorway. The site is bowl shaped and sloping in areas with varying topography. The land has a vehicular access point via Ermine Way to the Northwest and also pedestrian from either end of Barrow Hill Crescent. We are advised there is a tarmac access road installed on the site, now overgrown.
Brochures
Land South East Of, Ermine Way, Shirehampton, Bristol, South West, BS11
NEAREST STATIONS
Distances are straight line measurements from the centre of the postcode- Shirehampton Station0.6 miles
- Avonmouth Station0.8 miles
- St. Andrews Road Station1.6 miles
Notes
Disclaimer - Property reference 12317FH. The information displayed about this property comprises a property advertisement. Rightmove.co.uk makes no warranty as to the accuracy or completeness of the advertisement or any linked or associated information, and Rightmove has no control over the content. This property advertisement does not constitute property particulars. The information is provided and maintained by Bruton Knowles, Bristol. Please contact the selling agent or developer directly to obtain any information which may be available under the terms of The Energy Performance of Buildings (Certificates and Inspections) (England and Wales) Regulations 2007 or the Home Report if in relation to a residential property in Scotland.
Map data ©OpenStreetMap contributors.




