Land for sale
Ber Street, Norwich, NR1 3EY
- SIZE AVAILABLE
4,704 sq ft
437 sq m
- SECTOR
Land for sale
Key features
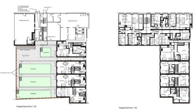
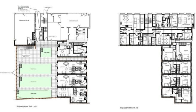
- Implemented Planning Permission for development of five dwellings
- Close to city centre
- Footings dug
Description
The site has an implemented planning permission ref. 16/01266/F for 'conversion of first floor existing two storey building fronting Ber Street to 3 no. flats. Demolition of warehouse and retail units to rear of site accessed off Scotts Yard with the erection of 5 no. dwellings and associated works. Provision of 1 no. retail units facing on to Ber Street by infilling the warehouse access'.
The three first floor flats have been converted so the site for sale has implemented planning for 5 dwellings as detailed on the attached plans. Units 4 & 5 are 1 bed flats of 50 m sq (538 sq ft) and 38 sq m (409 sq ft) and units 6, 7 & 8 are 2 bed houses of 71 m sq (674 sq ft).
Acreage - 0.108 acres (stms)
The site is situated on Ber Street in the centre of Norwich behind an existing retail and residential frontage. It is rectangular in shape and extends to approximately 0.044 hectares (0.108 acres)
With regard to planning conditions , condition 3 relating to materials, condition 5 relating to landscaping and 10 relating to energy efficiency have been approved and condition 6 relation to archaeology have been discharged.
The CIL has been paid on the development.
Strictly by appointment with the sole selling agent.
No. 113-119 Ber Street will be seen around halfway up Ber Street heading out of Norwich from Rose Lane on the right-hand side. There are time limited parking spaces on Ber Street. A Brown&Co LLP for sale board will be up at the property.
AGENT'S NOTES:
(1) The photographs shown in this brochure have been taken with a camera using a wide angle lens and therefore interested parties are advised to check the measurements prior to arranging a viewing.
(2) Intending buyers will be asked to produce original Identity Documentation and Proof of Address before solicitors are instructed.
CITY CENTRE DEVELOPMENT OPPORTUNITY
Brochures
Ber Street, Norwich, NR1 3EY
NEAREST STATIONS
Distances are straight line measurements from the centre of the postcode- Norwich Station0.4 miles
- Salhouse Station5.3 miles
Notes
Disclaimer - Property reference 439813FH. The information displayed about this property comprises a property advertisement. Rightmove.co.uk makes no warranty as to the accuracy or completeness of the advertisement or any linked or associated information, and Rightmove has no control over the content. This property advertisement does not constitute property particulars. The information is provided and maintained by Brown & Co, Norwich. Please contact the selling agent or developer directly to obtain any information which may be available under the terms of The Energy Performance of Buildings (Certificates and Inspections) (England and Wales) Regulations 2007 or the Home Report if in relation to a residential property in Scotland.
Map data ©OpenStreetMap contributors.




