2761 Corra Choill Park, Prosperous, Kildare, Ireland
- PROPERTY TYPE
Terraced
- BEDROOMS
3
- BATHROOMS
1
- SIZE
Ask agent
Key features
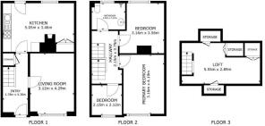
- Extends to 77.76 Sq. Metres / 837 Sq. Feet ( Excluding Attic ) .
- Located in established and well-maintained town centre estate close to all town amenities.
- Oil fired central heating.
- Large rear garden offering several opportunities subject to planning.
- Concrete Shed.
- Front Driveway with street parking also available.
- Overlooking Green Area.
- Attic storage.
- Built in C.1975.
Description
Description
* 3 Bedroom Mid-Terrace Residence. *
REA Brophy Farrell have the pleasure of presenting this 3 Bedroom mid -terraced property to the market.
2761 Corra Choill is located in an established and well maintained town center estate and includes living / sitting room, kitchen ,3 bedrooms and bathroom. There is also attic storage accessible from a staircase off the 2nd floor.
Location is a key factor as it is positioned in a small cul-de-sac in Corra Choill off the R408 Maynooth road and within a 5 minutes' walk of the town centre and the main R403 Clane Road crossroads with Dowlings Pub / Restaurant / Prosperous Pitch and Putt Club, Prosperous Lawn Tennis Club, Coffee shop and Restaurants, Church, School ( Scoil an Linbh Iosa) and Pre-school ( Little Scholars ) located thereof.
Local supermarkets include Londis and Spar and other towns in proximity include Clane (approximately 6 KM) with Dunnes Stores /Aldi / Tesco / Choice, Maynooth (approximately15KM ) ,Allenwood (approximately 7KM ),Caragh (approximately 8KM ) ,Sallins (approximately 9KM) and Naas ( approximately 12 KM ).
Dublin city and suburbs are easily accessible via a frequent town bus service and train services from Sallins with the property providing easy access to both the M4 and M7 motorways.
Other local attractions in the area include the Lullymore Heritage and Discovery Park and the Kildare Maze.
While the property requires modernization. it offers a lot of potential, and it boasts of a large rear garden with several opportunities subject to planning. There is also a large front driveway with street parking also available and is ideally suited to 1st time buyers or anyone seeking to downsize.
Viewing is by appointment with sole selling agents REA Brophy Farrell.
Features
Extends to 77.76 Sq. Metres / 837 Sq. Feet ( Excluding Attic ) .
Located in established and well-maintained town centre estate close to all town amenities.
Oil fired central heating.
Large rear garden offering several opportunities subject to planning.
Concrete Shed.
Front Driveway with street parking also available.
Overlooking Green Area.
Attic storage.
Built in C.1975.
BER Details
BER: D1 Energy Performance Indicator:242.98 kWh/m²/yr
Viewing Details
Viewing by appointment only.
The above particulars are issued by REA Brophy Farrell and while every care is taken in preparing particulars they do not hold themselves responsible for any inaccuracies.
2761 Corra Choill Park, Prosperous, Kildare, Ireland
NEAREST AIRPORTS
Distances are straight line measurements- Dublin(International)22.7 miles
- Waterford(International)77.8 miles
- Galway(International)90.5 miles
- Knock(International)94.9 miles
- Belfast(International)97.5 miles
Advice on buying Irish property
Learn everything you need to know to successfully find and buy a property in Ireland.
Notes
This is a property advertisement provided and maintained by REA, Brophy Farrell (reference 1034830) and does not constitute property particulars. Whilst we require advertisers to act with best practice and provide accurate information, we can only publish advertisements in good faith and have not verified any claims or statements or inspected any of the properties, locations or opportunities promoted. Rightmove does not own or control and is not responsible for the properties, opportunities, website content, products or services provided or promoted by third parties and makes no warranties or representations as to the accuracy, completeness, legality, performance or suitability of any of the foregoing. We therefore accept no liability arising from any reliance made by any reader or person to whom this information is made available to. You must perform your own research and seek independent professional advice before making any decision to purchase or invest in overseas property.






