
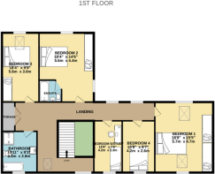
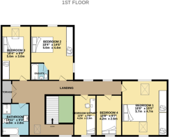
5 bedroom barn conversion for sale
Hoyles Lane, Cottam, Preston, PR4 0LD

- PROPERTY TYPE
Barn Conversion
- BEDROOMS
5
- BATHROOMS
3
- SIZE
1,744 sq ft
162 sq m
- TENUREDescribes how you own a property. There are different types of tenure - freehold, leasehold, and commonhold.Read more about tenure in our glossary page.
Freehold
Key features
- A Fantastic Barn Conversion Brimming with Character
- Impressive Kitchen with Aga & Utility Room
- Expansive & Light Family Lounge with Log-Burner
- Double Garage with Barn Doors & Plenty of Parking to the Front of the Property
- Spacious, Airy & Light Hallway and Landing
- Luxurious Bedrooms (some with Fitted Wardrobes & Velux Windows for Extra Light)
- Spacious Family Bathroom with Separate Shower
- Downstairs WC
- Separate Lounge/Diner
- Expansive Rear Garden with Summer House
Description
A charming 5 bedroom house that boasts an impressive kitchen featuring an Aga and utility room, ideal for culinary enthusiasts.
The expansive family lounge is bathed in natural light, creating a warm ambience accentuated by a cosy log-burner - perfect for relaxing evenings.
The property offers practicality with a double garage adorned with barn doors, accompanied by ample parking at the front.
Upon entering, the airy and spacious hallway leads to a luxurious landing, setting the tone for the elegance that awaits.
A separate lounge/diner offers a versatile space for entertaining or relaxing.
The property also features a convenient downstairs WC, adding a touch of practicality to the layout.
Upstairs, the bedrooms are a haven of comfort and style, some adorned with fitted wardrobes and Velux windows providing natural light and a touch of sophistication.
The family bathroom is generously sized and includes a separate shower for convenience.
Stepping outside, the expansive rear garden beckons with the promise of serenity and outdoor enjoyment, complemented by a charming summer house that offers a peaceful retreat within the comfort of your own home.
This property is a true gem for those seeking a harmonious blend of character, comfort, and practicality. With its seamless integration of modern amenities and rustic charm, this barn conversion offers a unique opportunity to embrace countryside living at its finest.
Don't miss the chance to make this exceptional property your own and experience the epitome of country living in this remarkable abode.
EPC Rating: C
Parking - Garage
Parking - Driveway
- COUNCIL TAXA payment made to your local authority in order to pay for local services like schools, libraries, and refuse collection. The amount you pay depends on the value of the property.Read more about council Tax in our glossary page.
- Band: F
- PARKINGDetails of how and where vehicles can be parked, and any associated costs.Read more about parking in our glossary page.
- Garage,Driveway
- GARDENA property has access to an outdoor space, which could be private or shared.
- Front garden,Rear garden
- ACCESSIBILITYHow a property has been adapted to meet the needs of vulnerable or disabled individuals.Read more about accessibility in our glossary page.
- Ask agent
Hoyles Lane, Cottam, Preston, PR4 0LD
Add an important place to see how long it'd take to get there from our property listings.
__mins driving to your place
Get an instant, personalised result:
- Show sellers you’re serious
- Secure viewings faster with agents
- No impact on your credit score
Your mortgage
Notes
Staying secure when looking for property
Ensure you're up to date with our latest advice on how to avoid fraud or scams when looking for property online.
Visit our security centre to find out moreDisclaimer - Property reference 88301af0-2b2e-4635-816f-d84a5a502cd2. The information displayed about this property comprises a property advertisement. Rightmove.co.uk makes no warranty as to the accuracy or completeness of the advertisement or any linked or associated information, and Rightmove has no control over the content. This property advertisement does not constitute property particulars. The information is provided and maintained by Clarkson Holden, Preston. Please contact the selling agent or developer directly to obtain any information which may be available under the terms of The Energy Performance of Buildings (Certificates and Inspections) (England and Wales) Regulations 2007 or the Home Report if in relation to a residential property in Scotland.
*This is the average speed from the provider with the fastest broadband package available at this postcode. The average speed displayed is based on the download speeds of at least 50% of customers at peak time (8pm to 10pm). Fibre/cable services at the postcode are subject to availability and may differ between properties within a postcode. Speeds can be affected by a range of technical and environmental factors. The speed at the property may be lower than that listed above. You can check the estimated speed and confirm availability to a property prior to purchasing on the broadband provider's website. Providers may increase charges. The information is provided and maintained by Decision Technologies Limited. **This is indicative only and based on a 2-person household with multiple devices and simultaneous usage. Broadband performance is affected by multiple factors including number of occupants and devices, simultaneous usage, router range etc. For more information speak to your broadband provider.
Map data ©OpenStreetMap contributors.






