The Furlongs, INGATESTONE, United Kingdom, CM4

Letting details
- Let available date:
- Now
- Deposit:
- Ask agentA deposit provides security for a landlord against damage, or unpaid rent by a tenant.Read more about deposit in our glossary page.
- Min. Tenancy:
- Ask agent How long the landlord offers to let the property for.Read more about tenancy length in our glossary page.
- Let type:
- Long term
- Furnish type:
- Part furnished
- Council Tax:
- Ask agent
- PROPERTY TYPE
Semi-Detached
- BEDROOMS
3
- BATHROOMS
1
- SIZE
Ask agent
Key features
- 15 minute walk to the railway station, 6 minute to Buss stop,
- 8 minutes drive to Shenfield Railway Station with Elisabeth Line
- 5 min walk to the Primary School 10 minutes walk to the Surgery, 10 min walk to two supermarkets
- 10 minute walk to Anglo-European Six Form College with international baccalaureate
- Driveway parking for 3 cars
- Big Garden with Shed
- Roofed sideway closed corridor for bikes
Description
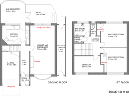
Ground Floor:
Garage 4.7x2.5mtr, Porch 1.3x1.3mtr, Hall 4.3 x1.3mtr, Lounge 7.3x3.65m with hardwood flooring with rugs ,large sliding door to the patio, Kitchen 4x2.8mtr with under floor heating built in electric double oven, gas hob, washing machine, dishwasher, fridge freezer, microwave, breakfast table, conservatory 3.4 x3.4 m, patio 3.6x2.8m, carpeted stairway with half landing
First Floor: Landing 2.7x2.7m,
Master bedroom 3.7x3.6 m with built-in furniture and cabinet with sliding door,
Master bedroom 3.9x3.7 m with built in wardrobe
Bedroom 3 3.7x2.6 m with built in cabinet.
Bathroom with walk-in shower 1.8x2.4mtr
Toilet 1.8 x 0.8mtr
Airing cupboard with boiler and solar heated hot water tank 0.8x1.5mtr
Property Type: Semi-detached
Full Renting price: £2150.00
Pricing Options: Guide Price
Tenure: 12 months
Council tax band: E
EPC rating: D
Measurement:1205.56 sq.ft.
Outside Space: Front Garden, Rear Garden, Patio
Parking: Garage, Driveway
Heating Type: Double Glazing,Gas Central Heating
-----------------------------------------------------------------------------------------------------
For viewing arrangement, please get in touch with 99home.
If calling, please quote reference: 15510
Disclaimer: 99home does not charge administration fees.
GDPR: Applying for the above property means you are giving us permission to pass your details to the vendor or landlord for further communication related to viewing arrangement or more property-related information. If you disagree, please write us in the message so we do not forward your details to the vendor or landlord or their managing company.
*Disclaimer for virtual viewings: Some or all information pertaining to this property may have been provided solely by the vendor, and although we always make every effort to verify the information provided to us, we strongly advise you to make further enquiries before continuing.
*If you book a viewing or make an offer on a property that has had its valuation conducted virtually, you are doing so under the knowledge that this information may have been provided solely by the vendor, and that we may not have been able to access the premises to confirm the information or test any equipment. We therefore strongly advise you to make further enquiries before completing your purchase of the property to ensure you are happy with all the information provided.
*Will make no warranty for the accuracy or completeness of the advertisement or any linked or associated information, and 99home has no control over the content. This property advertisement does not constitute property particulars, the property may offer to tenants in the same condition as they have seen on time of the viewing.
Fraud warning: We have had reports of fraudulent activities in our industry. DO NOT make any payment directly to the landlord or the seller. Be cautious of emails or messages asking you to transfer funds to any account, please contact us by telephone immediately to verify the authenticity of the communication and under NO circumstances action the request. If you paid any deposit or rent to 99home, we will release the fund to the landlord once you have moved in. Your safety is our top priority.
Brochures
Brochure- COUNCIL TAXA payment made to your local authority in order to pay for local services like schools, libraries, and refuse collection. The amount you pay depends on the value of the property.Read more about council Tax in our glossary page.
- Band: E
- PARKINGDetails of how and where vehicles can be parked, and any associated costs.Read more about parking in our glossary page.
- Yes
- GARDENA property has access to an outdoor space, which could be private or shared.
- Yes
- ACCESSIBILITYHow a property has been adapted to meet the needs of vulnerable or disabled individuals.Read more about accessibility in our glossary page.
- Ask agent
The Furlongs, INGATESTONE, United Kingdom, CM4
Add an important place to see how long it'd take to get there from our property listings.
__mins driving to your place
About gLocalAgents.co.uk, Covering Nationwide
99Home Ltd, Sutton Business Park, Restmor Way, Wallington, Surrey, SM6 7AH

Notes
Staying secure when looking for property
Ensure you're up to date with our latest advice on how to avoid fraud or scams when looking for property online.
Visit our security centre to find out moreDisclaimer - Property reference 15510_EAF_250698. The information displayed about this property comprises a property advertisement. Rightmove.co.uk makes no warranty as to the accuracy or completeness of the advertisement or any linked or associated information, and Rightmove has no control over the content. This property advertisement does not constitute property particulars. The information is provided and maintained by gLocalAgents.co.uk, Covering Nationwide. Please contact the selling agent or developer directly to obtain any information which may be available under the terms of The Energy Performance of Buildings (Certificates and Inspections) (England and Wales) Regulations 2007 or the Home Report if in relation to a residential property in Scotland.
*This is the average speed from the provider with the fastest broadband package available at this postcode. The average speed displayed is based on the download speeds of at least 50% of customers at peak time (8pm to 10pm). Fibre/cable services at the postcode are subject to availability and may differ between properties within a postcode. Speeds can be affected by a range of technical and environmental factors. The speed at the property may be lower than that listed above. You can check the estimated speed and confirm availability to a property prior to purchasing on the broadband provider's website. Providers may increase charges. The information is provided and maintained by Decision Technologies Limited. **This is indicative only and based on a 2-person household with multiple devices and simultaneous usage. Broadband performance is affected by multiple factors including number of occupants and devices, simultaneous usage, router range etc. For more information speak to your broadband provider.
Map data ©OpenStreetMap contributors.