2 bedroom end of terrace house for sale
The Drive, Feltham, Middlesex, TW14

- PROPERTY TYPE
End of Terrace
- BEDROOMS
2
- BATHROOMS
1
- SIZE
872 sq ft
81 sq m
- TENUREDescribes how you own a property. There are different types of tenure - freehold, leasehold, and commonhold.Read more about tenure in our glossary page.
Freehold
Key features
- IMMACULATELY PRESENTED
- DOUBLE STOREY EXTENSION TO REAR
- TRIPLE GLAZED WINDOWS
- DRIVEWAY PARKING
- CONSERVATORY WITH SOLID ROOF
- LANDSCAPED GARDEN
Description
UPVC WOOD EFFECT ENTRANCE DOOR: To;
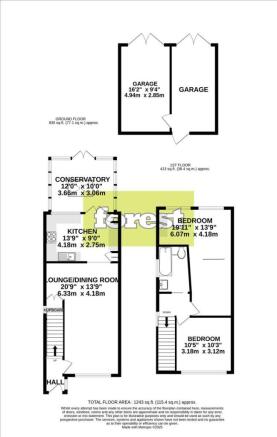
HALLWAY: Solid wood floor, radiator, stairs to first floor, door to;
LIVING ROOM: 20.9 x 13.9 (6.32 x 4.19m), Triple glazed window, solid wood floor, TV aerial point, understairs cupboard, opening to;
KITCHEN: 13.9 x 9 (4.19 x 2.74m), Triple glazed window, modern range of wall and base units, solid wood worksurfaces, composite sink with mixer-tap, tiled splashback, electric oven and gas hob with extractor over, integral dishwasher, space for washing machine and fridge/freezer, radiator, tiled floor, double glazed double doors to;
CONSERVATORY: 12 x 10 (3.66 x 3.05m), Double glazed door to garden, wood laminate floor, two radiators, skylight window.
FIRST FLOOR LANDING: Triple glazed window, doors to;
BEDROOM 1: 19.11 x 13.9 (6.07 x 4.19m), Triple glazed window, dressing area, radiator, access to loft space.
BEDROOM 2: 10.5 x 10.3 (3.18 x 3.12m), Triple glazed window, radiator.
BATHROOM: Triple glazed window, three-piece suite comprising of panel enclosed bath with shower over, low-level W.C., vanity wash hand basin, fully tiled, radiator.
OUTSIDE
REAR GARDEN: Fully landscaped with large patio area leading to well-maintained lawn, large pergola over patio, side access gate.
GARAGE: 16.2 x 9.4 (4.93 x 2.84m), 16.2 x 8.5 (4.93 x 2.57m), Light and power, with rear access.
ENERGY PERFORMANCE CERTIFICATE RATING: D
TOTAL FLOOR AREA: 81 Sq. Mtrs.
COUNCIL TAX BAND: D - £2086 p.a.
STAMP DUTY PAYABLE: £10,000 (For first time purchasers)
£15,000 (If you have ever owned or part owned another property).
£40,000 (If the purchase results in owning two or more properties).
VIEWING: By appointment through this office only on . We are open Monday to Friday 9.00am till 6.00pm and Saturday 9.00am till 4.00pm.
PROPERTY MISDESCRIPTIONS ACT: For clarification, we wish to inform prospective purchasers that we have not carried out a detailed survey, nor tested the services, appliances and specific fittings for this property. Your solicitor should check any rights of way or planning permission for any extensions which may have been carried out.
- COUNCIL TAXA payment made to your local authority in order to pay for local services like schools, libraries, and refuse collection. The amount you pay depends on the value of the property.Read more about council Tax in our glossary page.
- Band: D
- PARKINGDetails of how and where vehicles can be parked, and any associated costs.Read more about parking in our glossary page.
- Driveway
- GARDENA property has access to an outdoor space, which could be private or shared.
- Yes
- ACCESSIBILITYHow a property has been adapted to meet the needs of vulnerable or disabled individuals.Read more about accessibility in our glossary page.
- Ask agent
The Drive, Feltham, Middlesex, TW14
Add an important place to see how long it'd take to get there from our property listings.
__mins driving to your place
Get an instant, personalised result:
- Show sellers you’re serious
- Secure viewings faster with agents
- No impact on your credit score


Your mortgage
Notes
Staying secure when looking for property
Ensure you're up to date with our latest advice on how to avoid fraud or scams when looking for property online.
Visit our security centre to find out moreDisclaimer - Property reference Fel000ABF. The information displayed about this property comprises a property advertisement. Rightmove.co.uk makes no warranty as to the accuracy or completeness of the advertisement or any linked or associated information, and Rightmove has no control over the content. This property advertisement does not constitute property particulars. The information is provided and maintained by Forest Estate Agents, Feltham. Please contact the selling agent or developer directly to obtain any information which may be available under the terms of The Energy Performance of Buildings (Certificates and Inspections) (England and Wales) Regulations 2007 or the Home Report if in relation to a residential property in Scotland.
*This is the average speed from the provider with the fastest broadband package available at this postcode. The average speed displayed is based on the download speeds of at least 50% of customers at peak time (8pm to 10pm). Fibre/cable services at the postcode are subject to availability and may differ between properties within a postcode. Speeds can be affected by a range of technical and environmental factors. The speed at the property may be lower than that listed above. You can check the estimated speed and confirm availability to a property prior to purchasing on the broadband provider's website. Providers may increase charges. The information is provided and maintained by Decision Technologies Limited. **This is indicative only and based on a 2-person household with multiple devices and simultaneous usage. Broadband performance is affected by multiple factors including number of occupants and devices, simultaneous usage, router range etc. For more information speak to your broadband provider.
Map data ©OpenStreetMap contributors.




