Shefford Road, Clifton, Shefford, SG17

- PROPERTY TYPE
Detached
- BEDROOMS
3
- BATHROOMS
1
- SIZE
Ask agent
- TENUREDescribes how you own a property. There are different types of tenure - freehold, leasehold, and commonhold.Read more about tenure in our glossary page.
Freehold
Key features
- 27ft Outbuilding at the back of the garden - with power and light and double garage
- No upper chain - offered with vacant possession
- Well regarded local schools
- 3 Double bedrooms
- Potential for a large double storey extension - subject to any necessary consents
- Sought after village location - with amenities: butchers, public houses, post office & Tesco express store
Description
OPEN HOUSE VIEWINGS - (BY APPOINTMENT ONLY) - 1st NOVEMBER 2025
**MORE PHOTOS TO FOLLOW** A rare chance to make your mark, with clear potential to extend (STPP). Offered with no upward chain and set on a generous plot, this three-bedroom home in a sought-after village presents an excellent opportunity to create your dream home.
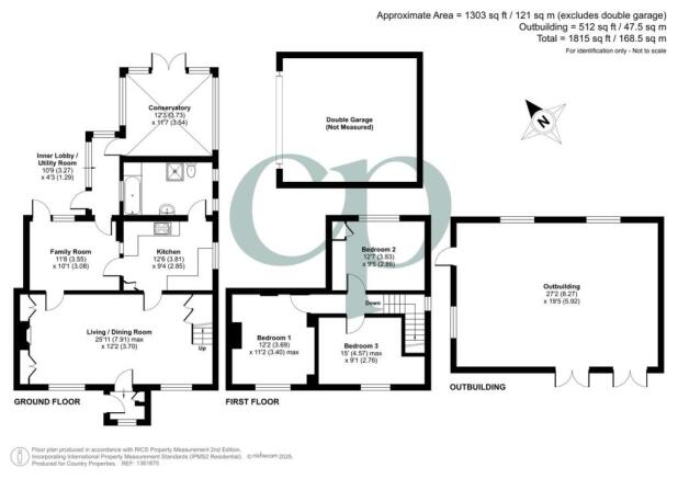
Entrance Porch
Double glazed window to front. Tiled flooring. Radiator. Door into Living room.
Living/Dining Room
25' 11" x 12' 2" (7.90m x 3.71m) Two double glazed window to front. Feature fireplace with tiled hearth and fitted shelving to recesses. Wood effect flooring. Radiator. Under stairs storage cupboard. Stairs raising to first floor.
Kitchen
12' 6" x 9' 4" (3.81m x 2.84m) Obscure double glazed window to side. A range of wall and base units with oak worksurfaces over and upstands. Inset ceramic one and a half bowl sink drainer unit with swan neck mixer tap over. Space for Range cooker. Space for fridge freezer. Door into family room and bathroom.
Family Room
11' 8" x 10' 1" (3.56m x 3.07m) Double glazed window to rear and double glazed door onto rear garden. Ceramic tiled flooring. Door to Inner lobby.
Family Bathroom
Two obscure double glazed windows to side. Four piece suite comprising bath, shower cubicle, pedestal wash hand basin, low level WC. Fully tiled walls, chrome heated towel rail.
Inner Lobby/Utility
Ceramic tiled flooring. Space and plumbing for washing machine. Space for tumble dryer. Door leading into Conservatory.
Conservatory
12' 3" x 11' 7" (3.73m x 3.53m) UPVC double glazed on brick base with French doors leading to rear garden. Tiled flooring. Radiator.
Landing
Loft access. Doors into all bedrooms.
Bedroom 1
12' 2" x 11' 2" (3.71m x 3.40m) Double glazed window to front. Radiator. Strip wood flooring. Built in wardrobes with overhead storage.
Bedroom 2
12' 7" x 9' 5" (3.84m x 2.87m) Double glazed window to rear. Radiator. Airing cupboard housing hot water tank and shelving.
Bedroom 3
15' 0" x 9' 1" (4.57m x 2.77m) Double glazed window to front. Radiator.
Front Garden
Laid to lawn with hedge screening. Driveway provides off road parking.
Rear Garden
Rear garden is in 2 sections both laid to lawn leading down to outbuildings. Water tap. Gated access to front.
Outbuilding
27' 2" x 19' 5" (8.28m x 5.92m) Timber construction outbuilding. Two windows to rear. Window to side. Two sets of double doors to front with door to side. Ample power points and lighting.
Double Garage
Double garage fitted with up & over door.
Agents Note
For all your mortgage needs contact Dawn Olney at Mortgage Vision on or email:
PRELIMINARY DETAILS - NOT YET APPROVED AND MAY BE SUBJECT TO CHANGES
Brochures
Brochure 1Brochure 2Brochure 3- COUNCIL TAXA payment made to your local authority in order to pay for local services like schools, libraries, and refuse collection. The amount you pay depends on the value of the property.Read more about council Tax in our glossary page.
- Band: E
- PARKINGDetails of how and where vehicles can be parked, and any associated costs.Read more about parking in our glossary page.
- Yes
- GARDENA property has access to an outdoor space, which could be private or shared.
- Yes
- ACCESSIBILITYHow a property has been adapted to meet the needs of vulnerable or disabled individuals.Read more about accessibility in our glossary page.
- Ask agent
Shefford Road, Clifton, Shefford, SG17
Add an important place to see how long it'd take to get there from our property listings.
__mins driving to your place
Get an instant, personalised result:
- Show sellers you’re serious
- Secure viewings faster with agents
- No impact on your credit score
Your mortgage
Notes
Staying secure when looking for property
Ensure you're up to date with our latest advice on how to avoid fraud or scams when looking for property online.
Visit our security centre to find out moreDisclaimer - Property reference 12467753. The information displayed about this property comprises a property advertisement. Rightmove.co.uk makes no warranty as to the accuracy or completeness of the advertisement or any linked or associated information, and Rightmove has no control over the content. This property advertisement does not constitute property particulars. The information is provided and maintained by Country Properties, Shefford. Please contact the selling agent or developer directly to obtain any information which may be available under the terms of The Energy Performance of Buildings (Certificates and Inspections) (England and Wales) Regulations 2007 or the Home Report if in relation to a residential property in Scotland.
*This is the average speed from the provider with the fastest broadband package available at this postcode. The average speed displayed is based on the download speeds of at least 50% of customers at peak time (8pm to 10pm). Fibre/cable services at the postcode are subject to availability and may differ between properties within a postcode. Speeds can be affected by a range of technical and environmental factors. The speed at the property may be lower than that listed above. You can check the estimated speed and confirm availability to a property prior to purchasing on the broadband provider's website. Providers may increase charges. The information is provided and maintained by Decision Technologies Limited. **This is indicative only and based on a 2-person household with multiple devices and simultaneous usage. Broadband performance is affected by multiple factors including number of occupants and devices, simultaneous usage, router range etc. For more information speak to your broadband provider.
Map data ©OpenStreetMap contributors.




