
3 bedroom semi-detached house for sale
London Road, Peterborough

- PROPERTY TYPE
Semi-Detached
- BEDROOMS
3
- BATHROOMS
1
- SIZE
Ask agent
- TENUREDescribes how you own a property. There are different types of tenure - freehold, leasehold, and commonhold.Read more about tenure in our glossary page.
Freehold
Key features
- Semi Detached House
- Three Bedrooms
- Two Reception Rooms
- Downstairs Cloakroom
- Single Garage
- Large Mature Garden
- Ample Off Street Parking
- Scope For Extension And Improvement (Subject To Planning Permission)
- No Forward Chain
- EPC - D, Virtual Tour Available
Description
Set on a generous plot along London Road in Old Fletton, this semi-detached home offers three bedrooms, ample off-street parking, a large mature garden, and a garage with power. With probate granted and no forward chain, the property provides excellent potential to modernise and extend (subject to planning permission), making it an ideal purchase for buyers seeking a home to grow into.
This attractive semi-detached home is set on a generous plot along London Road in Old Fletton, offering spacious accommodation, a large mature garden, ample off-street parking, and a garage with power. With probate already granted and the property available with no forward chain, it presents an excellent opportunity for buyers looking to move quickly. On entering the property, you are welcomed by an entrance hallway which gives access to a light-filled lounge at the front of the home. The lounge is a comfortable and inviting living space, ideal for relaxation or entertaining. To the rear, the separate dining room offers a bright outlook onto the garden, with direct access to the kitchen. The kitchen itself provides a practical layout with further scope to modernise. Completing the ground floor is a convenient WC. Upstairs, the landing leads to three well-proportioned bedrooms. The master bedroom and second bedroom are both generous doubles, while the third bedroom is a good-sized single. The family bathroom serves all three rooms. A useful storage cupboard is also located on this level. Outside, the property really comes into its own. To the front, there is ample off-street parking, while to the rear lies a large mature garden, offering plenty of space for outdoor enjoyment and the potential for landscaping or further development. A detached single garage with power provides additional storage or workshop space.
This home offers fantastic potential for improvement and the possibility of extension, subject to planning permission, making it an exciting prospect for buyers seeking to put their own stamp on a property.
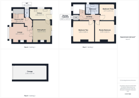
Entrance Hall - 1.48 x 3.47 (4'10" x 11'4") -
Wc - 1.48 x 0.78 (4'10" x 2'6") -
Lounge - 3.01 x 4.15 (9'10" x 13'7") -
Dining Room - 4.00 x 3.19 (13'1" x 10'5") -
Kitchen - 2.04 x 3.71 (6'8" x 12'2") -
Landing - 0.93 x 3.35 (3'0" x 10'11") -
Master Bedroom - 3.47 x 3.25 (11'4" x 10'7") -
Bedroom Two - 3.45 x 3.50 (11'3" x 11'5") -
Storage Cupboard - 0.97 x 1.07 (3'2" x 3'6") -
Bathroom - 1.76 x 2.17 (5'9" x 7'1") -
Bedroom Three - 2.71 x 2.51 (8'10" x 8'2") -
Garage - 2.46 x 5.57 (8'0" x 18'3") -
Epc - D - 62/75
Tenure - Freehold -
Important Legal Information - Construction: Standard
Accessibility / Adaptations: None
Building safety: No
Known planning considerations: None
Flooded in the last 5 years: No
Sources of flooding: n/a
Flood defences: No
Coastal erosion: No
On a coalfield: No
Impacted by the effect of other mining activity: No
Conservation area: No
Lease restrictions: No
Listed building: No
Permitted development: No
Holiday home rental: No
Restrictive covenant: No
Business from property NOT allowed: No
Property subletting: No
Tree preservation order: No
Other: No
Right of way public: No
Right of way private: No
Registered easements: No
Shared driveway: No
Third party loft access: No
Third party drain access: No
Other: No
Parking: Single Garage, Driveway Private, Off Street Parking
Solar Panels: No
Water: Mains
Electricity: Mains Supply
Sewerage: Mains
Heating: Gas Mains
Internet connection: TBC
Internet Speed: up to 67Mbps
Mobile Coverage: EE - Great, O2 - Great, Three - Great, Vodafone - Great
Disclaimer: If you are considering purchasing this property as a Buy-to-Let investment, please be advised that certain areas may be subject to Selective Licensing schemes. Prospective purchasers are strongly advised to carry out their own due diligence to ensure compliance with any applicable licensing requirements, including any associated fees or obligations.
All information is provided without warranty.
The information contained is intended to help you decide whether the property is suitable for you. You should verify any answers which are important to you with your property lawyer or surveyor or ask for quotes from the appropriate trade experts: builder, plumber, electrician, damp, and timber expert.
Brochures
London Road, Peterborough- COUNCIL TAXA payment made to your local authority in order to pay for local services like schools, libraries, and refuse collection. The amount you pay depends on the value of the property.Read more about council Tax in our glossary page.
- Band: B
- PARKINGDetails of how and where vehicles can be parked, and any associated costs.Read more about parking in our glossary page.
- Garage,Driveway,Off street
- GARDENA property has access to an outdoor space, which could be private or shared.
- Yes
- ACCESSIBILITYHow a property has been adapted to meet the needs of vulnerable or disabled individuals.Read more about accessibility in our glossary page.
- Ask agent
London Road, Peterborough
Add an important place to see how long it'd take to get there from our property listings.
__mins driving to your place
Get an instant, personalised result:
- Show sellers you’re serious
- Secure viewings faster with agents
- No impact on your credit score
Your mortgage
Notes
Staying secure when looking for property
Ensure you're up to date with our latest advice on how to avoid fraud or scams when looking for property online.
Visit our security centre to find out moreDisclaimer - Property reference 34225838. The information displayed about this property comprises a property advertisement. Rightmove.co.uk makes no warranty as to the accuracy or completeness of the advertisement or any linked or associated information, and Rightmove has no control over the content. This property advertisement does not constitute property particulars. The information is provided and maintained by City & County (UK) Ltd, Peterborough. Please contact the selling agent or developer directly to obtain any information which may be available under the terms of The Energy Performance of Buildings (Certificates and Inspections) (England and Wales) Regulations 2007 or the Home Report if in relation to a residential property in Scotland.
*This is the average speed from the provider with the fastest broadband package available at this postcode. The average speed displayed is based on the download speeds of at least 50% of customers at peak time (8pm to 10pm). Fibre/cable services at the postcode are subject to availability and may differ between properties within a postcode. Speeds can be affected by a range of technical and environmental factors. The speed at the property may be lower than that listed above. You can check the estimated speed and confirm availability to a property prior to purchasing on the broadband provider's website. Providers may increase charges. The information is provided and maintained by Decision Technologies Limited. **This is indicative only and based on a 2-person household with multiple devices and simultaneous usage. Broadband performance is affected by multiple factors including number of occupants and devices, simultaneous usage, router range etc. For more information speak to your broadband provider.
Map data ©OpenStreetMap contributors.






