Land for sale
Land Behind The Rose Inn, Hood Lane, Warrington, WA5 1EJ
- SIZE AVAILABLE
6,467 sq ft
601 sq m
- SECTOR
Land for sale
Key features
- Full Planning Approved
- Cleared Site
- 9 Unit Scheme
- No Section 106
- Ready to Build Out
- Freehold
- Popular Residential Area
- Level 0.2 Acre Plot
Description
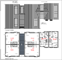
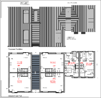
The permission is for the development of a scheme of 2 no. 3 bed units, 5 no. 2 bed units and 2 no. 1 bed units.
There are no Section 106 Conditions attached to the Planning Permission and access is via a direct Right of Way to and from Hood Lane, along with a designated parking area.
The site is highly visible from the A57 Sankey way, this affords an excellent advertising opportunity for the scheme, developer and builder, providing the ability to display to large volumes of passing traffic, recorded as high as 30,000 plus vehicles per day.
Various surveys and reports can be made available via direct enquiry to our offices.
The site extends to 0.2 Acres (0.08 Hectares).
The site is located on the part of Hood Lane to the south of the A57 Sankey Way, to the rear of the Rose Inn Public House.
The A57 Sankey Way runs parallel to the scheme and the site is virtually adjacent to David Lloyd Leisure and Tennis Centre. Asda Westbrook and Odeon Cinema are within easy reach 1 mile to the north.
The locality is a popular and well regarded residential neighbourhood and local amenities are plentiful, with Warrington Town Centre being just 2 miles to the east, en route is a modern Lidl and KFC drive-thru.
Warrington boasts three Railway Stations, including the new Chapelford junction, which is on the main Manchester - Liverpool line and this is within convenient walking distance to the scheme. The motorway network is also within easy reach, via the M62 junction 11 (2 miles), which connects easily to M57, M6 and M56 motorways.
Freehold.
Full Planning Permission has been granted for the erection of 9 no. units within a part two storey and part three storey building, with landscaped grounds, car parking and access from Hood Lane (Planning Number 2024/01307/FUL).
Interested parties can make their own enquiries via the attached link
Offers over £350,000 are invited. We are advised that VAT is applicable to the above asking price.
In accordance with Anti-Money Laundering Regulations, two forms of Identification and confirmation of the source of funding will be required from the successful purchaser.
Brochures
Land Behind The Rose Inn, Hood Lane, Warrington, WA5 1EJ
NEAREST STATIONS
Distances are straight line measurements from the centre of the postcode- Warrington West Station0.6 miles
- Warrington Bank Quay Station1.0 miles
- Sankey for Penketh Station1.0 miles
Notes
Disclaimer - Property reference 331488-1. The information displayed about this property comprises a property advertisement. Rightmove.co.uk makes no warranty as to the accuracy or completeness of the advertisement or any linked or associated information, and Rightmove has no control over the content. This property advertisement does not constitute property particulars. The information is provided and maintained by Morgan Williams Commercial LLP, Warrington. Please contact the selling agent or developer directly to obtain any information which may be available under the terms of The Energy Performance of Buildings (Certificates and Inspections) (England and Wales) Regulations 2007 or the Home Report if in relation to a residential property in Scotland.
Map data ©OpenStreetMap contributors.





