5 bedroom semi-detached house for sale
South View Road, Wadhurst, East Sussex

- PROPERTY TYPE
Semi-Detached
- BEDROOMS
5
- BATHROOMS
2
- SIZE
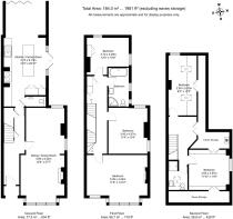
1,981 sq ft
184 sq m
- TENUREDescribes how you own a property. There are different types of tenure - freehold, leasehold, and commonhold.Read more about tenure in our glossary page.
Freehold
Key features
- Virtual video available on request
- 5 bedrooms and 2 bathrooms/shower rooms
- 28ft sitting/dining room
- 30ft kitchen/breakfast/family room
- Cloakroom/wc
- Off road parking
- West facing garden
- Well presented with period features throughout
- Village location
Description
Situation: The property is situated in a convenient residential area in the much sought-after village of Wadhurst and close to the recreation ground in Sparrows Green. The village High Street is about a mile distant and offers an excellent range of shops and services for everyday needs including a Jempson's Local store and post office, cafés, delicatessen, butcher, baker, pharmacy, bookshop, art gallery, florist, public houses, as well as a doctor's surgery, dentist, state and independent primary schools and the well regarded Uplands Community College and Sports Centre.
For the commuter, Wadhurst mainline station is approximately 1¼ miles distant and provides a regular service to London Bridge/Charing Cross/Cannon Street in just over an hour. There is a regular bus service and the A21 is also within easy reach providing a direct link to the M25 (junction 5) and the coast. Gatwick Airport is about 40 miles to the west, the Eurotunnel terminal at Folkestone is about 46 miles to the east and central London is about 50 miles away. The regional centre of Tunbridge Wells is just 6 miles distant and provides a comprehensive range of amenities including the Royal Victoria Shopping centre, cinema complex and theatres.
The beautiful surrounding countryside is a designated Area of Outstanding Natural Beauty and includes Bewl Water Reservoir, reputedly the largest area of inland water in the South East, where a wide range of water sports can be enjoyed.
Description: 2 Gloucester Villas is a substantial Edwardian semi-detached house with attractive external elevations of brick with a tile-hung bay beneath a tiled roof. The property is well presented throughout and benefits from an abundance of period features including sash windows, cornicing, fireplaces and lovely high ceilings. The house has been well maintained and much improved by the current owners, including a new central heating system and an excellent ground floor extension to create a superb, open plan kitchen/breakfast/family room.
The accommodation is arranged over three floors and includes on the ground floor, a spacious entrance hall with solid oak flooring (which runs through to the kitchen and sitting room) leading to an elegant, open plan, triple aspect siting/dining room room, which extends to nearly 28ft and has a lovely bay window to the front and an open fireplace fitted with a wood burner and further feature brick fireplace in the dining area. The hall leads to a cloakroom/WC and into a lovely kitchen/breakfast/family room, which extends to nearly 30ft and has an extensive range of Neptune shaker wall and base units with Corian work surfaces, large island with breakfast bar, Aga with tiled splash backs, and integrated appliances. French doors lead out to a side terrace and there are with wall-to-wall ceiling windows to the rear giving lots of natural light with bi-folding doors giving access to a rear terrace and the garden. On the first floor there are three bedrooms - the main bedroom has an attractive period fireplace with tiled inset and marble mantle and surround and a bay window - and a well-appointed family bathroom with a freestanding bath and separate shower cubicle. On the second floor there are two further bedrooms and a shower room, and there is plenty of loft storage.
Outside, to the front of the property there is off road parking with an electric vehicle charger installed and an area of front garden bordered with a brick wall and planted with mature shrubs, and a path leading to the front door. Close board side gates give access to the rear garden, where there is large terrace that wraps around the house, with steps leading up to the west facing garden, which is mainly laid and planted with a variety of mature shrubs and trees. The garden has a decked terrace, ideal for outdoor entertaining, a children's play area with space for a trampoline, a large garden shed and the garden is bordered with mature mixed hedging and fencing.
Services: Mains water, gas and electricity
EPC rating: D
Local authority: Wealden District Council
Council tax rating: Band E (£3,151.86 per annum)
Brochures
Brochure & floorplan- COUNCIL TAXA payment made to your local authority in order to pay for local services like schools, libraries, and refuse collection. The amount you pay depends on the value of the property.Read more about council Tax in our glossary page.
- Ask agent
- PARKINGDetails of how and where vehicles can be parked, and any associated costs.Read more about parking in our glossary page.
- Off street,EV charging
- GARDENA property has access to an outdoor space, which could be private or shared.
- Front garden,Private garden,Rear garden,Terrace
- ACCESSIBILITYHow a property has been adapted to meet the needs of vulnerable or disabled individuals.Read more about accessibility in our glossary page.
- Ask agent
South View Road, Wadhurst, East Sussex
Add an important place to see how long it'd take to get there from our property listings.
__mins driving to your place
Get an instant, personalised result:
- Show sellers you’re serious
- Secure viewings faster with agents
- No impact on your credit score
Your mortgage
Notes
Staying secure when looking for property
Ensure you're up to date with our latest advice on how to avoid fraud or scams when looking for property online.
Visit our security centre to find out moreDisclaimer - Property reference GRL250115. The information displayed about this property comprises a property advertisement. Rightmove.co.uk makes no warranty as to the accuracy or completeness of the advertisement or any linked or associated information, and Rightmove has no control over the content. This property advertisement does not constitute property particulars. The information is provided and maintained by Green Lizard, Wadhurst. Please contact the selling agent or developer directly to obtain any information which may be available under the terms of The Energy Performance of Buildings (Certificates and Inspections) (England and Wales) Regulations 2007 or the Home Report if in relation to a residential property in Scotland.
*This is the average speed from the provider with the fastest broadband package available at this postcode. The average speed displayed is based on the download speeds of at least 50% of customers at peak time (8pm to 10pm). Fibre/cable services at the postcode are subject to availability and may differ between properties within a postcode. Speeds can be affected by a range of technical and environmental factors. The speed at the property may be lower than that listed above. You can check the estimated speed and confirm availability to a property prior to purchasing on the broadband provider's website. Providers may increase charges. The information is provided and maintained by Decision Technologies Limited. **This is indicative only and based on a 2-person household with multiple devices and simultaneous usage. Broadband performance is affected by multiple factors including number of occupants and devices, simultaneous usage, router range etc. For more information speak to your broadband provider.
Map data ©OpenStreetMap contributors.




