
SITE WITH PLANNING x 9 HOUSES | BRIDGWATER
- PROPERTY TYPE
Plot
- BEDROOMS
27
- BATHROOMS
18
- SIZE
Ask agent
Key features
- FOR SALE BY ONLINE AUCTION
- WEDNESDAY 11TH FEBRUARY 2026
- VIDEO TOUR NOW ONLINE
- VIEWINGS – REFER TO DETAILS
- LEGAL PACK COMPLETE
- FEBRUARY LIVE ONLINE AUCTION
- FREEHOLD DEVELOPMENT SITE
- PLANNING GRANTED | 1.26 ACRES
- GDV circa £2.865m | 9 X HOUSES
- EXTENDED 8 WEEK COMPLETION
Description
For Sale By Live Online Auction - ADDRESS | Development Site @ Carnival Court, Taunton Road Bridgwater, Somerset TA6 6AF
Lot Number 23
*** PLEASE NOTE NEW AUCTION START TIME - NOW 12:00 Noon ***
The Live Online Auction is on Wednesday 11th February 2026 @ 12:00 Noon
Registration Deadline is on Friday 6th February 2026 @ 16:00
The Auction will be streamed LIVE ONLINE via the Hollis Morgan website & you can choose to bid by telephone, proxy or via your computer.
Registration is a simple online process – please visit the Hollis Morgan auction website and click “REGISTER TO BID”
The Site - Freehold site of approximately 1.26 acres with DETAILED PLANNING GRANTED for 9 x 3 bedroom houses at the rear of the recently built apartments facing Taunton Road.
Sold with Vacant Possession
Tenure - Freehold
Utilities, Rights & Restrictions - Please refer to the Legal Pack
Flood Risk - Please refer to the Legal Pack
The Opportunity - DEVELOPMENT SITE | PLANNING GRANTED
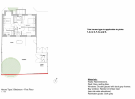
Detailed Planning ( 08/21/00077 Somerset Council ) has been granted for the demolition of the existing structures and construction of a modern scheme of 9 x 3 bedroom dwellings ( ranging 968 SqFt to 1054 Sq Ft ) with parking and gardens and a proposed GDV circa. £2.865m.
The site has rights of access through the car park of the existing apartment block. See approved plans and Legal Pack to see extent of ownership and rights.
Proposed Schedule Of Development - Unit 1 – 3 Bedroom Detached House | 1054 Sq Ft | Parking | Garden
Unit 2 – 3 Bedroom Detached House | 1054 Sq Ft | Parking | Garden
Unit 3 – 3 Bedroom Semi Detached House | 1054 Sq Ft | Parking | Garden
Unit 4 – 3 Bedroom Semi Detached House | 968 Sq Ft | Parking | Garden
Unit 5 – 3 Bedroom Semi Detached House | 968 Sq Ft | Parking | Garden
Unit 6 - 3 Bedroom Semi Detached House | 1054 Sq Ft | Parking | Garden
Unit 7 – 3 Bedroom Detached House| 1054 Sq Ft | Parking | Garden
Unit 8 – 3 Bedroom Detached House | 1054 Sq Ft | Parking | Garden
Unit 9 – 3 Bedroom Detached House | 1054 Sq Ft | Parking | Garden
Proposed Gdv Schedule - Unit 1 – £325,000
Unit 2 – £325,000
Unit 3 – £315,000
Unit 4 – £305,000
Unit 5 – £305,000
Unit 6 – £315,000
Unit 7 – £325,000
Unit 8 – £325,000
Unit 9 – £325,000
Total - £2,845,000
For further information on GDV and sales advice please contact the Hollis Morgan New Homes Team.
Planning Granted - Full details of the proposed scheme and drawings can be downloaded with the online legal pack.
Type: Full / Detailed Planning Permission
Local Authority: Somerset Council
Reference: 08/21/00077
Location: Land To The Rear Of, Carnival Court, Taunton Road, Bridgwater, Somerset, TA6
Proposal: Erection of 9 no. dwellings with associated access, amenity space and parking on site of existing outbuildings to be demolished (Revised
Description)
Registered Date: 23/06/2021
Decision: Granted Permission
Decision Date: 29/08/2025
Planning Information - Full details of the proposed scheme and drawings can be downloaded with the online legal pack.
Location - The property is situated close to the centre of the market town of Bridgwater, with local amenities close to hand including Bridgwater Railway Station. The town centre offers an extensive range of services including retail, leisure and educational facilities. Access to the M5 motorway can be found via junctions 23 and 24. There are regular bus services to Taunton, Weston-super-Mare and Burnham-on-Sea plus a daily coach to London Hammersmith.
Existing Car Park - The property for sale does not include the existing car park. All rights for access are set out within the legal pack.
Solicitors & Completion - David Smithen
Shakespeare Martineau
david.
EXTENDED COMPLETION
Completion is set for 8 weeks or earlier subject to mutual consent.
Legal Pack Complete - We have been informed by our client’s solicitors that the legal pack for this lot is now complete.
Should any last minute addendums occur you will be automatically notified by email.
If the vendors have indicated they are willing to consider pre-auction offers, now is the time to submit your offer by completing the pre-auction offer form.
Important Auction Information - VIEWINGS
Please submit a viewing request online and we will contact you to organise an appointment.
We will send you an email and text to confirm the appointment time and the full property address.
Viewings are supervised by a member of the Hollis Morgan Auction team who will meet you at the property.
MATERIAL INFORMATION
Information including utilities, Electricity supply, Water supply, Sewerage, Heating, Broadband, Mobile signal / coverage, Parking, Building safety, Restrictions and rights, Rights and easements, Flood risk, Erosion risk, Coastal erosion risk, Planning permission for proposal for development, Property accessibility / adaptations, Coalfield or mining area all of which will be supplied within the legal pack that can be accessed for free via the Hollis Morgan website or via your EIG account.
ONLINE LEGAL PACKS
Digital Copies of the Online legal pack can be downloaded Free of Charge.
Please visit the Hollis Morgan Website and select the chosen lot from our Current Auction List.
Press the GREEN button to "Download Legal Packs" For the first visit you will be required to register simply with your email and a password.
Having set up your account you can download legal packs or if they are not yet available, they will automatically be sent to you when we receive them.
You will be automatically updated by email if any new information is added.
There will be a note added to the list to confirm AUCTION PACK NOW COMPLETE when no further information is due to be added.
*** STAY UPDATED *** By registering for the legal pack we can ensure you are kept updated on any changes to this Lot in the build up to the sale.
BUYER’S PREMIUM
Please be aware all purchasers are subject to a £1,500 + VAT (£1,800 inc VAT) buyer's premium which is ALWAYS payable upon exchange of contracts whether the sale is concluded before, during or after the auction date.
GUIDE PRICE
An indication of the seller's current minimum acceptable price at auction. The guide price or range of guide prices is given to assist consumers in deciding whether to pursue a purchase. It is usual, but not always the case, that a provisional reserve range is agreed between the seller and the auctioneer at the start of marketing. As the reserve is not fixed at this stage and can be adjusted by the seller at any time up to the day of the auction in the light of interest shown during the marketing period, a guide price is issued. This guide price can be shown in the form of a minimum and maximum price range within which an acceptable sale price (reserve) would fall, or as a single price figure within 10% of which the minimum acceptable price (reserve) would fall. A guide price is different to a reserve price (see separate definition). Both the guide price and the reserve price can be subject to change up to and including the day of the auction.
RESERVE PRICE
The seller's minimum acceptable price at auction and the figure below which the auctioneer cannot sell. The reserve price is not disclosed and remains confidential between the seller and the auctioneer. Both the guide price and the reserve price can be subject to change up to and including the day of the auction.
PRE AUCTION OFFERS
Some vendors are willing to consider offers prior to the auction.
Pre auction offers can ONLY be submitted by completing the online PRE AUCTION OFFER FORM
The form can be found on the Hollis Morgan website on the individual auction property listing.
Please note offers will not be considered until you have inspected the COMPLETE LEGAL PACK once it has been released.
There will be a note added to the list to confirm AUCTION PACK NOW COMPLETE when our client’s solicitor informs us no further information is due to be added.
In the event of an offer being accepted the property will only be removed from the online auction and viewings stopped once contracts have successfully EXCHANGED subject to the standard auction terms and payment of the buyer’s premium (£1,800 Inclusive of VAT) to Hollis Morgan.
Contracts can be exchanged via the solicitors or at the Hollis Morgan offices by appointment only.
REGISTRATION PROCESS
The registration process is extremely simple – visit the Hollis Morgan auction website and click on the “Register to Bid” button.
The “Register to Bid” button can be found on the auction home page or on the individual lot listings.
Please note this function is not available on Rightmove or Zoopla.
Stage 1 – Complete the Online Bidding Form
Stage 2 – Upload your certified ID
Stage 3 – Invitation to bid
Stage 4 – Pay your security deposit (£6,800)
You are now ready to bid – Good luck!
If your bid is successful, the balance of the deposit monies must be transferred to our client account within 24 hours of the auction sale.
If you are unsuccessful at the auction your holding deposit will be returned within 48 hours.
SURVEYS AND VALUATIONS
If you would like to arrange a survey or mortgage valuation of this Lot BEFORE the auction, please instruct your appointed surveyor to contact Hollis Morgan and we will arrange access for them to inspect the property. Please note that buyers CANNOT attend the surveys and the surveyors are responsible for collecting and returning keys to the Hollis Morgan offices in Clifton.
AUCTION FINANCE & BRIDGING LOANS
Some properties may require specialist auction finance- please contact Hollis Morgan for access to expert advice and whole of market rates from our independent brokers.
Hollis Morgan may receive introductory fees for this service from the broker.
AUCTION BUYER’S GUIDE VIDEO
We have short video guides for both buying and selling by Public Auction on the Hollis Morgan Website. If you have any further questions regarding the process, please don’t hesitate to contact Auction HQ.
2025 CHARITY OF THE YEAR
Hollis Morgan is supporting Uncle Pauls Chilli Charity empowering socially disadvantaged people with barriers to learning &/or disabilities based in Butcombe, North Somerset, our land overlooks the Mendip Hills and Blagdon lake. There are three main areas of focus at Uncle Paul’s Chilli Charity Education, Wellbeing and Social Prescribing – visit for more details or the Hollis Morgan Charity Page of our website.
AUCTION PROPERTY DETAILS DISCLAIMER
Hollis Morgan endeavour to make our sales details clear, accurate and reliable in line with the Consumer Protection from Unfair Trading Regulations 2008 but they should not be relied on as statements or representations of fact, and they do not constitute any part of an offer or contract. All Hollis Morgan references to planning, tenants, boundaries, potential development, tenure etc is to be superseded by the information contained in the legal pack. It should not be assumed that this property has all the necessary Planning, Building Regulation, or other consents. Any services, appliances and heating system(s) listed have not been checked or tested. Please note that in some instances the photographs may have been taken using a wide-angle lens. The seller does not make any representation or give any warranty in relation to the property, and we have no authority to do so on behalf of the seller.
Brochures
SITE WITH PLANNING x 9 HOUSES | BRIDGWATERBrochureSITE WITH PLANNING x 9 HOUSES | BRIDGWATER
NEAREST STATIONS
Distances are straight line measurements from the centre of the postcode- Bridgwater Station0.5 miles
Notes
Disclaimer - Property reference 34226605. The information displayed about this property comprises a property advertisement. Rightmove.co.uk makes no warranty as to the accuracy or completeness of the advertisement or any linked or associated information, and Rightmove has no control over the content. This property advertisement does not constitute property particulars. The information is provided and maintained by Hollis Morgan Auctions Bristol & West Country, Bristol. Please contact the selling agent or developer directly to obtain any information which may be available under the terms of The Energy Performance of Buildings (Certificates and Inspections) (England and Wales) Regulations 2007 or the Home Report if in relation to a residential property in Scotland.
Auction Fees: The purchase of this property may include associated fees not listed here, as it is to be sold via auction. To find out more about the fees associated with this property please call Hollis Morgan Auctions Bristol & West Country, Bristol on 0117 463 0219.
*Guide Price: An indication of a seller's minimum expectation at auction and given as a Guide Price or a range of Guide Prices. This is not necessarily the figure a property will sell for and is subject to change prior to the auction.
Reserve Price: Each auction property will be subject to a Reserve Price below which the property cannot be sold at auction. Normally the Reserve Price will be set within the range of Guide Prices or no more than 10% above a single Guide Price.
Map data ©OpenStreetMap contributors.







