Wadhurst Road, Mark Cross

- PROPERTY TYPE
House
- BEDROOMS
6
- BATHROOMS
3
- SIZE
5,702 sq ft
530 sq m
- TENUREDescribes how you own a property. There are different types of tenure - freehold, leasehold, and commonhold.Read more about tenure in our glossary page.
Freehold
Key features
- Superb Southerly Views
- Set down a long private lane
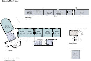
- Main house 5702 sq. ft
- Indoor Pool Complex of 2052 sq. ft
- Beautiful gardens and grounds
- Useful Outbuildings
- Wadhurst Station 2.8 miles
- In all about 24 acres
- Attached Cottage available by separate negotiation
Description
**Guide Price £2,000,000 - £2,250,000**
An opportunity to acquire a sensational country house (unlisted) with influences from the Arts and Crafts period, situated in a superb rural location with glorious views and beautiful mature grounds; indoor pool complex and range of outbuildings. In all approaching 24 acres.
Description
Bassetts has been a much-loved family home for the past forty five years and is offered for sale for the first time since 1980. This superb, unlisted period home has a wealth of charm and character with influences from the Arts and Crafts period. Features include leaded light windows, oak flooring to principal rooms, intricate decorative ceiling cornicing, impressive fireplaces and oak panelling. There is also Bassetts Cottage, an attached, three bedroom cottage, available by separate negotiation.
The accommodation is arranged as follows:
• Reception hall with cloakroom and wine store.
• Impressive sitting room with feature open fireplace, oak flooring, ornate ceiling, broad bay window to the side and double doors opening to the garden.
• Elegant dining room with fireplace, parquet flooring and attractive aspect over the garden.
• Kitchen/breakfast room with parquet flooring and a good range of cupboards and a peninsular area sub-dividing the kitchen from the breakfast room which has an open fireplace with brick and tile surround. Windows and doors to the garden. There is a study to one side which is dual aspect with an ornate stone fireplace and oak panelling incorporating book shelving. There is also a useful utility/boot room.
• From the utility room there are stairs down to an impressive indoor swimming pool complex on the lower ground floor with a 34 ft swimming pool, jacuzzi, shower and changing room.
• On the first floor the principal bedroom has an attractive barrelled ceiling and a large bay window affording a delightful view across the gardens and to the south. There is a large en suite bathroom/shower room.
• The guest suite also has a barrelled ceiling and a separate living room/bedroom five for guests.
• There are three further bedrooms all with views over the grounds, a family bathroom, separate shower room and a smaller second floor attic room.
Outside
Bassetts is set at the end of a long private lane (about 0.6 of a mile). The property is approached via an archway under a pretty clock tower. There is a large private circular driveway surrounded by mature trees and shrubs and there is garaging for 4 to 5 cars. The formal gardens at the rear of the property include mature rhododendrons, acers, azaleas, and hydrangeas with level areas of lawn.
There is an ancient woodland, which extends to the south and the east and a disused tennis court. To the front of the house is a sheltered flagstone courtyard. The south side, beyond the formal garden is mostly pasture with wild flowers, a waterfall and stream.
Outbuildings include some former hoppers’ huts, which have a separate vehicular access, and may have scope to provide additional office/studio space, subject to planning consents.
Bassetts Cottage, which is available by separate negotiation, is attached with its own access, and enjoys far-reaching views across the surrounding countryside. It comprises three double bedrooms, two reception rooms, bathroom, kitchen and cloakroom.
Brochures
Particulars- COUNCIL TAXA payment made to your local authority in order to pay for local services like schools, libraries, and refuse collection. The amount you pay depends on the value of the property.Read more about council Tax in our glossary page.
- Band: F
- PARKINGDetails of how and where vehicles can be parked, and any associated costs.Read more about parking in our glossary page.
- Yes
- GARDENA property has access to an outdoor space, which could be private or shared.
- Yes
- ACCESSIBILITYHow a property has been adapted to meet the needs of vulnerable or disabled individuals.Read more about accessibility in our glossary page.
- Ask agent
Wadhurst Road, Mark Cross
Add an important place to see how long it'd take to get there from our property listings.
__mins driving to your place
Affordability



Get an instant, personalised result:
- Show sellers you’re serious
- Secure viewings faster with agents
- No impact on your credit score
Notes
Staying secure when looking for property
Ensure you're up to date with our latest advice on how to avoid fraud or scams when looking for property online.
Visit our security centre to find out moreDisclaimer - Property reference TUN240023. The information displayed about this property comprises a property advertisement. Rightmove.co.uk makes no warranty as to the accuracy or completeness of the advertisement or any linked or associated information, and Rightmove has no control over the content. This property advertisement does not constitute property particulars. The information is provided and maintained by Batcheller Monkhouse, Tunbridge Wells. Please contact the selling agent or developer directly to obtain any information which may be available under the terms of The Energy Performance of Buildings (Certificates and Inspections) (England and Wales) Regulations 2007 or the Home Report if in relation to a residential property in Scotland.
*This is the average speed from the provider with the fastest broadband package available at this postcode. The average speed displayed is based on the download speeds of at least 50% of customers at peak time (8pm to 10pm). Fibre/cable services at the postcode are subject to availability and may differ between properties within a postcode. Speeds can be affected by a range of technical and environmental factors. The speed at the property may be lower than that listed above. You can check the estimated speed and confirm availability to a property prior to purchasing on the broadband provider's website. Providers may increase charges. The information is provided and maintained by Decision Technologies Limited. **This is indicative only and based on a 2-person household with multiple devices and simultaneous usage. Broadband performance is affected by multiple factors including number of occupants and devices, simultaneous usage, router range etc. For more information speak to your broadband provider.
Map data ©OpenStreetMap contributors.





