
3 bedroom detached house for sale
Ramsley, South Zeal, Okehampton

- PROPERTY TYPE
Detached
- BEDROOMS
3
- BATHROOMS
1
- SIZE
Ask agent
- TENUREDescribes how you own a property. There are different types of tenure - freehold, leasehold, and commonhold.Read more about tenure in our glossary page.
Freehold
Key features
- Sitting Room
- Dining Room
- Fitted Kitchen
- Three Bedrooms
- Bathroom and Cloakroom
- Garden And Off Road Parking
- No Chain
- Freehold
- Council Tax Band D
- EPC Band E
Description
No Chain. Freehold. Council Tax Band D. EPC Band E
Situation - Pound House is well situated within the village, being within easy walking distance of South Zeal, an attractive rural community, situated within the northern boundaries of the Dartmoor National Park. The village amenities include two well patronised public houses and an excellent primary school. There are also regular bus services to and from Exeter and access can be gained to the A30 dual carriageway at nearby Whiddon Down. The former market town of Okehampton is some 5 miles distant and offers an excellent range of amenities including 3 supermarkets, nationally and locally owned shops, hospital, and leisure centre situated in the attractive setting of Simmons Park. There is schooling for all ages to 'A' level standard and various sports and leisure facilities, including thriving rugby and football clubs as well as tennis, squash and bowls. The Dartmoor National Park which is easily accessible from South Zeal by footpaths and bridleways offers hundreds of square miles of unspoilt scenery with many opportunities for riding and walking.
Description - Pound Cottage has undergone a complete renovation within recent years. The cottage still retains it's original charm, offering exposed timbers and window sills, together with an inglenook fireplace in the sitting room. This is well complemented by modern comforts such as double glazed windows and oil fired central heating, with radiators to the first floor and underfloor engineered oak floors to the ground floor. The kitchen has been attractively fitted with a range of integral appliances, whilst a new cloakroom and bathroom to the first floor are also newly completed. The property is offered with no ongoing chain and also boasts off road parking, garden and a store shed.
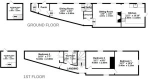
Accommodation - Via open covered porch and stable door to ENTRANCE LOBBY: Engineered oak floor with underfloor heating. Door to CLOAKROOM: Vanity wash basin, WC, opaque window to front. Engineered oak floor with underfloor heating. DINING ROOM: Engineered oak floor with underfloor heating. Fitted wall lights, two double glazed windows to front aspect, staircase to first floor, under stairs storage cupboard. Step down to SITTING ROOM: Two double glazed windows to front aspect (one with window seat), fitted wall lights engineered oak floor with underfloor heating, feature granite fireplace with timber mantle (unused). Access to KITCHEN: Attractively fitted with a range of modern, wall and base cupboards with wood block surfaces over. Inset Belfast sink with mixer tap over, integral dishwasher, washing machine and fridge freezer. Integral electric oven and hob with stainless steel extractor hood. Larder cupboard housing electric metres, wall mounted 'Grant' oil fired central heating boiler, two double glazed windows to front aspect. Engineered oak floor with underfloor heating, French doors to garden.
FIRST FLOOR LANDING. Two windows to rear aspect, radiator, stripped wood floors, wall lights, doors to, BEDROOM 1: Stripped wood floors, dual aspect double glazed windows, access to loft space. BEDROOM 2: Double glazed windows to front aspect, access to lost space, exposed timber, fitted bookshelves. BEDROOM 3: Two double glazed windows to front aspect, fitted wall lights, stripped wood floor. Fitted airing cupboard housing hot water cylinder and shelving. BATHROOM: newly fitted white suite comprising, vanity wash basin, WC, shower/bath with mains fed mixer rain shower over and screen door. Opaque window to front, part tiled walls, heated towel radiator.
Outside - The cottage has a small concrete frontage with steps rising to the front entrance door. The garden lies to the left hand side of the property and can be accessed via French doors from the kitchen or via a pedestrian gate from the village Road. Adjoining the side of the house is a newly paved patio seating area with granite wall surrounds, external lighting and water tap. Granite steps from here, lead up to a lawned garden area which also houses the oil tank, screened by wooden fencing. Just beyond is an off-road parking area for one vehicle, bordered by stone walling and hedgerow. To the right of the cottage, is a two storey stone and block built SHED: (9' 2" x 9' 6") on two floors with pedestrian door and internal staircase to a second floor.
Services - Mains electricity, water and drainage. Oil fired central heating.
Broadband Coverage: Superfast available up to 39 Mbps (Ofcom)
Mobile Coverage: All providers limited indoors, EE, Three and 02 likely outdoors (Ofcom)
Directions - For SAT NAV purpose the postcode is EX20 2LB
what3words sharpness.stags.regarding.
Brochures
Ramsley, South Zeal, OkehamptonBrochure- COUNCIL TAXA payment made to your local authority in order to pay for local services like schools, libraries, and refuse collection. The amount you pay depends on the value of the property.Read more about council Tax in our glossary page.
- Band: D
- PARKINGDetails of how and where vehicles can be parked, and any associated costs.Read more about parking in our glossary page.
- Yes
- GARDENA property has access to an outdoor space, which could be private or shared.
- Yes
- ACCESSIBILITYHow a property has been adapted to meet the needs of vulnerable or disabled individuals.Read more about accessibility in our glossary page.
- Ask agent
Ramsley, South Zeal, Okehampton
Add an important place to see how long it'd take to get there from our property listings.
__mins driving to your place
Get an instant, personalised result:
- Show sellers you’re serious
- Secure viewings faster with agents
- No impact on your credit score
Your mortgage
Notes
Staying secure when looking for property
Ensure you're up to date with our latest advice on how to avoid fraud or scams when looking for property online.
Visit our security centre to find out moreDisclaimer - Property reference 34226912. The information displayed about this property comprises a property advertisement. Rightmove.co.uk makes no warranty as to the accuracy or completeness of the advertisement or any linked or associated information, and Rightmove has no control over the content. This property advertisement does not constitute property particulars. The information is provided and maintained by Stags, Okehampton. Please contact the selling agent or developer directly to obtain any information which may be available under the terms of The Energy Performance of Buildings (Certificates and Inspections) (England and Wales) Regulations 2007 or the Home Report if in relation to a residential property in Scotland.
*This is the average speed from the provider with the fastest broadband package available at this postcode. The average speed displayed is based on the download speeds of at least 50% of customers at peak time (8pm to 10pm). Fibre/cable services at the postcode are subject to availability and may differ between properties within a postcode. Speeds can be affected by a range of technical and environmental factors. The speed at the property may be lower than that listed above. You can check the estimated speed and confirm availability to a property prior to purchasing on the broadband provider's website. Providers may increase charges. The information is provided and maintained by Decision Technologies Limited. **This is indicative only and based on a 2-person household with multiple devices and simultaneous usage. Broadband performance is affected by multiple factors including number of occupants and devices, simultaneous usage, router range etc. For more information speak to your broadband provider.
Map data ©OpenStreetMap contributors.










