
2 bedroom end of terrace house for sale
Stonefield Terrace, Churwell, Morley, Leeds, LS27

- PROPERTY TYPE
End of Terrace
- BEDROOMS
2
- BATHROOMS
1
- SIZE
1,101 sq ft
102 sq m
- TENUREDescribes how you own a property. There are different types of tenure - freehold, leasehold, and commonhold.Read more about tenure in our glossary page.
Freehold
Key features
- End-terrace back-to-back property
- Two double bedrooms
- Modern shower room
- Cellar storage
- Gated garden to the front
- Council Tax Band A
Description
A fabulous opportunity to purchase a stone-built end terrace property with accommodation arranged over three floors plus a cellar. Ideally located just a short walk from Churwell Park and with good local amenities and excellent transport links it is likely to be a very popular property and a viewing is essential to fully appreciate everything this fabulous property has to offer.
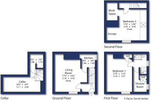
The ground floor accommodation comprises, - front entrance hall with stairs rising to the first floor, spacious living room with a stone floor and exposed brickwork, kitchen with fitted units, integrated fridge, electric hob, electric oven and provides access to the cellar.
To the upper floors there is a double bedroom on each floor, one has a useful built-in storage cupboard and the bedroom to the second floor has a thoughtfully created workspace which is ideal for anyone wanting to work from home. The modern shower room is conveniently positioned on the first floor having a three-piece suite and a useful linen cupboard.
The property benefits from having a good-sized cellar that offers a useful storage space, complete with fitted light, power and plumbing for a washing machine it has clear potential for further development.
Externally there is a gated yard to the front of the property, the garden is low maintenance and provides an ideal space for relaxing or enjoying a barbecue.
The property is located in the popular area of Churwell which has a good range of shops and local amenities. Morley town centre is just a short drive away and offers a wider variety of shops, restaurants and supermarkets. The property is ideally located for local commuting with convenient motorway access and the local train stations run regular services to Leeds and other major cities.
Local Authority, Council Tax Band
Leeds City Council
Council Tax Band A
Tenure, Services & Parking
Freehold
All mains services; central heating
On-street parking only
Brochures
Particulars- COUNCIL TAXA payment made to your local authority in order to pay for local services like schools, libraries, and refuse collection. The amount you pay depends on the value of the property.Read more about council Tax in our glossary page.
- Band: A
- PARKINGDetails of how and where vehicles can be parked, and any associated costs.Read more about parking in our glossary page.
- Ask agent
- GARDENA property has access to an outdoor space, which could be private or shared.
- Yes
- ACCESSIBILITYHow a property has been adapted to meet the needs of vulnerable or disabled individuals.Read more about accessibility in our glossary page.
- No wheelchair access
Stonefield Terrace, Churwell, Morley, Leeds, LS27
Add an important place to see how long it'd take to get there from our property listings.
__mins driving to your place
Get an instant, personalised result:
- Show sellers you’re serious
- Secure viewings faster with agents
- No impact on your credit score
Your mortgage
Notes
Staying secure when looking for property
Ensure you're up to date with our latest advice on how to avoid fraud or scams when looking for property online.
Visit our security centre to find out moreDisclaimer - Property reference MOR250173. The information displayed about this property comprises a property advertisement. Rightmove.co.uk makes no warranty as to the accuracy or completeness of the advertisement or any linked or associated information, and Rightmove has no control over the content. This property advertisement does not constitute property particulars. The information is provided and maintained by Dacre Son & Hartley, Morley. Please contact the selling agent or developer directly to obtain any information which may be available under the terms of The Energy Performance of Buildings (Certificates and Inspections) (England and Wales) Regulations 2007 or the Home Report if in relation to a residential property in Scotland.
*This is the average speed from the provider with the fastest broadband package available at this postcode. The average speed displayed is based on the download speeds of at least 50% of customers at peak time (8pm to 10pm). Fibre/cable services at the postcode are subject to availability and may differ between properties within a postcode. Speeds can be affected by a range of technical and environmental factors. The speed at the property may be lower than that listed above. You can check the estimated speed and confirm availability to a property prior to purchasing on the broadband provider's website. Providers may increase charges. The information is provided and maintained by Decision Technologies Limited. **This is indicative only and based on a 2-person household with multiple devices and simultaneous usage. Broadband performance is affected by multiple factors including number of occupants and devices, simultaneous usage, router range etc. For more information speak to your broadband provider.
Map data ©OpenStreetMap contributors.





