Land for sale
Portland Street, Kirkby-in-Ashfield, Nottingham, Nottinghamshire, NG17
- PROPERTY TYPE
Land
- SIZE
Ask agent
Key features
- Approved planning permission granted
- Modern detached two-bedroom bungalow
- Versatile open plan living area
- Generous plot for landscaping
- Private front parking space
- Walking distance to schools
- Close to scenic parks
- Well-connected urban location
- Excellent transport links nearby
- Ideal for self-build enthusiasts
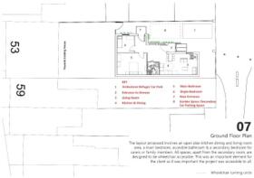
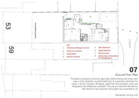
Description
AUCTION AUCTION AUCTION Looking for a plot of land to build your very own property? Then look no further than this plot which has approved planning permission for a detached bungalow with two bedrooms.
IMPORTANT NOTE TO POTENTIAL PURCHASERS & TENANTS:
We endeavour to make our particulars accurate and reliable, however, they do not constitute or form part of an offer or any contract and none is to be relied upon as statements of representation or fact. The services, systems and appliances listed in this specification have not been tested by us and no guarantee as to their operating ability or efficiency is given. All photographs and measurements have been taken as a guide only and are not precise. Floor plans where included are not to scale and accuracy is not guaranteed. If you require clarification or further information on any points, please contact us, especially if you are traveling some distance to view. POTENTIAL PURCHASERS: Fixtures and fittings other than those mentioned are to be agreed with the seller. POTENTIAL TENANTS: All properties are available for a minimum length of time, with the exception of short term accommodation. Please contact the branch for details. A security deposit of at least one month’s rent is required. Rent is to be paid one month in advance. It is the tenant’s responsibility to insure any personal possessions. Payment of all utilities including water rates or metered supply and Council Tax is the responsibility of the tenant in most cases.
KIA250354/2
Description
Presenting an exceptional opportunity to acquire a plot of land to the rear of 53 Portland Street, situated in an attractive urban area, conveniently located near schools and parks. This land comes with approved planning permission for the construction of a modern detached bungalow, making it the ideal proposition for self-build enthusiasts and discerning investors alike. The consented plans outline a thoughtfully designed two-bedroom bungalow, perfectly blending contemporary living with functional space. The future property will benefit from a versatile open plan living, dining, and kitchen area, giving an inviting and comfortable atmosphere—perfect for both everyday living and entertaining guests. The bungalow will feature a well-appointed bathroom, conveniently serving both bedrooms. To the front of the property, parking will be provided, ensuring added convenience for residents and guests. The generous plot provides ample room for landscaping and personalisation to (truncated)
AUCTION INFORMATION
This property is for sale by the Modern Method of Auction, meaning the buyer and seller are to Complete within 56 days (the "Reservation Period"). Interested parties personal data will be shared with the Auctioneer (iamsold). If considering buying with a mortgage, inspect and consider the property carefully with your lender before bidding. A Buyer Information Pack is provided. The buyer will pay £300.00 including VAT for this pack which you must view before bidding. The buyer signs a Reservation Agreement and makes payment of a non-refundable Reservation Fee of 4.50% of the purchase price including VAT, subject to a minimum of £6,600.00 including VAT. This is paid to reserve the property to the buyer during the Reservation Period and is paid in addition to the purchase price. This is considered within calculations for Stamp Duty Land Tax. Services may be recommended by the Agent or Auctioneer in which they will receive payment from the service provider if the service (truncated)
Brochures
Web DetailsFull Brochure PDFPortland Street, Kirkby-in-Ashfield, Nottingham, Nottinghamshire, NG17
NEAREST STATIONS
Distances are straight line measurements from the centre of the postcode- Kirkby in Ashfield Station0.2 miles
- Sutton Parkway Station1.0 miles
- Newstead Station2.3 miles



Notes
Disclaimer - Property reference KIA250354. The information displayed about this property comprises a property advertisement. Rightmove.co.uk makes no warranty as to the accuracy or completeness of the advertisement or any linked or associated information, and Rightmove has no control over the content. This property advertisement does not constitute property particulars. The information is provided and maintained by Your Move, Kirkby-In-Ashfield. Please contact the selling agent or developer directly to obtain any information which may be available under the terms of The Energy Performance of Buildings (Certificates and Inspections) (England and Wales) Regulations 2007 or the Home Report if in relation to a residential property in Scotland.
Auction Fees: The purchase of this property may include associated fees not listed here, as it is to be sold via auction. To find out more about the fees associated with this property please call Your Move, Kirkby-In-Ashfield on 01623 701197.
*Guide Price: An indication of a seller's minimum expectation at auction and given as a Guide Price or a range of Guide Prices. This is not necessarily the figure a property will sell for and is subject to change prior to the auction.
Reserve Price: Each auction property will be subject to a Reserve Price below which the property cannot be sold at auction. Normally the Reserve Price will be set within the range of Guide Prices or no more than 10% above a single Guide Price.
Map data ©OpenStreetMap contributors.





