
Dunwood Drive, Old Catton

- PROPERTY TYPE
Flat
- BEDROOMS
2
- BATHROOMS
1
- SIZE
Ask agent
Key features
- FIRST FLOOR FLAT
- TWO BEDROOMS
- PRIVATE ENTRANCE
- OFF ROAD PARKING
- SOUGHT AFTER LOCATION
Description
Location - Old Catton is located to the North of Norwich close by to many local amenities including schooling, parks, convenient shops, Morrison’s supermarket, local pubs and restaurants. There is ease of access to Norwich ring road and NDR with regular public transport links to and from the city centre.
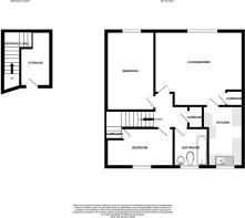
Accommodation Comprises - Front door to:
Entrance Hall - With stairs to first floor.
Lounge/Diner - 4.72 x 4.03 (15'5" x 13'2") - Double glazed window, electric heater.
Kitchen - 3.25 x 2.16 (10'7" x 7'1") - Fitted wall and base units with worktops over, sink and drainer, space for cooker, fridge and washing machine, double glazed window.
Bedroom One - 4.29 x 2.57 (14'0" x 8'5") - Double glazed window, electric heater.
Bedroom Two - 3.53 x 2.06 (11'6" x 6'9") - Double glazed window, electric heater.
Bathroom - Panelled bath with shower over, low level WC, hand wash basin, frosted double glazed window.
Outside -
Local Authority - Broadland District Council, Tax Band A.
Tenure - Leasehold - Term 125 years from 20 February 2015. Please note service charge is £112pcm and ground rent is £13pcm. For further information, please contact the office.
Utilities - Full fibre broadband available.
Mains water and electric.
Brochures
Dunwood Drive, Old Catton- COUNCIL TAXA payment made to your local authority in order to pay for local services like schools, libraries, and refuse collection. The amount you pay depends on the value of the property.Read more about council Tax in our glossary page.
- Band: A
- PARKINGDetails of how and where vehicles can be parked, and any associated costs.Read more about parking in our glossary page.
- Yes
- GARDENA property has access to an outdoor space, which could be private or shared.
- Ask agent
- ACCESSIBILITYHow a property has been adapted to meet the needs of vulnerable or disabled individuals.Read more about accessibility in our glossary page.
- Ask agent
Dunwood Drive, Old Catton
Add an important place to see how long it'd take to get there from our property listings.
__mins driving to your place
Get an instant, personalised result:
- Show sellers you’re serious
- Secure viewings faster with agents
- No impact on your credit score
Your mortgage
Notes
Staying secure when looking for property
Ensure you're up to date with our latest advice on how to avoid fraud or scams when looking for property online.
Visit our security centre to find out moreDisclaimer - Property reference 34227362. The information displayed about this property comprises a property advertisement. Rightmove.co.uk makes no warranty as to the accuracy or completeness of the advertisement or any linked or associated information, and Rightmove has no control over the content. This property advertisement does not constitute property particulars. The information is provided and maintained by Gilson Bailey, Norwich. Please contact the selling agent or developer directly to obtain any information which may be available under the terms of The Energy Performance of Buildings (Certificates and Inspections) (England and Wales) Regulations 2007 or the Home Report if in relation to a residential property in Scotland.
*This is the average speed from the provider with the fastest broadband package available at this postcode. The average speed displayed is based on the download speeds of at least 50% of customers at peak time (8pm to 10pm). Fibre/cable services at the postcode are subject to availability and may differ between properties within a postcode. Speeds can be affected by a range of technical and environmental factors. The speed at the property may be lower than that listed above. You can check the estimated speed and confirm availability to a property prior to purchasing on the broadband provider's website. Providers may increase charges. The information is provided and maintained by Decision Technologies Limited. **This is indicative only and based on a 2-person household with multiple devices and simultaneous usage. Broadband performance is affected by multiple factors including number of occupants and devices, simultaneous usage, router range etc. For more information speak to your broadband provider.
Map data ©OpenStreetMap contributors.







