Leiston Road, Knodishall

Letting details
- Let available date:
- Now
- Deposit:
- £1,039A deposit provides security for a landlord against damage, or unpaid rent by a tenant.Read more about deposit in our glossary page.
- Min. Tenancy:
- Ask agent How long the landlord offers to let the property for.Read more about tenancy length in our glossary page.
- Let type:
- Long term
- Furnish type:
- Unfurnished
- Council Tax:
- Ask agent
- PROPERTY TYPE
Terraced
- BEDROOMS
2
- BATHROOMS
1
- SIZE
Ask agent
Key features
- 2 Bedroom Terrace
- Lounge
- Kitchen
- Garden
Description
LOCATION
The village of Knodishall is perfectly placed for access to some of Suffolk's most popular towns and villages such as the charming market town of Saxmundham, pretty coastal town of Aldeburgh, and the 'must-visit' destination of Snape. Knodishall offers local village amenities such as a public house, village shop, primary school, and a lovely common.
Entrance Porch:
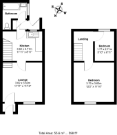
29 Leiston Road is a charming two-bedroom cottage, approached via an enclosed front garden with a lawn and mature plants. The entrance porch leads into the living room.
Living Room:
The living room features a brick fireplace with a tiled hearth, which has been blocked. A sash window to the front with secondary double glazing, a radiator, and stairs leading to the first floor.
Kitchen:
The kitchen has a window to the rear and is equipped with high and low-level units, a rolled edge work surface, and a double drainer sink. It includes an integrated electric oven and gas hob, space for a washing machine and tall fridge freezer, tiled splashbacks, a tiled floor, and a radiator.
Rear Porch:
In the rear porch, there is a storage cupboard housing the gas combi boiler.
Bathroom:
The bathroom includes a window to the side and features a white suite comprising a panel bath with a shower attachment, pedestal basin, and WC. The room has partially tiled walls, a tiled floor, and a radiator.
First Floor Landing:
On the first floor landing, there is access to the loft via a hatch.
Bedroom One:
Bedroom one has a sash window to the front with secondary double glazing, and a radiator.
Bedroom Two:
The second bedroom features a window to the rear and a radiator.
Exterior:
Outside, there is a south-facing courtyard area with ample space for seating, fully enclosed. There is also a separate storage shed and off-road parking for one car.
LOCAL COUNCIL
East Suffolk House, Station Road, Melton, Woodbridge, IP12 1RT
COUNCIL TAX BAND
A
SERVICES
Electricity, Gas, mains drains and water are connected to the property.
- COUNCIL TAXA payment made to your local authority in order to pay for local services like schools, libraries, and refuse collection. The amount you pay depends on the value of the property.Read more about council Tax in our glossary page.
- Band: A
- PARKINGDetails of how and where vehicles can be parked, and any associated costs.Read more about parking in our glossary page.
- Off street
- GARDENA property has access to an outdoor space, which could be private or shared.
- Yes
- ACCESSIBILITYHow a property has been adapted to meet the needs of vulnerable or disabled individuals.Read more about accessibility in our glossary page.
- Ask agent
Leiston Road, Knodishall
Add an important place to see how long it'd take to get there from our property listings.
__mins driving to your place


Notes
Staying secure when looking for property
Ensure you're up to date with our latest advice on how to avoid fraud or scams when looking for property online.
Visit our security centre to find out moreDisclaimer - Property reference 100137000928. The information displayed about this property comprises a property advertisement. Rightmove.co.uk makes no warranty as to the accuracy or completeness of the advertisement or any linked or associated information, and Rightmove has no control over the content. This property advertisement does not constitute property particulars. The information is provided and maintained by Hamilton Smith Lettings, Leiston. Please contact the selling agent or developer directly to obtain any information which may be available under the terms of The Energy Performance of Buildings (Certificates and Inspections) (England and Wales) Regulations 2007 or the Home Report if in relation to a residential property in Scotland.
*This is the average speed from the provider with the fastest broadband package available at this postcode. The average speed displayed is based on the download speeds of at least 50% of customers at peak time (8pm to 10pm). Fibre/cable services at the postcode are subject to availability and may differ between properties within a postcode. Speeds can be affected by a range of technical and environmental factors. The speed at the property may be lower than that listed above. You can check the estimated speed and confirm availability to a property prior to purchasing on the broadband provider's website. Providers may increase charges. The information is provided and maintained by Decision Technologies Limited. **This is indicative only and based on a 2-person household with multiple devices and simultaneous usage. Broadband performance is affected by multiple factors including number of occupants and devices, simultaneous usage, router range etc. For more information speak to your broadband provider.
Map data ©OpenStreetMap contributors.




