
Sedgefield Road, Barrow-In-Furness,LA13 0TN

- PROPERTY TYPE
Detached
- BEDROOMS
3
- BATHROOMS
2
- SIZE
Ask agent
- TENUREDescribes how you own a property. There are different types of tenure - freehold, leasehold, and commonhold.Read more about tenure in our glossary page.
Freehold
Key features
- Detached Family Home
- Extended Three Bedroom Property
- Open Plan Living
- Lounge
- Kitchen / Dining Area
- Rear Conservatory
- Family Bathroom And En Suite Shower Room
- Extensive Garden
- Off Road Parking
- Garage
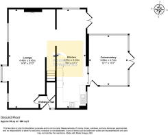
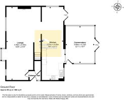
Description
This detached, family home offers excellent accommodation that has been significantly improved and extended, creating a free-flowing and open plan living arrangement with a lounge, dining area and kitchen. There is a conservatory to the rear, three double bedrooms (one en-suite shower room) and a family bathroom. There are extensive areas of garden, off-road parking and a garage.
Location
What3Words///home.curiosity.wished
Description
Situated in a popular residential area, convenient for Roose railway station, Tesco, primary schools and local bus services.
The living accommodation is generously proportioned throughout, featuring an open plan living space with the lounge flowing into the dining room and kitchen areas.
The lounge has a number windows letting lots of natural light into this generous room. The proportions of the room have allowed for two separate seating areas to be created, each with their own fireplace. There is open access onto the staircase and an opening into the dining area where there are double doors leading onto the patio.
The kitchen offers plenty of fitted cupboards and drawers, glazed display units and integrated appliances including a double oven with grill, gas hob with cooker hood and a single drainer sink with mixer tap and midi bowl. There is plumbing for a washing machine and space to accommodate an American style fridge freezer. The boiler is concealed within the cupboard alongside the window.
A sliding patio door in the kitchen leads you into the conservatory which is a great addition to the property. The conservatory is double glazed throughout, finished with a polycarbonate style roof covering with overhead light fitting.
The landing has built-in storage over the staircase, a loft hatch leading into the roof space which is boarded along the centre for general storage.
The master bedroom is beautifully proportioned and overlooks the rear garden and also boasts an en-suite shower room with a three-piece suite that includes a WC, pedestal wash hand basin and shower enclosure with a dual head shower fitting. There is an extractor fan mounted to the ceiling within the shower area.
There is an even more spacious bedroom to the front of the house that offers lots of flexibility for positioning furniture. The third bedroom is a smaller room that still offers ample space for a double bed and drawers.
The family bathroom has a modern suite in white with chrome effect fitments. There is a close coupled WC, pedestal wash hand basin and a P-shaped bath with a curved screen and a mixer shower fitted within. The room also has an extractor and a ladder style radiator.
The property is set on a larger than average plot including off-road parking, a garage, large summer house extensive areas of grass, patio, planting and mature trees.
Tenure
Freehold
Services
Mains gas, electricity, water and drainage.
Brochures
Brochure 1- COUNCIL TAXA payment made to your local authority in order to pay for local services like schools, libraries, and refuse collection. The amount you pay depends on the value of the property.Read more about council Tax in our glossary page.
- Band: C
- PARKINGDetails of how and where vehicles can be parked, and any associated costs.Read more about parking in our glossary page.
- Garage,Off street
- GARDENA property has access to an outdoor space, which could be private or shared.
- Private garden
- ACCESSIBILITYHow a property has been adapted to meet the needs of vulnerable or disabled individuals.Read more about accessibility in our glossary page.
- Ask agent
Energy performance certificate - ask agent
Sedgefield Road, Barrow-In-Furness,LA13 0TN
Add an important place to see how long it'd take to get there from our property listings.
__mins driving to your place
Get an instant, personalised result:
- Show sellers you’re serious
- Secure viewings faster with agents
- No impact on your credit score



Your mortgage
Notes
Staying secure when looking for property
Ensure you're up to date with our latest advice on how to avoid fraud or scams when looking for property online.
Visit our security centre to find out moreDisclaimer - Property reference S1469294. The information displayed about this property comprises a property advertisement. Rightmove.co.uk makes no warranty as to the accuracy or completeness of the advertisement or any linked or associated information, and Rightmove has no control over the content. This property advertisement does not constitute property particulars. The information is provided and maintained by Poole Townsend, Barrow-in-Furness. Please contact the selling agent or developer directly to obtain any information which may be available under the terms of The Energy Performance of Buildings (Certificates and Inspections) (England and Wales) Regulations 2007 or the Home Report if in relation to a residential property in Scotland.
*This is the average speed from the provider with the fastest broadband package available at this postcode. The average speed displayed is based on the download speeds of at least 50% of customers at peak time (8pm to 10pm). Fibre/cable services at the postcode are subject to availability and may differ between properties within a postcode. Speeds can be affected by a range of technical and environmental factors. The speed at the property may be lower than that listed above. You can check the estimated speed and confirm availability to a property prior to purchasing on the broadband provider's website. Providers may increase charges. The information is provided and maintained by Decision Technologies Limited. **This is indicative only and based on a 2-person household with multiple devices and simultaneous usage. Broadband performance is affected by multiple factors including number of occupants and devices, simultaneous usage, router range etc. For more information speak to your broadband provider.
Map data ©OpenStreetMap contributors.






