West End, Herstmonceux, East Sussex

- PROPERTY TYPE
Semi-Detached
- BEDROOMS
3
- BATHROOMS
1
- SIZE
Ask agent
- TENUREDescribes how you own a property. There are different types of tenure - freehold, leasehold, and commonhold.Read more about tenure in our glossary page.
Freehold
Key features
- AGENT ID: 2292
- THREE BEDROOMS – ONE IDEAL AS A STUDY/NURSERY
- SPACIOUS OPEN PLAN KITCHEN/DINING/LIVING AREA
- FAMILY BATHROOM
- LOFT SPACE STRUCTURALLY PREPARED FOR CONVERSION WITH STAIRCASE
- DESIGNED WITHOUT LOSS OF EXISITING BEDROOM SPACE
- UNDERFLOOR HEATING THROUGHOUT THE PROPERTY WITH AIR SOURCE HEAT PUMP
- PRIVATE PARKING FOR TWO CARS WITH ELECTRIC CHARGING POINT
- 10 YEAR BUILD ZONE GUARANTEE
- EXPECTED EPC RATING OF AT LEAST ‘B’
Description
KEY FEATURES:
THREE BEDROOMS – ONE IDEAL AS A STUDY/NURSERY
SPACIOUS OPEN PLAN KITCHEN/DINING/LIVING AREA
FAMILY BATHROOM
LOFT SPACE STRUCTURALLY PREPARED FOR CONVERSION WITH STAIRCASE
DESIGNED WITHOUT LOSS OF EXISITING BEDROOM SPACE
UNDERFLOOR HEATING THROUGHOUT THE PROPERTY WITH AIR SOURCE HEAT PUMP
PRIVATE PARKING FOR TWO CARS WITH ELECTRIC CHARGING POINT
10 YEAR BUILD ZONE GUARANTEE
EXPECTED EPC RATING OF AT LEAST ‘B’
Step inside through the timber-style composite front door with multipoint locking into a welcoming hallway leading to a light-filled open-plan kitchen, dining, and living area. Designed as the heart of the home, this space features flush timber-style UPVC windows, bi-fold doors opening to the garden, and luxury vinyl tile (LVT) flooring throughout the ground floor.
The kitchen has been thoughtfully designed and fully fitted by Blaeu Kitchens, complete with elegant quartz worktops and upstands, chrome hardware, and a stainless steel sink. A full suite of integrated appliances includes a dishwasher, fridge freezer, single oven, and induction hob. The adjoining utility area provides additional storage and convenience, with a washing machine/tumble dryer neatly incorporated. This carefully considered design ensures a sleek, modern look while maximising practicality for everyday family living. A convenient cloakroom with hand wash basin and WC completes the ground floor accommodation.
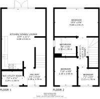
Upstairs, two well-proportioned bedrooms are joined by a versatile third room, perfect for use as a study or nursery. The family bathroom is finished to a high standard with porcelain wall tiles, a heated chrome towel rail, an overhead shower, and a modern suite. The loft space has been structurally prepared for conversion should you require to do this in the future, without compromising existing bedrooms.
Throughout the home, attention to detail is evident—LED downlighters or pendant lighting, mains-fed smoke alarms, and efficient heating delivered via an air-source heat pump with underfloor heating ensure modern comfort and peace of mind.
Externally, each property benefits from front and rear lawns, with a south facing garden to the rear, patio for outdoor dining, an external tap, and a welcoming porch light. Private parking for two vehicles is provided, complete with an electric car charging point.
LOCATION: Situated just a short stroll from the heart of Herstmonceux village, this home offers unparalleled convenience. The village boasts a fantastic selection of local amenities, including shops, a post office, cafés, restaurants, a doctors’ surgery, a pharmacy, and various beauty and barber services. Families will appreciate the excellent schooling options, with Herstmonceux Primary School nearby and Hailsham and Heathfield Community Colleges within the catchment area. For those who need to travel further afield, the larger towns of Hailsham, Eastbourne, and Bexhill are just a short drive away, while regular bus services run through the village. Mainline train stations at Pevensey Bay, Battle, Polegate, and Eastbourne offer direct links to London, making commuting a breeze.
LEISURE PURSUITS: - Outdoor enthusiasts will love the array of walking, cycling, and horse-riding trails in the surrounding countryside. The historic Herstmonceux Castle and Science Observatory Centre are just a 10-minute drive away, while the charming town of Battle, with its famous abbey, is only 15 minutes away. If you’re drawn to the coast, the beautiful beaches of Pevensey Bay, Normans Bay, and Eastbourne are within easy reach, offering a variety of water sports and seaside activities.
AGENTS COMMENTS:- "Bespoke and thoughtfully designed new build properties in a desirable village setting.”
ADDITIONAL INFO: Mains Drainage, mains water, air source heat pump heating, underfloor heating, mains electric. EPC: TBC, Council Tax Band: TBA
DISCLAIMER: All photos are CGI's based on the design and original specifications.
- COUNCIL TAXA payment made to your local authority in order to pay for local services like schools, libraries, and refuse collection. The amount you pay depends on the value of the property.Read more about council Tax in our glossary page.
- Ask agent
- PARKINGDetails of how and where vehicles can be parked, and any associated costs.Read more about parking in our glossary page.
- Yes
- GARDENA property has access to an outdoor space, which could be private or shared.
- Yes
- ACCESSIBILITYHow a property has been adapted to meet the needs of vulnerable or disabled individuals.Read more about accessibility in our glossary page.
- Ask agent
Energy performance certificate - ask agent
West End, Herstmonceux, East Sussex
Add an important place to see how long it'd take to get there from our property listings.
__mins driving to your place
Get an instant, personalised result:
- Show sellers you’re serious
- Secure viewings faster with agents
- No impact on your credit score
Your mortgage
Notes
Staying secure when looking for property
Ensure you're up to date with our latest advice on how to avoid fraud or scams when looking for property online.
Visit our security centre to find out moreDisclaimer - Property reference RFX-97325155. The information displayed about this property comprises a property advertisement. Rightmove.co.uk makes no warranty as to the accuracy or completeness of the advertisement or any linked or associated information, and Rightmove has no control over the content. This property advertisement does not constitute property particulars. The information is provided and maintained by VC ESTATES, South East. Please contact the selling agent or developer directly to obtain any information which may be available under the terms of The Energy Performance of Buildings (Certificates and Inspections) (England and Wales) Regulations 2007 or the Home Report if in relation to a residential property in Scotland.
*This is the average speed from the provider with the fastest broadband package available at this postcode. The average speed displayed is based on the download speeds of at least 50% of customers at peak time (8pm to 10pm). Fibre/cable services at the postcode are subject to availability and may differ between properties within a postcode. Speeds can be affected by a range of technical and environmental factors. The speed at the property may be lower than that listed above. You can check the estimated speed and confirm availability to a property prior to purchasing on the broadband provider's website. Providers may increase charges. The information is provided and maintained by Decision Technologies Limited. **This is indicative only and based on a 2-person household with multiple devices and simultaneous usage. Broadband performance is affected by multiple factors including number of occupants and devices, simultaneous usage, router range etc. For more information speak to your broadband provider.
Map data ©OpenStreetMap contributors.




