Osborne Road, Hornchurch, RM11

- PROPERTY TYPE
Semi-Detached
- BEDROOMS
4
- BATHROOMS
2
- SIZE
Ask agent
- TENUREDescribes how you own a property. There are different types of tenure - freehold, leasehold, and commonhold.Read more about tenure in our glossary page.
Freehold
Description
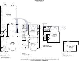
In brief to the second floor, the master bedroom measures 16' maximum x 11'6" maximum and affords an en suite shower room/WC.
To the first floor, there are three further bedrooms and a family bathroom/WC.
To the ground floor, the extended accommodation commences with an enclosed entrance porch leading to a spacious reception hall which provides access to the living accommodation incorporating lounge 27'5" x 12' maximum, fabulous kitchen/diner 26' > 16'5" x 19' and ground floor cloakroom.
Throughout the property there is gas fired central heating via radiators and double glazing.
Externally to the front, the driveway provides off-road parking. To the rear, there is a delightful west facing garden measuring approximately 100' in depth incorporating a fantastic outbuilding measuring 16'3" > 12'9" x 9'9", suitable as an office/gym/games room.
An internal viewing is essential to fully appreciate the size, standard, and quality of the accommodation on
offer.
ENCLOSED ENTRANCE PORCH
Entrance door and double glazed side window to the porch. Built-in cupboard. Tiled flooring. Door through to the reception hall.
RECEPTION HALL
Staircase leading to the first floor landing with cupboard beneath. Wooden flooring. Radiator.
GROUND FLOOR CLOAKROOM
Obscure double glazed window to the side. Suite comprising low flush WC and wash hand basin. Wooden flooring. Radiator.
LOUNGE 27'5" X 12' MAXIMUM
Double glazed bay window to the front with wooden shutters. Feature fireplace. Radiators. Wooden flooring. Double doors leading to the kitchen/diner.
KITCHEN/DINER 26' > 16'5" X 19'
Bi-fold doors overlooking and leading to the rear garden. Extensive range of base and eye level units with worktop surfaces. Inset sink unit. Built-in gas hob with extractor hood above. Integrated dishwasher. Island unit with built-in double oven and worktop surface. Space for fridge, freezer, washing machine and tumble dryer. Inset downlights. Wooden flooring.
FIRST FLOOR LANDING
Obscure double glazed window to the side. Inset downlights. Further staircase leading to the second floor.
BEDROOM TWO 14'3" X 11' INTO WARDROBES
Double glazed bay window to the front with wooden shutters. A range of fitted wardrobes. Radiator.
BEDROOM THREE 12'2" X 11'2" INTO WARDROBES
Double glazed window to the rear. A range of fitted wardrobes. Radiator.
BEDROOM FOUR 7'7" X 6'5"
Double glazed window to the front with wooden shutters. Radiator.
FAMILY BATHROOM/WC
Obscure double glazed window to the rear. Suite comprising panelled bath with shower over and glazed screen, wash hand basin with vanity unit beneath, and low flush WC. Tiled walls and flooring. Heated towel rail.
SECOND FLOOR LANDING
Double glazed window to the side.
MASTER BEDROOM 16' MAXIMUM X 11'6" MAXIMUM
Double glazed window to the rear. Fitted wardrobe. Inset downlights. Laminate flooring. Door to the en suite.
EN SUITE SHOWER ROOM/WC
Obscure double glazed window to the rear. Suite comprising shower cubicle with folding glazed door, low flush WC, and wash hand basin with vanity unit beneath. Tiled walls and flooring. Heated towel rail. Inset downlights. Extractor fan.
EXTERIOR
The property has been extended to the rear and loft, thus offering spacious family accommodation and is set within this most popular tree lined residential turning within easy access of transport links, all local amenities and popular schooling.
FRONTAGE
The driveway provides off-road parking. Side access leads to the rear garden.
REAR GARDEN
A delightful west facing garden measuring approximately 100' in depth and commences with a block paved patio area, remainder being laid to lawn with fencing to boundaries. Plant and shrub borders. External tap. Rear patio. External lighting.
OUTBUILDING 16'3" > 12'9" X 9'9"
Sliding double glazed doors to the garden. Power and lighting. Laminate flooring. Separate store area. The outbuilding is currently used as an office but also suitable as a games room/gym.
Ref No. 5664-25. EPC D. Council Tax Band E.
Council Tax Band: E (Havering London Borough Council)
Tenure: Freehold
Brochures
Brochure- COUNCIL TAXA payment made to your local authority in order to pay for local services like schools, libraries, and refuse collection. The amount you pay depends on the value of the property.Read more about council Tax in our glossary page.
- Band: E
- PARKINGDetails of how and where vehicles can be parked, and any associated costs.Read more about parking in our glossary page.
- Driveway
- GARDENA property has access to an outdoor space, which could be private or shared.
- Rear garden
- ACCESSIBILITYHow a property has been adapted to meet the needs of vulnerable or disabled individuals.Read more about accessibility in our glossary page.
- Ask agent
Osborne Road, Hornchurch, RM11
Add an important place to see how long it'd take to get there from our property listings.
__mins driving to your place
Get an instant, personalised result:
- Show sellers you’re serious
- Secure viewings faster with agents
- No impact on your credit score
Affordability
Notes
Staying secure when looking for property
Ensure you're up to date with our latest advice on how to avoid fraud or scams when looking for property online.
Visit our security centre to find out moreDisclaimer - Property reference 5664-25. The information displayed about this property comprises a property advertisement. Rightmove.co.uk makes no warranty as to the accuracy or completeness of the advertisement or any linked or associated information, and Rightmove has no control over the content. This property advertisement does not constitute property particulars. The information is provided and maintained by Davis Estates, Hornchurch. Please contact the selling agent or developer directly to obtain any information which may be available under the terms of The Energy Performance of Buildings (Certificates and Inspections) (England and Wales) Regulations 2007 or the Home Report if in relation to a residential property in Scotland.
*This is the average speed from the provider with the fastest broadband package available at this postcode. The average speed displayed is based on the download speeds of at least 50% of customers at peak time (8pm to 10pm). Fibre/cable services at the postcode are subject to availability and may differ between properties within a postcode. Speeds can be affected by a range of technical and environmental factors. The speed at the property may be lower than that listed above. You can check the estimated speed and confirm availability to a property prior to purchasing on the broadband provider's website. Providers may increase charges. The information is provided and maintained by Decision Technologies Limited. **This is indicative only and based on a 2-person household with multiple devices and simultaneous usage. Broadband performance is affected by multiple factors including number of occupants and devices, simultaneous usage, router range etc. For more information speak to your broadband provider.
Map data ©OpenStreetMap contributors.







