Blyth Road, Hayes, Middlesex, UB3

Letting details
- Let available date:
- Ask agent
- Deposit:
- Ask agentA deposit provides security for a landlord against damage, or unpaid rent by a tenant.Read more about deposit in our glossary page.
- Min. Tenancy:
- 12 months How long the landlord offers to let the property for.Read more about tenancy length in our glossary page.
- Let type:
- Long term
- Furnish type:
- Furnished
- Council Tax:
- Ask agent
This property is Built For Renters.
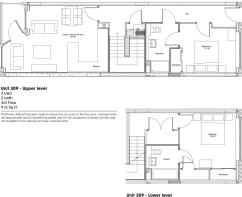
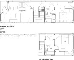
- PROPERTY TYPE
Flat
- BEDROOMS
2
- BATHROOMS
2
- SIZE
947 sq ft
88 sq m
Key features
- Free superfast broadband included in your rent
- Pet friendly
- On-site team to deal with any issues (including caretaker)
- Parcel collection service
- Community events
- Amazing Shared roof terrace
- Secure gated development
- Professional landlord
- Zero Deposit Available
Description
With Crossrail coming to Hayes journey times are going to be even shorter - direct connections to the West End in 20 minutes, Canary Wharf in 34 minutes and Heathrow Airport in just five minutes!!
Finished to a high standard, the kitchen is fully integrated including a dishwasher, oven and fridge freezer. A washer dryer is also included in a separate storage cupboard. Plenty of storage throughout the apartment. The bedrooms are bright and spacious and include either built in, mirrored, sliding wardrobes or walk-through wardrobes, all have en-suite bathrooms and all have private outside space i.e. balcony, terrace or garden.
Apo is a professional landlord. Rent directly from us and benefit from a great range of services!
Zero Deposit Available
Free superfast broadband included in your rent
Pet friendly
On-site team to deal with any issues (including caretaker)
Parcel collection service
Community events
Amazing Shared roof terrace
Flexible tenancies from 6 months to 3 years
Secure gated development
Professional landlord
**Contact us today to find out more about Apo Hayes! 1 bedroom apartments also available!
- COUNCIL TAXA payment made to your local authority in order to pay for local services like schools, libraries, and refuse collection. The amount you pay depends on the value of the property.Read more about council Tax in our glossary page.
- Ask agent
- PARKINGDetails of how and where vehicles can be parked, and any associated costs.Read more about parking in our glossary page.
- Ask agent
- GARDENA property has access to an outdoor space, which could be private or shared.
- Yes
- ACCESSIBILITYHow a property has been adapted to meet the needs of vulnerable or disabled individuals.Read more about accessibility in our glossary page.
- Lift access

On-site perks of living at this Built for Renters development
Additional costs may apply for some services – please check the full property description above.
- Flexible tenancies
- Fully managed
- On site maintenance
- WiFi included
- Well connected
- Transport links
- Bike storage
- Communal areas
- Long term contracts
- Professional management
- Residents lounge
- Shared workspace
Blyth Road, Hayes, Middlesex, UB3
Add an important place to see how long it'd take to get there from our property listings.
__mins driving to your place
Notes
Staying secure when looking for property
Ensure you're up to date with our latest advice on how to avoid fraud or scams when looking for property online.
Visit our security centre to find out moreDisclaimer - Property reference HAY309. The information displayed about this property comprises a property advertisement. Rightmove.co.uk makes no warranty as to the accuracy or completeness of the advertisement or any linked or associated information, and Rightmove has no control over the content. This property advertisement does not constitute property particulars. The information is provided and maintained by Apo, at The Gatefold. Please contact the selling agent or developer directly to obtain any information which may be available under the terms of The Energy Performance of Buildings (Certificates and Inspections) (England and Wales) Regulations 2007 or the Home Report if in relation to a residential property in Scotland.
*This is the average speed from the provider with the fastest broadband package available at this postcode. The average speed displayed is based on the download speeds of at least 50% of customers at peak time (8pm to 10pm). Fibre/cable services at the postcode are subject to availability and may differ between properties within a postcode. Speeds can be affected by a range of technical and environmental factors. The speed at the property may be lower than that listed above. You can check the estimated speed and confirm availability to a property prior to purchasing on the broadband provider's website. Providers may increase charges. The information is provided and maintained by Decision Technologies Limited. **This is indicative only and based on a 2-person household with multiple devices and simultaneous usage. Broadband performance is affected by multiple factors including number of occupants and devices, simultaneous usage, router range etc. For more information speak to your broadband provider.
Map data ©OpenStreetMap contributors.




