
Northesk Street, Stone, ST15

- PROPERTY TYPE
Apartment
- BEDROOMS
1
- BATHROOMS
1
- SIZE
Ask agent
Key features
- What was once the Police Social Club, this stunning one-bedroom, ground-floor apartment offers a slice of history, as-well as character, charm, and ample living space.
- Situated just a 5 minutes walk from Stone's vibrant centre with shops, bars, and eateries. Commuters will love nearby road links to A34, A51 and M6, along with Stone train station down the road.
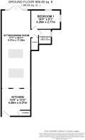
- The kitchen features ample cabinetry space, a sleek island and open-plan flow into a bright and airy living/dining space with two generously sized roof lanterns.
- This apartment is the only one in the development with a rear garden, you will also find allocated off-road parking and a further charming courtyard area.
- This home offers a generously sized double bedroom, plus a sleek and modern shower room with a shower, sink, and W/C.
Description
Formally the old Police Social Club, this stunning one-bedroom ground-floor apartment has traded its uniform for sleek interiors and serious style. Perfectly positioned just a short stroll from Stone’s vibrant town centre, it offers the ideal blend of convenience, comfort, and character.
Step inside the spacious communal entrance hall, complete with a secure intercom system for added peace of mind. Once inside the apartment, you’re welcomed by a generously sized kitchen with ample cabinetry, a stylish central island, and an open-plan layout that flows beautifully into the bright and airy living space beyond. The impressive living/dining area is bathed in natural light thanks to two striking roof lanterns, creating a wonderful sense of space and warmth.
To the rear, glazed French doors open onto a garden, a true rarity in apartment living. Beautifully enclosed and ideal for relaxing, entertaining, or enjoying a morning coffee, this outdoor haven adds something truly special to the home.
Back inside, you will find a generously sized double bedroom, along with a modern shower room featuring a walk-in shower, washhand basin, and W/C, with bidet attachments. Two handy storage rooms offer the perfect space to hide all your home essentials. There is even a shared cellar space offering even more space for storage.
Outside, the property benefits from allocated off-road parking, and for commuters, the location couldn’t be better. Excellent road links to the A34, A51, and M6 make travelling to nearby towns and major cities effortless, while Stone train station is just a short stroll away, offering regular services to Stafford, Stoke-on-Trent, and beyond. Bus routes run practically right from the doorstep, providing convenient connections into the town centre, local villages, and the beautiful surrounding countryside.
Stone itself is a thriving friendly town with everything you need close at hand, from healthcare facilities and dental practices to a fantastic selection of shops, supermarkets, cafés, eateries and nightlife. With its canal towpath walks, independent boutiques, and welcoming community spirit, it’s easy to see why Stone is such a sought-after place to call home.
Whether you’re a first-time buyer looking for style and convenience, a downsizer seeking easy single-level living, or an investor searching for a, low-maintenance property in a prime location, this apartment is sure to impress.
EPC Rating: C
LEASE DETAILS
Leasehold is 125 years from the 1st July 2006. We are aware there is a £60 per month management fee and we are also aware that the ground rent is paid at £62.50, every 6 months.
We are aware that the future owner will become a shareholder of the management company who owns the freehold.
Photos
Please note, certain photos have been digitally enhanced using AI editing tools to improve presentation.
- COUNCIL TAXA payment made to your local authority in order to pay for local services like schools, libraries, and refuse collection. The amount you pay depends on the value of the property.Read more about council Tax in our glossary page.
- Band: D
- PARKINGDetails of how and where vehicles can be parked, and any associated costs.Read more about parking in our glossary page.
- Yes
- GARDENA property has access to an outdoor space, which could be private or shared.
- Yes
- ACCESSIBILITYHow a property has been adapted to meet the needs of vulnerable or disabled individuals.Read more about accessibility in our glossary page.
- Ask agent
Northesk Street, Stone, ST15
Add an important place to see how long it'd take to get there from our property listings.
__mins driving to your place
Get an instant, personalised result:
- Show sellers you’re serious
- Secure viewings faster with agents
- No impact on your credit score

Your mortgage
Notes
Staying secure when looking for property
Ensure you're up to date with our latest advice on how to avoid fraud or scams when looking for property online.
Visit our security centre to find out moreDisclaimer - Property reference 4c123e09-3058-45d3-96fc-12189196fd39. The information displayed about this property comprises a property advertisement. Rightmove.co.uk makes no warranty as to the accuracy or completeness of the advertisement or any linked or associated information, and Rightmove has no control over the content. This property advertisement does not constitute property particulars. The information is provided and maintained by James Du Pavey, Stone. Please contact the selling agent or developer directly to obtain any information which may be available under the terms of The Energy Performance of Buildings (Certificates and Inspections) (England and Wales) Regulations 2007 or the Home Report if in relation to a residential property in Scotland.
*This is the average speed from the provider with the fastest broadband package available at this postcode. The average speed displayed is based on the download speeds of at least 50% of customers at peak time (8pm to 10pm). Fibre/cable services at the postcode are subject to availability and may differ between properties within a postcode. Speeds can be affected by a range of technical and environmental factors. The speed at the property may be lower than that listed above. You can check the estimated speed and confirm availability to a property prior to purchasing on the broadband provider's website. Providers may increase charges. The information is provided and maintained by Decision Technologies Limited. **This is indicative only and based on a 2-person household with multiple devices and simultaneous usage. Broadband performance is affected by multiple factors including number of occupants and devices, simultaneous usage, router range etc. For more information speak to your broadband provider.
Map data ©OpenStreetMap contributors.






