Land for sale
Fairclose, Whitchurch, RG28 7AN
- PROPERTY TYPE
Land
- SIZE
Ask agent
Key features
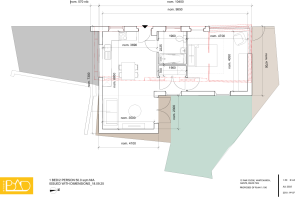
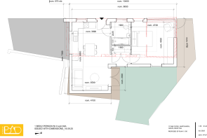
- Granted planning permission for conversion into a one-bedroom dwelling
- Garden providing private outdoor space.
- Parking
- Prime central location in the heart of Whitchurch, Hampshire.
- Close to local amenities, including shops and services.
- Excellent road connections via the A34 and A303 to Winchester, Basingstoke, Newbury, and beyond.
- Convenient transport links with Whitchurch railway station offering direct services to London Waterloo.
Description
Located in the heart of Whitchurch, Hampshire, this property presents a rare opportunity for buyers seeking a property with great potential. Previously used as a pottery studio, however this property benefits from granted planning permission for conversion into a one-bedroom dwelling.
With planning consent in place, there is the exciting option to transform the property into a self-contained one-bedroom home—an appealing prospect for downsizers, first-time buyers, or those looking for a rental or holiday let investment (subject to building regulations and works).
Centrally located in the sought-after Hampshire town of Whitchurch, this property is conveniently located within reach of a selection of local shops, a well-regarded secondary school and convenient transport links. These links include the town's railway station with direct services to London Waterloo and local road links including the A34 and A303, offering access to Winchester, Basingstoke, Newbury and Beyond.
Externally, the property benefits from a private courtyard garden and off-street parking, further enhancing its versatility and convenience. The property retains a sense of character, with its frontage formed from the remains of two Victorian workers’ cottages, providing original features and a unique heritage charm.
In our opinion, this property represents a fantastic and versatile opportunity—whether for continued workshop use, or the development of a charming, yet manageable home in one of Hampshire’s most desirable and well-connected locations.
Fairclose, Whitchurch, RG28 7AN
NEAREST STATIONS
Distances are straight line measurements from the centre of the postcode- Whitchurch (Hants.) Station0.6 miles
- Overton Station3.9 miles
- Micheldever Station4.8 miles


Notes
Disclaimer - Property reference S1469889. The information displayed about this property comprises a property advertisement. Rightmove.co.uk makes no warranty as to the accuracy or completeness of the advertisement or any linked or associated information, and Rightmove has no control over the content. This property advertisement does not constitute property particulars. The information is provided and maintained by Brockenhurst Estate Agents, Whitchurch. Please contact the selling agent or developer directly to obtain any information which may be available under the terms of The Energy Performance of Buildings (Certificates and Inspections) (England and Wales) Regulations 2007 or the Home Report if in relation to a residential property in Scotland.
Map data ©OpenStreetMap contributors.





