Chester Street, Shrewsbury

- PROPERTY TYPE
Duplex
- BEDROOMS
2
- BATHROOMS
2
- SIZE
Ask agent
Key features
- No Upward Chain
- Beautifully Presented Multi-Level Apartment
- Sought-After Chester Street Location
- Spacious Open-Plan Living Area
- Stylish Walnut-Finish Kitchen Units
- Double Bedroom & Modern Bathroom
- Principal Bedroom eith En-Suite Shower
- Allocated Parking in Residents’ Car Park
- Edge of Shrewsbury Town Centre
- EPC Rating D
Description
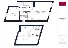
The property opens into a welcoming reception hall with stylish wooden doors leading through to an impressive open-plan living area, featuring two front-facing windows that fill the space with natural light. The adjoining kitchen is fitted with a range of sleek walnut-finish units, complemented by integrated appliances including a fridge, freezer, oven, hob, and extractor fan. Completing this level is a well-proportioned double bedroom and a contemporary bathroom, finished with a white suite and fully tiled walls for a clean, modern aesthetic.
A staircase rises to the second floor, where the spacious principal bedroom enjoys a Velux window and benefits from a beautifully appointed en-suite shower room, once again fully tiled to a high standard. Externally, the property offers an allocated parking space within the residents’ car park. Perfectly positioned on the edge of Shrewsbury town centre, this stunning apartment provides convenient access to an array of amenities including shops, restaurants, transport links, and picturesque riverside walks.
Services: We understand that the property has electricity heating, mains water and mains drainage.
Broadband Speed: Basic 14 Mbps, Superfast 186 Mbps & Ultrafast 10,000 Mbps
*Results provided by Ofcom and correct at time of listing*
Flood Risk: Medium
Tenure: We understand the tenure is Leasehold. It should be noted that we have not seen sight of the lease and we are unable to verify this information, purchasers are advised to make their own further enquiries via their solicitor.
Length of lease: 999 years - 960 years remain.
Service Charges: £720 per annum (includes Ground Rent)
Local Authority: Shropshire Council, The Shirehall, Abbey Foregate, Shrewsbury, Shropshire SY2 6ND. Tel
Council Tax Band: B
Mortgage Services: We offer a no obligation mortgage service through Hilltop Mortgage Solutions. Please ask a member of our team for further details.
Referral Services: Samuel Wood routinely refers vendors and purchasers to providers of conveyancing and financial services. We may receive fees from them as declared in our Referral Fees Disclosure Form.
Brochures
Chester Street, Shrewsbury- COUNCIL TAXA payment made to your local authority in order to pay for local services like schools, libraries, and refuse collection. The amount you pay depends on the value of the property.Read more about council Tax in our glossary page.
- Band: B
- PARKINGDetails of how and where vehicles can be parked, and any associated costs.Read more about parking in our glossary page.
- Communal
- GARDENA property has access to an outdoor space, which could be private or shared.
- Ask agent
- ACCESSIBILITYHow a property has been adapted to meet the needs of vulnerable or disabled individuals.Read more about accessibility in our glossary page.
- Ask agent
Energy performance certificate - ask agent
Chester Street, Shrewsbury
Add an important place to see how long it'd take to get there from our property listings.
__mins driving to your place
Get an instant, personalised result:
- Show sellers you’re serious
- Secure viewings faster with agents
- No impact on your credit score
Your mortgage
Notes
Staying secure when looking for property
Ensure you're up to date with our latest advice on how to avoid fraud or scams when looking for property online.
Visit our security centre to find out moreDisclaimer - Property reference 34229731. The information displayed about this property comprises a property advertisement. Rightmove.co.uk makes no warranty as to the accuracy or completeness of the advertisement or any linked or associated information, and Rightmove has no control over the content. This property advertisement does not constitute property particulars. The information is provided and maintained by Samuel Wood, Shrewsbury. Please contact the selling agent or developer directly to obtain any information which may be available under the terms of The Energy Performance of Buildings (Certificates and Inspections) (England and Wales) Regulations 2007 or the Home Report if in relation to a residential property in Scotland.
*This is the average speed from the provider with the fastest broadband package available at this postcode. The average speed displayed is based on the download speeds of at least 50% of customers at peak time (8pm to 10pm). Fibre/cable services at the postcode are subject to availability and may differ between properties within a postcode. Speeds can be affected by a range of technical and environmental factors. The speed at the property may be lower than that listed above. You can check the estimated speed and confirm availability to a property prior to purchasing on the broadband provider's website. Providers may increase charges. The information is provided and maintained by Decision Technologies Limited. **This is indicative only and based on a 2-person household with multiple devices and simultaneous usage. Broadband performance is affected by multiple factors including number of occupants and devices, simultaneous usage, router range etc. For more information speak to your broadband provider.
Map data ©OpenStreetMap contributors.








