High Street, Lowestoft, Suffolk, NR32 1HR
- SIZE
Ask agent
- SECTOR
Land for sale
Key features
- Freehold mixed-use building in a prime High Street location
- Ground floor 1 / 2 Commercial units with strong retail frontage
- Approved planning permission for reinstatement works
- Multiple self-contained flats across first and second floors
- Upgraded layouts designed to meet modern building regulations
- Attractive opportunity to create a high-yielding rental investment
Description
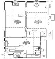
A well-sized 1 or 2 commercial unit/s on the ground floor, each with their own entrance door also with residential flats above, the property was subject to fire damage but now presents a unique redevelopment and investment opportunity.
Planning permission has been secured for the reinstatement of the property, providing buyers with confidence that the scheme is ready to proceed. Once completed, the building will offer a refurbished commercial unit alongside a portfolio of modern self-contained flats, all compliant with current building regulations, fire safety requirements, and energy performance standards.
The approved scheme reinstates the ground floor retail unit, which benefits from direct High Street frontage, an open-plan sales area, and ancillary storage to the rear. Additional features include staff welfare facilities, making the unit suitable for a wide range of occupiers, from independent retailers to service providers and food and beverage operators.
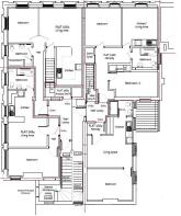
Above the commercial premises, the property will accommodate a number of well-designed one and two bedroom flats. The first floor reinstatement provides practical and efficient layouts with modern kitchens, bathrooms, and open living spaces. The second floor, formerly within the roof space, will be reinstated to create stylish apartments benefitting from dormer windows, excellent natural light, and open-plan living areas. Shared access and circulation spaces will be upgraded to meet modern standards, ensuring a safe and comfortable environment for future residents.
This property represents a rare chance to acquire a centrally located freehold with the benefit of planning permission already in place. For developers and investors, this eliminates much of the uncertainty and delay often associated with similar projects. Once reinstated, the property will deliver a versatile High Street retail unit alongside a collection of high-demand modern flats, creating a strong blended rental yield and long-term investment security.
Auctioneers Additional Comments
Pattinson Auction are referred to below as The Auctioneer. This auction lot is being sold under either conditional (Modern) or unconditional (Traditional) auction terms and overseen by the auctioneer. The property is available to view strictly by appointment only via any Marketing Agent or The Auctioneer. Please be aware that any enquiry, bid or viewing of the subject property will require your details being shared between any marketing agent and The Auctioneer so that all matters can be dealt with effectively. The property is being sold via a transparent online auction. To submit a bid on any property marketed by The Auctioneer, all bidders buyers must adhere to a verification of identity process in line with Anti Money Laundering procedures. Bids can be submitted at any time and from anywhere. Our verification process is in place to ensure AML procedures are carried out in accordance with the law
Auctioneers Additional Comments
The advertised price is commonly referred to as a Starting Bid or Guide Price and is accompanied by a Reserve Price. The Reserve Price is confidential to the seller and the auctioneer and will typically be within a range above or below 10% of the Guide Price , Starting Bid. These prices are subject to change. An auction can be closed at any time with the auctioneer permitting for the property (the lot) to be sold prior to the end of the auction. A Legal Pack associated with this particular property is available to view upon request and contains details relevant to the legal documentation enabling all interested parties to make an informed decision prior to bidding. The Legal Pack will also outline the buyers obligations and sellers commitments. It is strongly advised that you seek the counsel of a solicitor prior to proceeding with any property and/or Land Title purchase.
Auctioneers Additional Comments
In order to secure the property and ensure commitment from the seller, upon exchange of contracts, the successful bidder will be expected to pay a non-refundable deposit equivalent to 5% of the purchase price. The deposit will form part of the purchase price. A non-refundable reservation fee of up to 7.2% inc VAT (Subject to a minimum fee which could be up to 7,200 inc VAT) is also payable upon agreement of sale. The Reservation Fee is in addition to the agreed purchase price, and consideration should be given by the purchaser to any Stamp Duty Land Tax liability associated with the overall purchase costs. Both the Marketing Agent and the Auctioneer may consider it necessary or beneficial to pass customer details to third-party service suppliers, from whom a referral fee may be received. There is no requirement or obligation to use any recommended suppliers or services.
Brochures
High Street, Lowestoft, Suffolk, NR32 1HR
NEAREST STATIONS
Distances are straight line measurements from the centre of the postcode- Lowestoft Station0.5 miles
- Oulton Broad North Station1.7 miles
- Oulton Broad South Station2.2 miles
Notes
Disclaimer - Property reference 494945. The information displayed about this property comprises a property advertisement. Rightmove.co.uk makes no warranty as to the accuracy or completeness of the advertisement or any linked or associated information, and Rightmove has no control over the content. This property advertisement does not constitute property particulars. The information is provided and maintained by Pattinsons, Pattinsons Auction- National Auctioneer. Please contact the selling agent or developer directly to obtain any information which may be available under the terms of The Energy Performance of Buildings (Certificates and Inspections) (England and Wales) Regulations 2007 or the Home Report if in relation to a residential property in Scotland.
Auction Fees: The purchase of this property may include associated fees not listed here, as it is to be sold via auction. To find out more about the fees associated with this property please call Pattinsons, Pattinsons Auction- National Auctioneer on 0191 625 0964.
*Guide Price: An indication of a seller's minimum expectation at auction and given as a Guide Price or a range of Guide Prices. This is not necessarily the figure a property will sell for and is subject to change prior to the auction.
Reserve Price: Each auction property will be subject to a Reserve Price below which the property cannot be sold at auction. Normally the Reserve Price will be set within the range of Guide Prices or no more than 10% above a single Guide Price.
Map data ©OpenStreetMap contributors.






